当前位置:首页 > 户型图分析

#办公智造#

阅读 991834 | 粉丝 991834

  • 刘静 / 设计师

    2024年06月17日 18:00:37

    + 关注
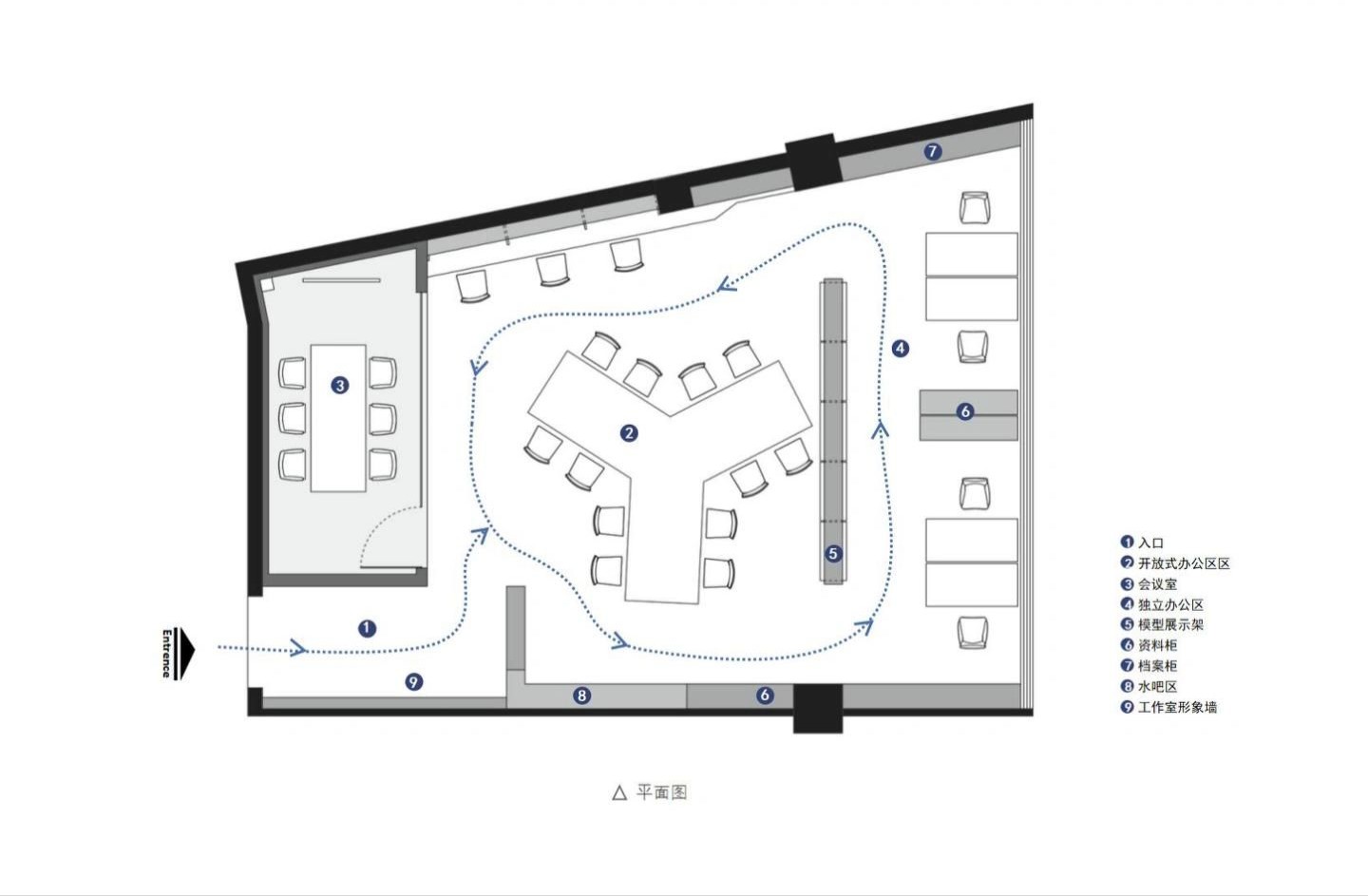
    #办公智造#

    工作室办公室设计        

  • Xiao Er Mei / 设计师

    2024年06月17日 17:57:43

    + 关注
    #办公智造#

    办公空间隔断        

  • 敏颜 / 设计师

    2024年06月17日 17:03:11

    + 关注
    #办公智造#

    科技公司办公室设计        

  • 张小葵 / 设计师

    2024年06月17日 09:54:27

    + 关注
    #办公智造#

    雅诗兰黛集团展开了一系列讨论,以收集最终用户对实验室办公空间关于如何增强创造力和创新能力需求的反馈意见。设计打造出多个可调节工位、协作空间和社交空间,以加强交流与协作。实验室和办公空间专门针对研究职能而定制,有助于提高效率、增强协作和创新。工享作乐是人性化体验的重要组成部分。我们在设计中考虑整体生活需求,从工作和生活两方面出发,全面提升员工的健康体验,帮助他们缓解压力,改善生活品质。光线、透明度和亲生命性为员工创造了一个恢复活力的空间,室外露台让员工能够呼吸新鲜空气,强调了建筑注重使用者的健康和福祉的理念。办公空间融入了舒适的设计元素,让人们可以放松身心,营造出一种宁静和奢华感。最终设计整合了企业的业务目标、发展战略和业绩指标,同时也为访客和员工传达了品牌使命和公司文化。        

  • 张小葵 / 设计师

    2024年06月17日 09:52:15

    + 关注
    #办公智造#

    打造一个充满活力、具有凝聚力、体现品牌特色且设施齐全的园区,为创造人性化体验的办公空间树立典范。        

  • 庆东 / 设计师

    2024年06月17日 09:25:42

    + 关注
    #办公智造#

    二稿平面方案        

  • 王建 / 设计师

    2024年06月17日 09:20:39

    + 关注
    #办公智造#

    企业办公会所(1)        

  • 王建 / 设计师

    2024年06月17日 09:15:32

    + 关注
    #办公智造#

    办公空间会所(2)        

发布话题

公开