当前位置:首页 > 户型图分析

#办公智造#

阅读 992322 | 粉丝 992322

  • Diana / 设计师

    2024年06月13日 06:57:47

    + 关注
    #办公智造#

    本案办公空间是简洁的现代风设计,我们以“世界”为主题做了本次设计。整体色彩以白色、原木色、灰色为主色调,蓝色为亮点色。通过定制家具,造型和灯光设计打造的开放式大厅使人眼前一亮。整体设计贯穿企业文化,围绕水、自然、科技展开。
    企业工作内容与环境水利相关,所以我们设计了木饰面为主的墙面处理,装饰上利用不锈钢压纹材质,引入流水概念。象征水的流线型顶面灯光,利用灯光贯穿整个大厅和走廊,增加空间联动性及现代科技感,灯光延伸至形象墙,连接水波纹不锈钢板,从墙面到地台到大理石地面,就好像瀑布飞流直下。作为局部点缀,倒火山口造型,底部设计地球灯装饰,抬头,就好像看到了世界。        

  • Diana / 设计师

    2024年06月13日 06:56:43

    + 关注
    #办公智造#

    办公区域为增加层高做局部不吊顶处理,整体喷白弱化管道杂乱,蓝色的隔断可以提升空间活力,长期在密闭的空间办公,一抹蓝色可以缓解视觉疲劳,同时增加环境的装饰性。
    接待室装饰以木饰面板为主,由于空间限制没有窗户,通过设计玻璃砖造型,达到半通透的效果面,增加采光的同时也阻挡了内部办公区域的杂乱。
    在进入会议室的走廊上,鲜明的蓝色点缀着人们日常忙碌的空间。大面积的电视屏幕在使用上增强了感官效果。覆蓝膜玻璃,呼应设计主题,视觉上提升整个空间,同时与办公区蓝色呼应,利用窗洞做休息座位,成为不错的观影区。        

  • 乌拉西 / 设计师

    2024年06月13日 06:19:46

    + 关注
    #办公智造#

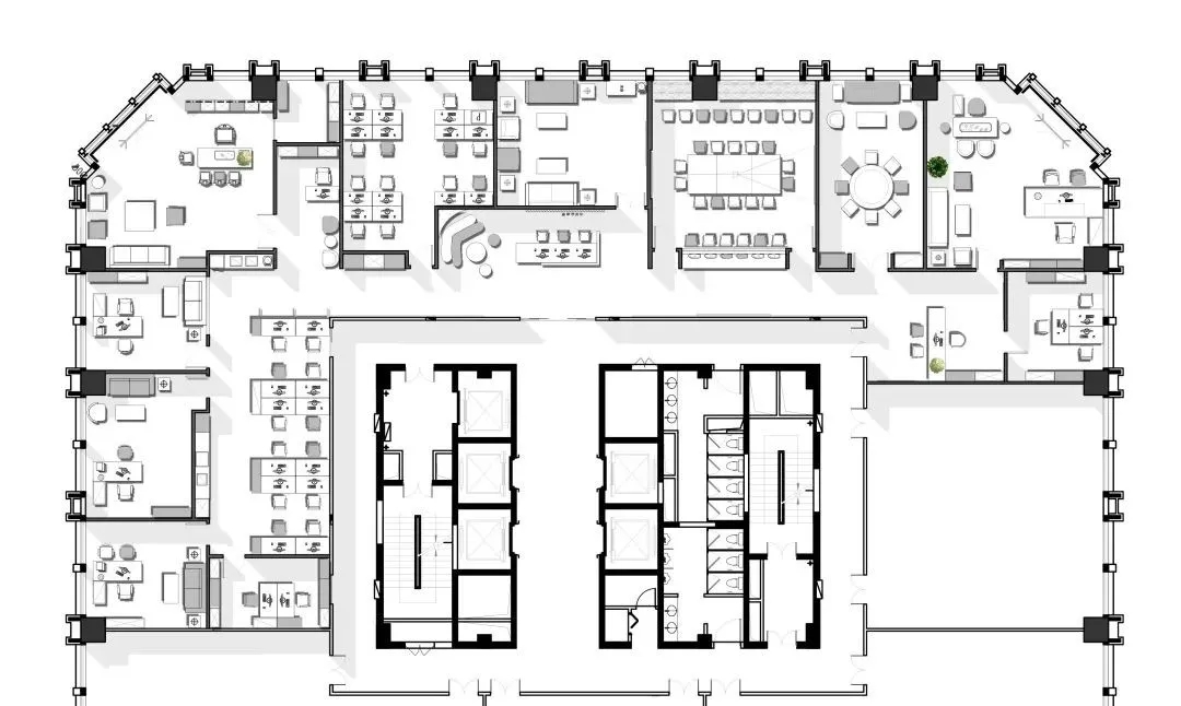
    平面布局图        

  • 尤曼吖 / 设计师

    2024年06月12日 20:51:17

    + 关注
    #办公智造#

    办公室实景图        

  • 小海 / 设计师

    2024年06月12日 18:27:18

    + 关注
    #办公智造#

    星河控股集团        

  • 刘君雅 / 设计师

    2024年06月12日 10:52:05

    + 关注
    #办公智造#

    简约木饰面办公空间设计        

  • 牛皮八哥 / 设计师

    2024年06月12日 08:21:31

    + 关注
    #办公智造#

     办公室实景图        

  • 魏馨琪 / 设计师

    2024年06月11日 15:05:41

    + 关注
    #办公智造#

    以“无界”的理念为基点,尝试突破原场地每层楼的独立界限,在保留原有垂直交通动线的基础上将三层楼的楼板释放局部界面,形成一个无形的腔体,来突破空间与数据的界限,增加人与人,人与空间之间的“跨界”对话。
    / “无限延伸的线”
    一楼通过对原有层高的利用,来构建一个无限延伸的空间使用可能,改变原有楼梯的走向方式,设置连廊,连接原有楼梯与新空间,呈现一种开放轻松的状态,接待区周围上下动线互不干扰,又可联动交流。
    强烈纯净的色彩与原始墙面鲜明对比,保留原始建筑留下的印迹与故事,也是一种新旧融合与对话的姿态。        

发布话题

公开