当前位置:首页 > 户型图分析

#办公智造#

阅读 992840 | 粉丝 992840

  • 魏馨琪 / 设计师

    2024年06月11日 15:03:41

    + 关注
    #办公智造#

    “克莱因蓝雾”的中庭 / 垂直联动空间
    垂直空间维度上,打破局部界限,以克莱因蓝雾为线索,与一楼夹层呈有形的链接,靠近外立面主采光面,在垂直区域中置入了一个“光雾化的容器”,光线融入的同时,增加人活动与视线交互,激发不同的互动关系。
    我们想构建的,并不是固定的某种空间结构或形式,只是在设想人与空间联系后,与场所产生更多的可能性。        

  • 魏馨琪 / 设计师

    2024年06月11日 15:02:07

    + 关注
    #办公智造#

    在后期的使用过程中会发现,短暂停留放松的休闲区域,即“微休闲空间”使用频次最高。
    该项目中每层办公区域设置了两个微休闲空间,可站可坐的茶水吧,与中空旁边的独立吧台,其中对独立吧台与眺望平台的长度控制,符合2-3人同时使用,促进有效交流。
    / 水平联动区域
    吧台作为活动功能聚焦点,各层集中设置,位置选择布置在交通空间附近作为联动其他功能的区域。
     1F吧台造型整体统一,像一些悬挂的“黑盒子”,自然形成区域感。
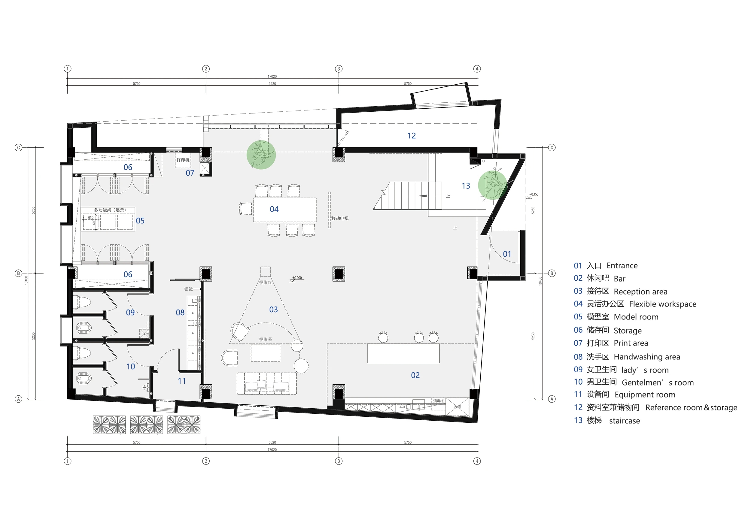
    / 多功能模型室
    模型室位于一楼的灵活办公与接待区,灵活使用三种状态:模型制作模式、材料展示模式、选材模式;满足多功能使用。         

  • 魏馨琪 / 设计师

    2024年06月11日 14:59:19

    + 关注
    #办公智造#

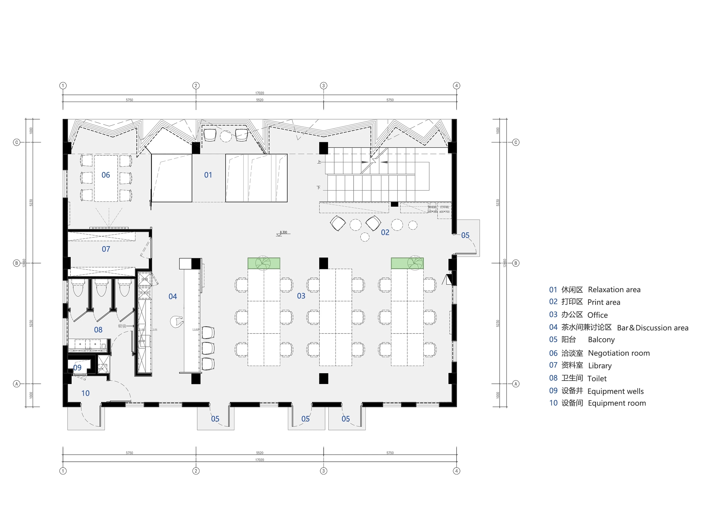
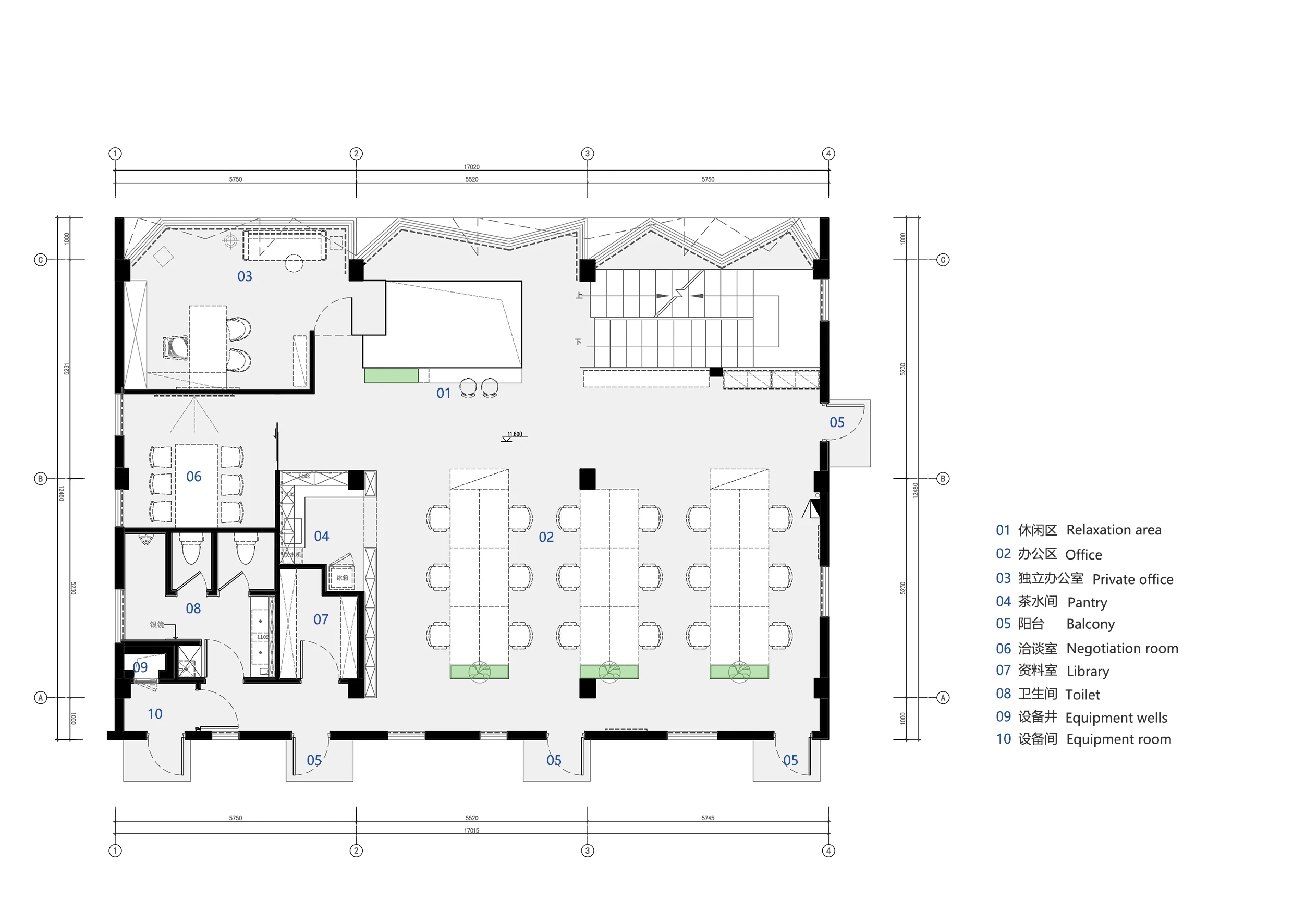
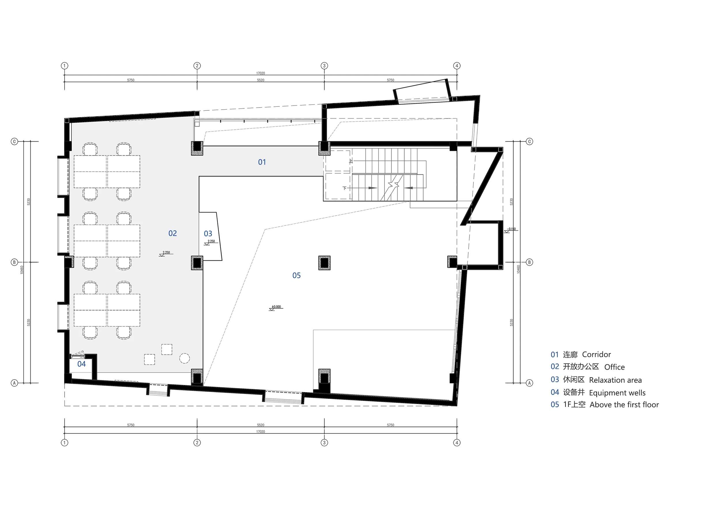
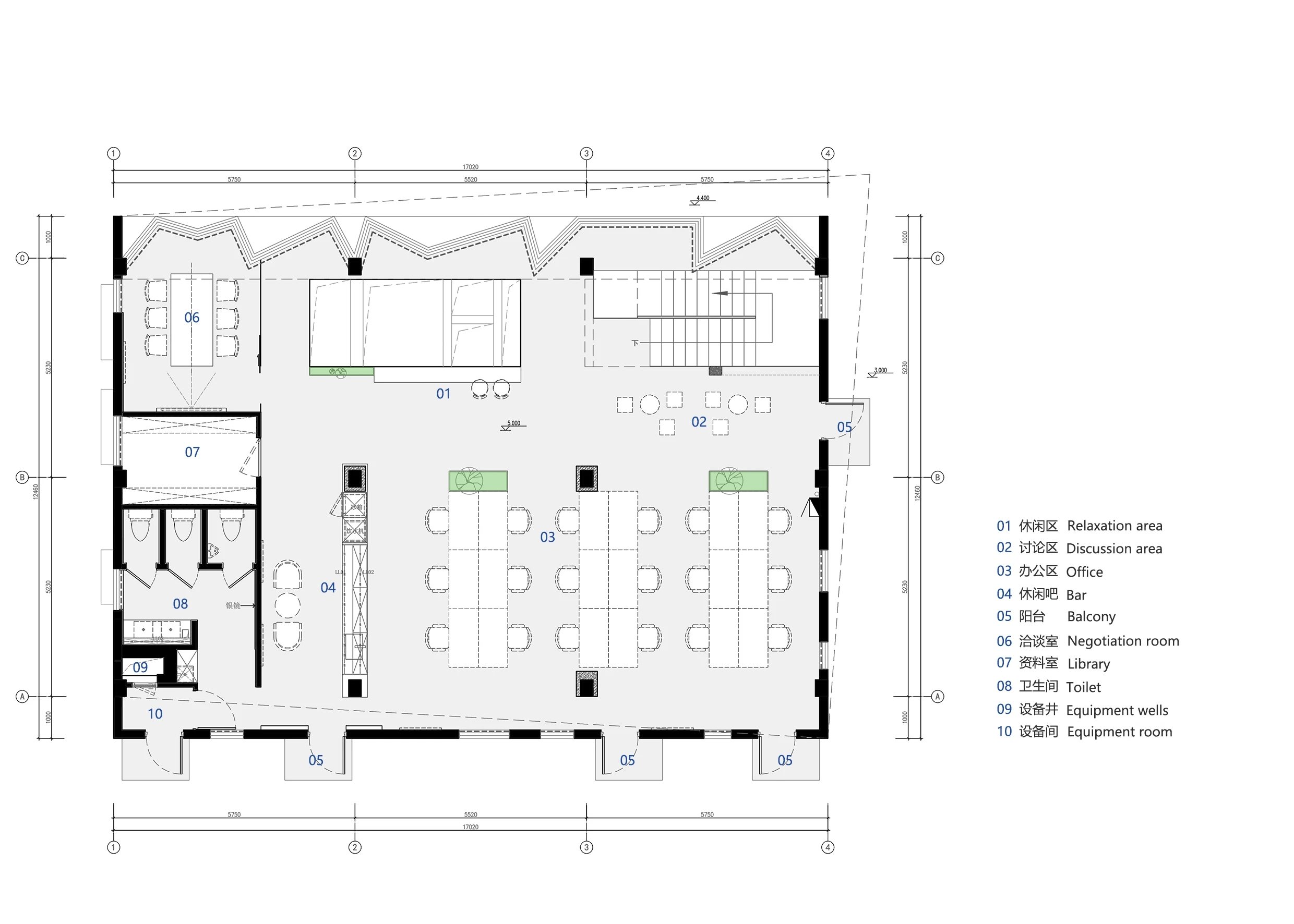
    图纸部分        

  • 江北梅郎 / 设计师

    2024年06月11日 14:33:26

    + 关注
    #办公智造#

    电商产业园办公室        

  • 蓦兰 / 设计师

    2024年06月11日 09:52:00

    + 关注
    #办公智造#

    室内植物造景        

  • 蓦兰 / 设计师

    2024年06月11日 09:00:22

    + 关注
    #办公智造#

    核心端景呈现        

  • 蓦兰 / 设计师

    2024年06月11日 08:57:16

    + 关注
    #办公智造#

    办公室沉浸式植物打造        

  • Hino / 设计师

    2024年06月10日 23:21:06

    + 关注
    #办公智造#

    局部图        

发布话题

公开