当前位置:首页 > 户型图分析

#办公智造#

阅读 996564 | 粉丝 996564

  • 王丹丹 / 设计师

    2024年05月14日 16:17:01

    + 关注
    #办公智造#

    设计以围绕景观作为空间核心。意将室内空间与窗外的旷美融合,营造缘身其中,情景合一的氛围。
    扬长避短,巧设布局。在结构柱表面饰以艺术玻璃与灯光晕染,以弱化、忽略结构体量的存在。        

  • 王丹丹 / 设计师

    2024年05月14日 16:15:08

    + 关注
    #办公智造#

    设置移动轨道真空玻璃隔断,根据实际使用场景灵活分隔调整空间,可分为不同大小的会议空间或完全敞开的共享活动空间,以实现尽可能满足创造企业多功能空间使用的可能。
    通过概念性的表达——艺术家将网络征集装有取自长江流经的40个采水点水源的水杯,重构了万里长江图景。从观念上将窗外延绵的实景江景联系起来。恰巧上海是长江的入海口——汇江入海,契合并意涵了律所组构开放,汇聚英才,交融共赢的企业策略与价值观。
    简洁明朗的办公区,折射出一家现代律所干练、明见、务实的职业素养。        

  • 杨梅酱 / 设计师

    2024年05月14日 11:37:20

    + 关注
    #办公智造#

    律所办公室设计效果图        

  • RIDICULOUSNESS / 设计师

    2024年05月14日 09:09:41

    + 关注
    #办公智造#

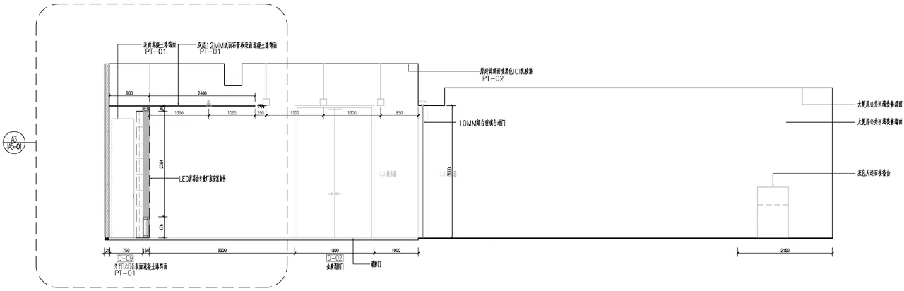
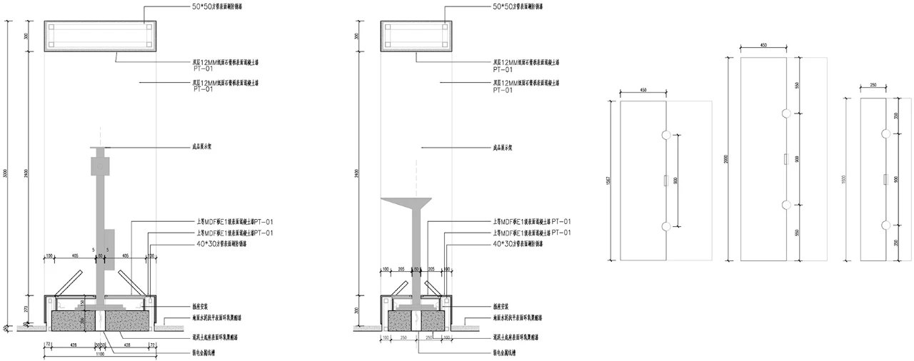
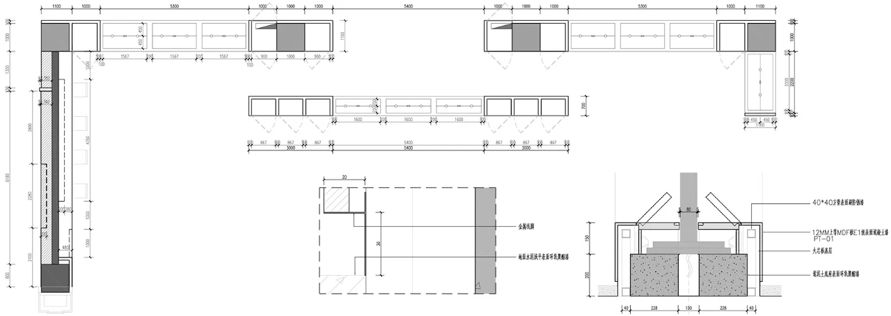
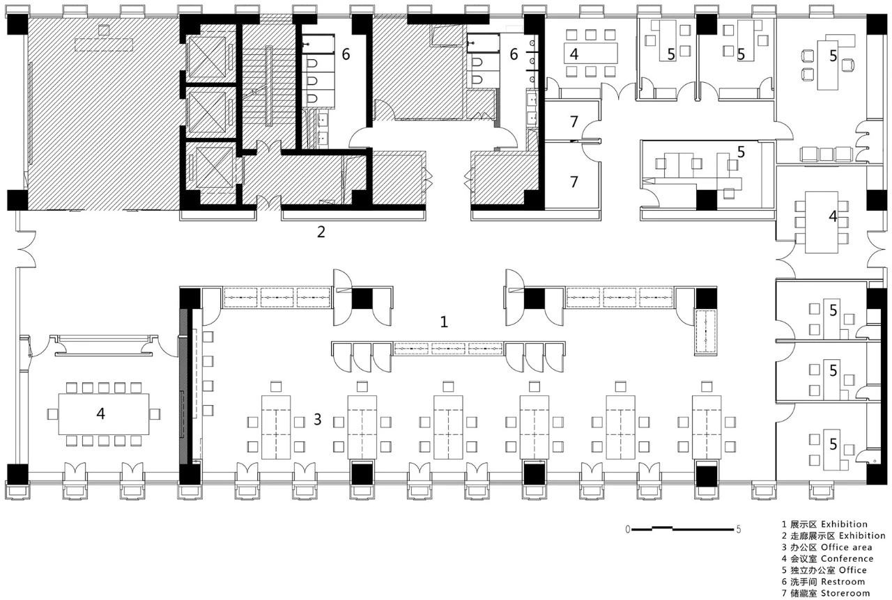
    建筑设计中围绕三个“无界”进行,第一个“无界”是功能无界。建筑功能主要有办公,产品展示,影像展示,产品互动展示等等。围绕现场四个柱子设计一组互动展示空间,主要进行安防产品的互动展示,展示空间内设计若干展架将产品与互动端相结合,实现实时互动
    独立办公室设计在主要空间的外围,独立又有一定的隐私性。展示空间的南北两侧分别是办公空间和产品展示墙。此三组功能将主要空间分割为三条线和一条主要通道,各种功能之间相互影响、相互呼应。
    第二个“无界”是空间无界。互动展示空间为线型品字布局,品字布局的负型形成了员工的流线。通往独立办公室的主要通道两侧同样是互动展示空间与产品展示墙,独立办公室人员路线必经展示群组空间。
    空间高度以3米线以下进行设计,所有墙体高度、灯具吊装高度、门与玻璃的高度均为三米。三米线以上进行整体涂黑,把管线管道全部弱化于黑色天花内。墙身材料为混凝土漆,地面为混凝土自流平,两种材质在视觉上相融合。办公空间内穿插实木家具与柜门,体现出办公本身的人性化感受,与互动展示空间的灰色系相融合。
    第三个“无界”是时间无界。此项目设计遵循可持续发展的思路,企业根据自身发展的时间规律,在以后会把此空间完全变成企业博物馆。
    根据这点,建筑设计在现有时间段和未来时间段的使用功能都做了充分的考虑。现有的办公空间尺度既可以作为办公空间,也可以作为展示台空间,进行企业产品研发展示。未来可以将内部隔墙拆除,独立办公室就形成了一个独立完整空间展厅。        

  • RIDICULOUSNESS / 设计师

    2024年05月14日 09:00:46

    + 关注
    #办公智造#

    平面及立面图        

  • Design 陈 / 设计师

    2024年05月14日 07:39:50

    + 关注
    #办公智造#

    以“旗”与“云”为元素,墙面的石材以层叠结构形式出现,在创造丰富的空间层次同时,如同一面面迎风飘扬的旗帜。石材刚强的性格使空间沉稳而干练,而与之呼应的,是天花上灵动的如旗云般的透光膜造型。横向延伸的造型使接待前厅空间左右连贯,同时也起到左右分流的视觉暗示作用。
    会议室同样沿用“云”的概念,从天花延伸至立面的产地不一的层叠造型,不但为方正的空间丰富了层次,结合天花及墙身的照明灯光更是创造出独特的韵律感。
    喷白的裸露天花中,天蓝色的空调管道,给办公空间带来如蓝天白云下的惬意。以及地毯上的蓝色点缀,营造出高效轻松的工作氛围。        

  • Design 陈 / 设计师

    2024年05月14日 07:38:19

    + 关注
    #办公智造#

    以更具科技感的铝板呈现,天花上如翅膀般的反射板代替了常规的刺眼灯光,通过对灯光的反射,使空间光线柔和而充实。
    超大石板的背景墙配合百叶使得室内空间简洁明快。橘红色皮艺的沙发组合为空间注入了高雅的气息。
    “彩色盒子”会议室。在会议室墙身,放置了彩色的六角形墩子。需要开会时这些墩子可以搬下来做凳子,当需要开阔空间时,这些墩子可以便利的收纳到墙上而不需要一个额外的储藏室。窗边的当黑板用的烤漆玻璃趟门使得这里可以随时呼吸新鲜空气。        

  • Hino / 设计师

    2024年05月14日 07:28:48

    + 关注
    #办公智造#

    前台区域作为办公室的初步印象,投射艺术科技感。曲面造型勾勒出冷冽的线条,面与面之间相互交汇、重叠、融合,与一侧的金属艺术品进行趣味对话。
    接待区的木质家具柔和空间科技感,带来温润空间质感。
    办公室增设茶艺区,采用新的现代手法,于室内造雅致之境,茶香飘于室内,慰藉日常的疲劳。
    总经理室由穿插的线条体块组成,不规则线条构造简洁而有力,同时具有视觉韵律美感,丰富空间层次变化。        

发布话题

公开