当前位置:首页 > 户型图分析

#办公智造#

阅读 996619 | 粉丝 996619

  • 刘君雅 / 设计师

    2024年05月14日 07:23:01

    + 关注
    #办公智造#

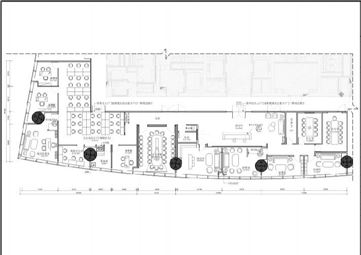
    现代办公空间        

  • 刘君雅 / 设计师

    2024年05月14日 07:20:15

    + 关注
    #办公智造#

    绿色点缀        

  • 魏馨琪 / 设计师

    2024年05月14日 06:39:28

    + 关注
    #办公智造#

    从岭南文化,针对六大功能区间,延伸出水、木、川、石、瓷、绣主题元素。
    岭南文化以农业文化和海洋文化为源头,在其发展过程中不断融汇中原和海外文化,逐渐形成自身独有的特点。岭南秀山丽水,岭南的文学艺术雅俗并茂,岭南画派、粤剧具有浓郁的地方特色。
    设计师开宗明义,在入口区即以简约的线条奠定基调,遵循轻奢与平衡美感的克制。将建筑轮廓线条加以简化、变形、重组,运用到室内设计中,以饱满清晰的线条感,在视觉上将空间延展开来,转折自然流畅,映射现代主义的简约艺术。

  • 魏馨琪 / 设计师

    2024年05月14日 06:36:38

    + 关注
    #办公智造#

    此空间我们根据空间设计岭南鸟笼元素,将具有岭南地域文化符号的家具陈设植入VIP空间,我们相信在传统与现代之间可以创造一种审美平衡,符合当下雅致的生活美感体验。
    为了丰富空间的质感与层次,中庭区、过道以开场的圆形示人,融合错落的鸟笼元素、鱼篓元素、舞狮元素,制造出空间中最具张力的视觉焦点,人行其中,光线微微穿透其中,倾泻出与众不同的空间魅力,在另类新奇中隐现设计美感。
    整个装饰区取名“龙起水”,寓意游龙顺风顺水。此装饰区为中海怡高团队专研的概念,石壁画作源自岭南十三行街区繁荣的景象,以水纹环绕,配合望海石,孕育出岭南的渔港文化。再配合投影技术,与行人互动,将动态的光影图像融合到空间墙上。
    家具回应着建筑线条的迂回,与云腾图案十分契合。天花板和墙面的滨海金控投影画面给人震撼的视听享受。        

  • 魏馨琪 / 设计师

    2024年05月14日 06:33:14

    + 关注
    #办公智造#

    米白色简洁纯净,局部点缀优雅的明橙、黑金,营造出一个端庄而优雅的开放式洽谈空间,有种领导会晤的仪式感。

    此空间主题为“如鱼得水”,传达顺心的视觉效果,人坐其间,鱼游其上,空间的意境顿时打开。

    VIP空间匹配居者的需求,相对轻松而娱乐性点,空间贵族蓝搭配酒红色,营造出让人眼前一亮而放松的仪式感。

    水滴吊灯搭配花艺柔化整个空间,柔软的触感,舒适感极佳的量身定制家具符合人体工学,各式摆放饰品,调节着人与生活场景恰到好处的距离。

     

  • 张小葵 / 设计师

    2024年05月14日 06:31:20

    + 关注
    #办公智造#

    金融公司办公室        

  • Ellen / 设计师

    2024年05月13日 23:40:53

    + 关注
    #办公智造#

    办公区与指挥中心(1)        

  • Ellen / 设计师

    2024年05月13日 23:39:44

    + 关注
    #办公智造#

    办公区与指挥中心(2)        

发布话题

公开