当前位置:首页 > 户型图分析

#办公智造#

阅读 996881 | 粉丝 996881

  • Jason / 设计师

    2024年05月12日 20:50:23

    + 关注
    #办公智造#

    吊顶采用具有“面纱”的半通透金属网板,对上部的设备管线进行遮挡,同时营造出柔和的灯光效果;吊顶分隔模数的统一延续进一步强调了大空间的整体感和流动性。地面通过对地板、地毯和素混凝土三种地面材质的区分,有效地展示了不同区域的功能和作用。
    在入口处的大会议室墙面设有Portfolio墙,墙上每个穿插的木块都激光雕刻有不同被投资企业的Logo,并可方便进行替换、更新。        

  • 小敏island / 设计师

    2024年05月12日 20:13:53

    + 关注
    #办公智造#

    这个点位我们故意去掉了传统的“前厅”死板的设计,鼓励到来的每位客人可以直接跟随视觉进入接待区域,顶面的LOGO灯光连接或交叠延续到独立地存在其他区域中,使人漫步其中感受到一种柔和舒适的包围感。
    茶水间的设计更多考虑的是形式感带来的空间价值,以轻松的方式让大家感到被重视,并得到企业气质直接获得感。开放式的茶水间与会议室及前台联合在一起,从中找到适当的平衡点,并提供一个创造持续第一印象的场域。        

  • 小敏island / 设计师

    2024年05月12日 20:11:49

    + 关注
    #办公智造#

    空间的新生,不仅仅有视觉的更新,也需要功能的聚合。半开放的会议室也是为此诞生,作为关联点位参与办公空间动态体验的一个重要节点区域。
    简洁利落的直线与顶部白色裸露的曲线营造了空间的自由与包容,纯色的沙发建立起一丝丝的素雅铺满整个空间。        

  • 王倩 / 设计师

    2024年05月12日 19:46:31

    + 关注
    #办公智造#

    现代办公空间赏析(1)        

  • 王倩 / 设计师

    2024年05月12日 19:43:46

    + 关注
    #办公智造#

    现代办公空间赏析(2)        

  • 吕行者 / 设计师

    2024年05月12日 17:55:41

    + 关注
    #办公智造#

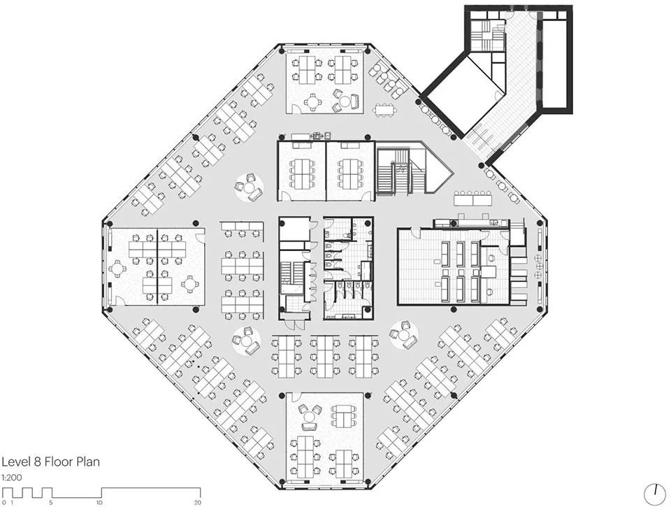
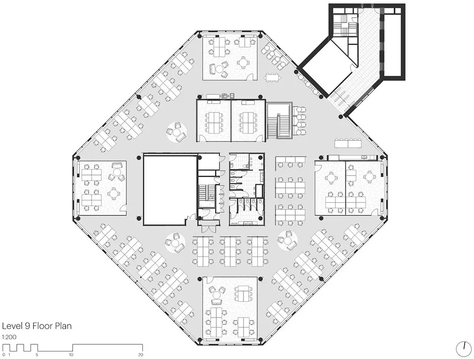
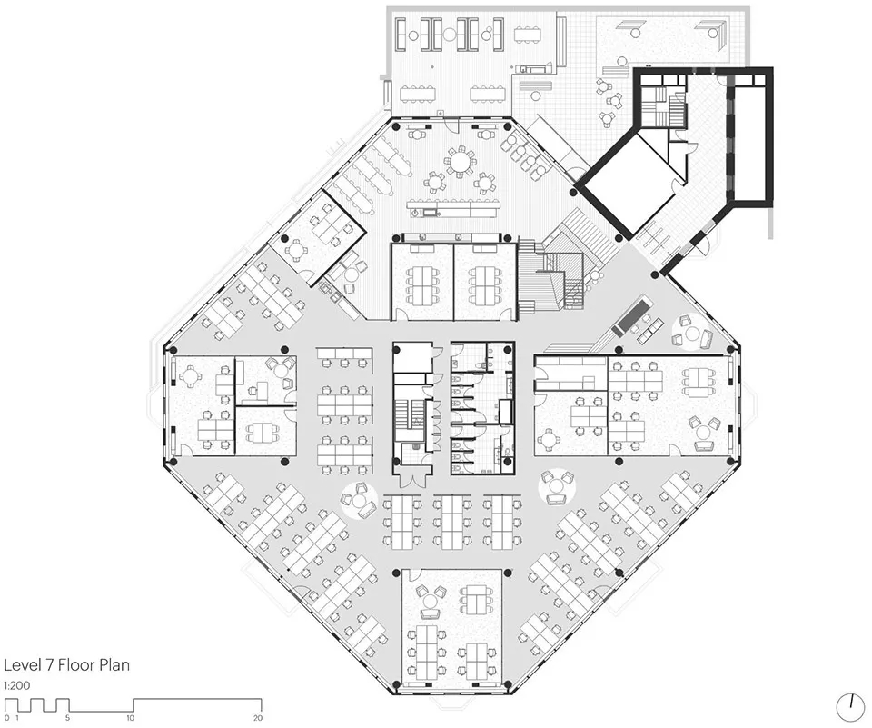
    Studio Nine为全球知名的视觉特效公司Mill Film设计了其在澳洲的第一个工作室。方案从视觉特效制作流程中获取灵感,以“建模和表现”以及“光、色彩和纹理”作为两个关键性的设计原则。
    “建模和表现”推动了严格的布局结构,作为对明确的工作流程的回应。空间的设置一方面要满足客户对开放和封闭空间的要求,另一方面还要与建筑的八边形平面相适应。工作、审阅和社交空间在谨慎的布局策略下实现了无缝衔接,并始终保持着适当的界限。
    “光、色彩和纹理”催生了不同的空间类型。艺术家工作区采用了单一的色彩,尽可能地避免了视觉上的干扰。与该区域相连的审阅室采用了较为温暖和自然的色彩,将人们的注意力引向屏幕上的作品。充满活力的社交空间与工作区域形成了鲜明的对比,带来轻松愉快的交流氛围。每个空间中也使用了一些共同的基础材料,从而相互产生关联。        

  • 吕行者 / 设计师

    2024年05月12日 17:17:27

    + 关注
    #办公智造#

    设计师借助一系列工业元素来维持工作室内部空间的一致性,并通过澳大利亚木材的丰富肌理以及铁锈色和深红色的搭配来回应当地的环境特征。        

  • 毛均峰 / 设计师

    2024年05月12日 16:55:48

    + 关注
    #办公智造#

    大面积的留白,结合光影、结构创造一种模糊边界的场景定义保持其连续性、延展性与自由性利用陈设之间的距离在视觉上的延伸为空间提供流通性与导向性功能        

发布话题

公开