当前位置:首页 > 户型图分析

#办公智造#

阅读 996883 | 粉丝 996883

  • Script. / 设计师

    2024年05月12日 08:32:48

    + 关注
    #办公智造#

    视觉设计的灵感来自岭南经典传统建筑和文化元素。通过简化和抽象化的方式,将文字瓦当进行创新演绎,融入到 LOGO 设计中,表达出版社对传统文化的传承和发扬,展现其独特身份和文化使命
    室内设计除了在中西结合的老洋楼基础上强化岭南文化的视觉魅力和历史底蕴,还希望能匹配当代文学出版工作者的工作方式与生活态度,在经典文化中体现当代气质。
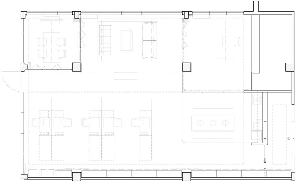
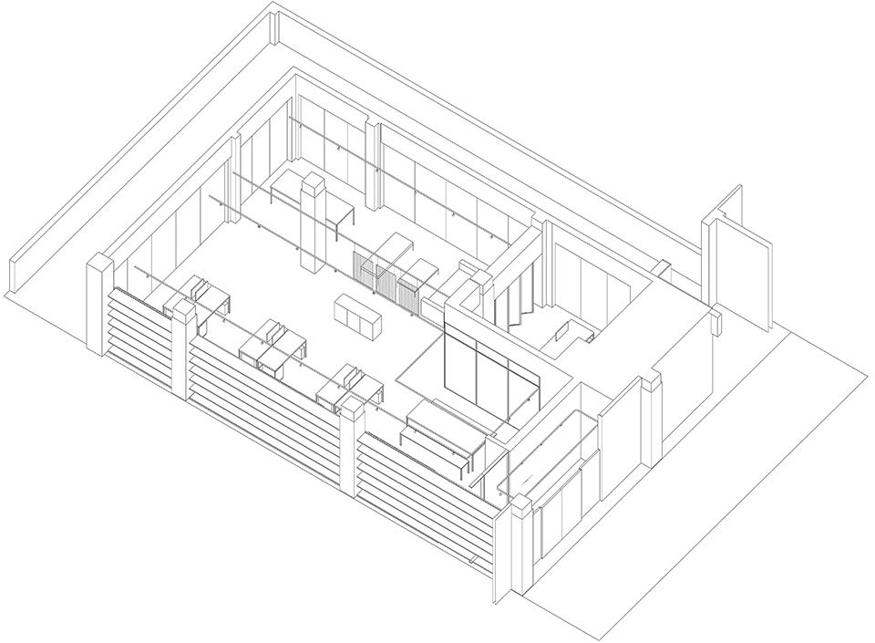
    除了必备的门厅和会议功能之外,东侧三层相对宽敞的空间都用于各个部门的集体办公。西侧三楼大厅空间较大,用作开放的古籍展厅,串联起四周其他独立办公室和接待功能。双楼中间的连廊作为休闲空间,将东侧办公与西侧会客有效地联动起来。
    秉持修旧如故的原则,建筑修复保存西式栏杆、拱券、花阶砖等传统特色构件和工艺。室内设计聚焦在门窗和家具设计上。创研社开发了一系列融合满洲窗纹样和岭南书画的门窗屏风,通过将它们间插于在老洋楼走廊之中,在实用性上增添文化韵味。

  • Script. / 设计师

    2024年05月12日 08:31:03

    + 关注
    #办公智造#

    视觉设计的灵感来自岭南经典传统建筑和文化元素。通过简化和抽象化的方式,将文字瓦当进行创新演绎,融入到 LOGO 设计中,表达出版社对传统文化的传承和发扬,展现其独特身份和文化使命
    室内设计除了在中西结合的老洋楼基础上强化岭南文化的视觉魅力和历史底蕴,还希望能匹配当代文学出版工作者的工作方式与生活态度,在经典文化中体现当代气质。
    除了必备的门厅和会议功能之外,东侧三层相对宽敞的空间都用于各个部门的集体办公。西侧三楼大厅空间较大,用作开放的古籍展厅,串联起四周其他独立办公室和接待功能。双楼中间的连廊作为休闲空间,将东侧办公与西侧会客有效地联动起来。
    秉持修旧如故的原则,建筑修复保存西式栏杆、拱券、花阶砖等传统特色构件和工艺。室内设计聚焦在门窗和家具设计上。创研社开发了一系列融合满洲窗纹样和岭南书画的门窗屏风,通过将它们间插于在老洋楼走廊之中,在实用性上增添文化韵味。

  • Script. / 设计师

    2024年05月12日 08:27:05

    + 关注
    #办公智造#

    茶水间安排在两侧楼体之间的连廊,用新中式家具保持空间的简约轻松与文化气质,成为参观动线与办公动线的衔接中心。
    西侧三楼展示中心,展陈器架延续新中式风格,精致的当代设计感、中式屏风、水墨元素与老洋楼的满洲窗相映成趣。
    经典古韵与当代精致品质融合的大型落地书柜,铺满展厅空间。与展厅相连的茶室,通过大型中式屏风折叠门间隔,实现展示与接待功能的灵活变化。

  • Script. / 设计师

    2024年05月12日 08:10:06

    + 关注
    #办公智造#

    利用中式屏风折叠门营造开合变化的灵动感,丝印水墨画点缀了折叠门的视觉中心,使东方美学的视觉韵味融合在脚步和目光掠过的每一瞬间。        

  • 叶孤城 / 设计师

    2024年05月12日 07:34:00

    + 关注
    #办公智造#

    和大公司不同,独立建筑工作室每一间都不一样。借用本雅明的说法,居室就如同博览会现场,物品和痕迹展览着居住者的生活。工作室是一个广义的居住空间,大部分工作室都有一种临时的性质:租下一个“盒子”,设计,然后在里面生活和工作;工作室对原有空间的改造和布置,就如盒子里的紫色天鹅绒,包裹着其中的生活。        

  • 叶孤城 / 设计师

    2024年05月12日 07:32:26

    + 关注
    #办公智造#

    工作台是定做的,长宽采用一套统一基本模数,方便多向拼接。另外考虑建筑事务所大量展陈+收纳的需求,做了一整面墙的架子同时满足两种功能。        

  • Diana / 设计师

    2024年05月12日 07:13:26

    + 关注
    #办公智造#

    维密集团办公室(1)        

  • Diana / 设计师

    2024年05月12日 07:10:23

    + 关注
    #办公智造#

    维密集团办公室(2)        

发布话题

公开