当前位置:首页 > 户型图分析

#办公智造#

阅读 998820 | 粉丝 998820

  • Diana / 设计师

    2024年04月21日 23:06:22

    + 关注
    #办公智造#

    放松和安宁的氛围中,工作室有了自己的标签,也有强烈的归属感。居家办公有了不同的定义,实现了极致梦想。
    顶层空间有一处休息室,这里有花花草草。设计师会和员工们一起来到这里,释放一些情绪,轻松的阅读,呼吸着香气。然后成员们各忙各的,反而更加专注,惬意中凝聚团队的力量。午后的休闲时光,欣赏一番庭院和建筑的美感,内心获得满足,这是人们梦想的生活。
    这不是梦境,而是现实,没有人规定工作的地方一定要忙碌严肃着。艺术勾勒平缓的节奏,结合对生活的期待,工作室便成为了休闲胜地。刘雯在这里可以找到最初的自己,即使荣誉和赞美,也无法抵挡这里的诱惑。留白的走廊,落地窗外的庭院,每一件家具,都是对艺术的尊重和自我的表达。        

  • RIDICULOUSNESS / 设计师

    2024年04月21日 22:23:10

    + 关注
    #办公智造#

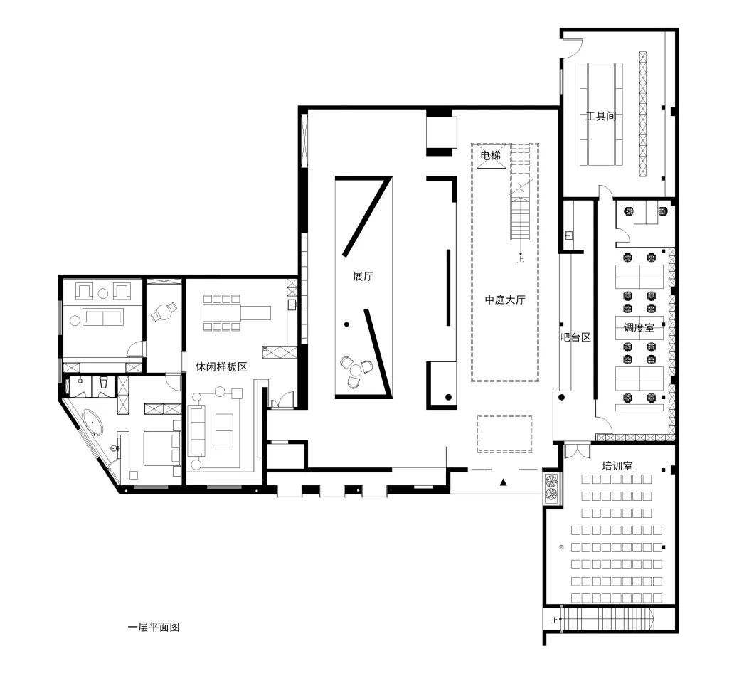
    实用面积1800平方米。全楼为上下两层围绕以挑高中庭为核心的白色盒子空间,简净的白色建造体独立于周边环境,传达出建筑与环境,科技与生活以及开放与共享的理念。
    具有开放性的可瑞舒适家是节能、科技、环保类家居行业的领跑者,为客户提供智能舒适家居系统一体化解决方案,所以在对“可瑞舒适家办公展厅”下一个定义时,我们希望它是:热情、明亮、大胆、自由和舒适的。
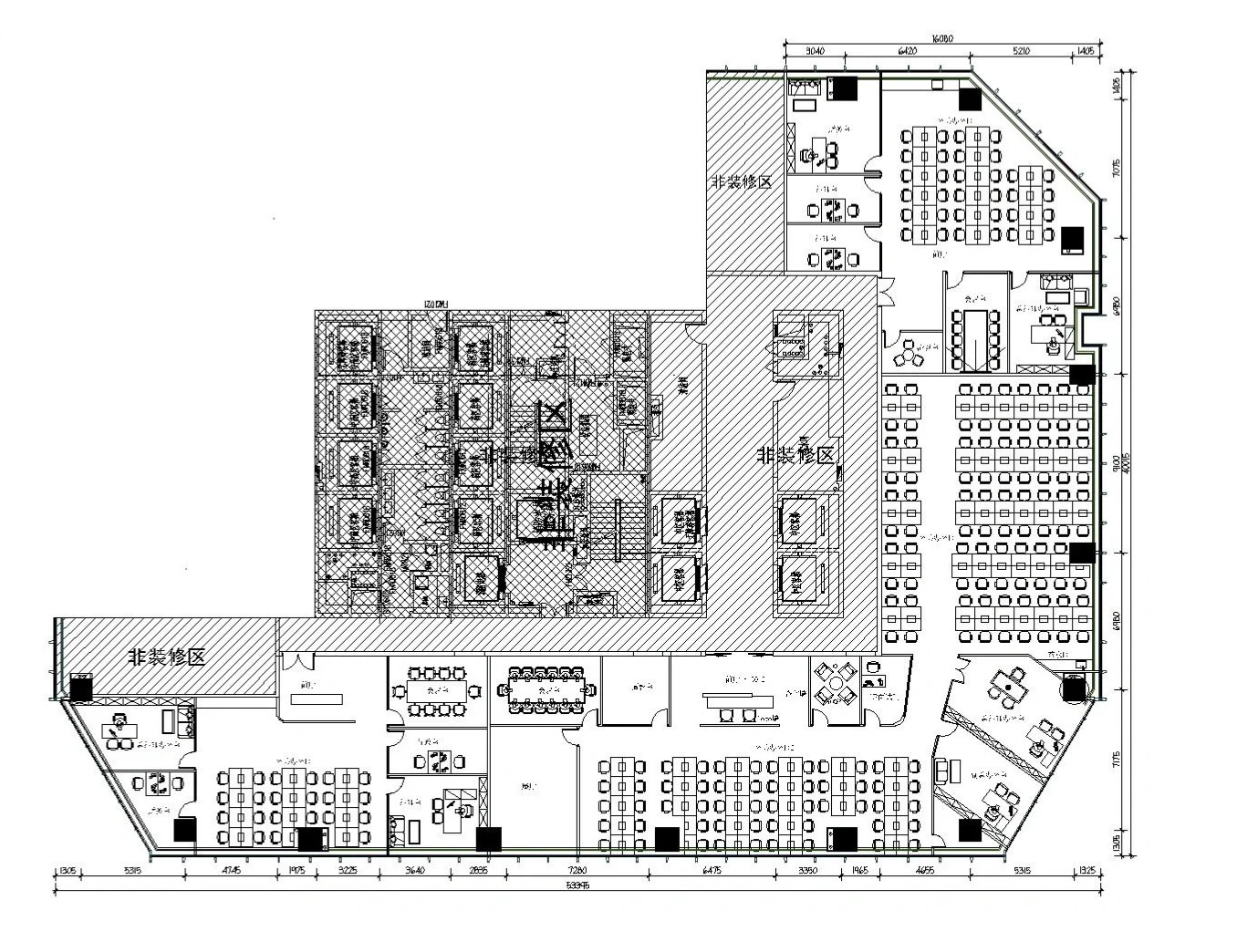
    新大楼一层设有产品展厅和舒适家各系统的智能体验样板间,二层为综合办公区。功能分布满足共享大厅,开放办公区,多媒体会议,小型研讨区,独立办公室,展示体验空间等。作为一个集办公、展示、销售于一体的综合性总部中心,这个空间将面对不同类型的使用人群,它不仅需要实现空间交通的最优化,还要实现员工和顾客的合理分流,以保障办公和体验的不同环境要求。
    共享大厅是平面动线和垂直动线的中心,为了协调空间的松、紧关系,设计师用一个挑高的中庭,把空间的尺度打开,呈现宏大的空间场域,整体感觉更通透。
    设计师注重自然光的艺术运用,通过对顶部折线形天花的处理,在折角处设计透光区,不仅吸纳了自然光进入室内,而且通过这些光线的变化,让空间使用者能感知时间的变化和光的律动。
    一楼的产品展示区设计研讨区和洽谈区,不同产品的每个局部展示空间之间有着相互衔接的关系,员工、访客可以自由穿行。而黑白的色彩变化则增强了空间的识别性,加上可瑞标志元素的运用,视觉体验上更加丰富。        

  • RIDICULOUSNESS / 设计师

    2024年04月21日 22:20:42

    + 关注
    #办公智造#

    为了提高办公的舒适性和效率,设计师将综合办公区设在二楼,除了独立的经理室和高管办公室外,通过中部回廊的设计形成了办公室空间的天然分隔及动线划分,保证各个不同区域的独立性和相对安静的办公环境,令工作效率和人员关系得到优化和改善。
    在智能家居展示区内,简洁的视觉表达和空间装饰,包含了沟通与传达的力量。空间内设可瑞舒适家的四恒系统,保证了整个空间恒温,恒湿,恒氧,恒静,而智能系统则保障了整个办公环境能舒适、便捷、智慧地运行。
    一个有人文关怀、有温度、有情感的设计作品,在社会形态的不断变化下,演变成符合当下时代发展的空间,是设计师对空间最坚实的回应。游走于光与影之间,细致地将情感借由空间阐述一一实现,展呈出一个大胆、自由、开放的办公空间。        

  • 小麦庆 / 设计师

    2024年04月21日 22:14:23

    + 关注
    #办公智造#

    结合别墅空间的特点进行设计,尽可能让空间既显得高端又充满人文关怀
    开放式的办公空间墙面以细直纹木色集成墙板为主,结合白色的桌子,让空间显得更加的时尚和高端;墙面的的标语,既作为墙面装饰的一个部分,也是助理律师们工作准则。
    主任办公室的斜坡屋顶保持了原有建筑空间的样式,通过光带和木纹集成板的搭配运用,让空间既保持了原有的气场,又充满了商务的质感。        

  • 小麦庆 / 设计师

    2024年04月21日 22:12:26

    + 关注
    #办公智造#

    彩色平面布置图        

  • David / 设计师

    2024年04月21日 22:10:29

    + 关注
    #办公智造#

    设计概念
    为了更加贴近公司的行业属性,以及对全球业务发展的办公需求,设计师从甲方行业相关的矿石元素中得到灵感,并运用了解构主义手法,对矿石造型进行抽象切割,形成了简约时尚且具有公司业务特征的办公空间。        

  • David / 设计师

    2024年04月21日 22:09:01

    + 关注
    #办公智造#

    平面布局图        

  • MING / 设计师

    2024年04月21日 21:07:00

    + 关注
    #办公智造#

    武汉普佳尔科技办公空间效果图        

发布话题

公开