当前位置:首页 > 户型图分析

#办公智造#

阅读 999172 | 粉丝 999172

  • 四喜 / 设计师

    2024年04月16日 14:39:17

    + 关注
    #办公智造#

    办公室实景图        

  • 魏馨琪 / 设计师

    2024年04月16日 14:37:10

    + 关注
    #办公智造#

    空间定位以开放性为主,在保证办公区最大限度的开放之下,设计使其他功能区块均匀分布,工作环境显得更紧密。橄榄色的家具,在粗犷锐利的裸露工业感空间里,铺陈出独特的氛围,细节严谨而颇具活力。场所的原始感与陈设的内敛碰撞出丰富的空间表情。点缀性的装饰画与绿植则赋予空间舒适的观感,与整体有序的空间达成平衡。
    空间整体布局中,设计在不规则的场地上,着重营造出中轴序列,从而提高办公空间的通达性与功能性。动线联通的两块办公区域,也利用动线的递进,将功能连贯地置入。        

  • 魏馨琪 / 设计师

    2024年04月16日 14:35:33

    + 关注
    #办公智造#

    大面积的办公区域难免会显得单调,于是设计在工作桌中增添了一些创意细节。沿长桌两端设置的围挡采用特殊材质,可拆装的靠内饰面为随贴的便签贴纸提供便捷,增强了办公桌的功能性。靠外的面板是磨砂银灰材质,易于清理维护,且迎合办公区的工作场景。
    空间开放休憩区域置入了街面店铺式的室内装置,再搭配同色系的置物陈列架,使得这抹橄榄绿成为空间中视觉活跃的存在。环境的整体氛围,被一些反秩序性的空间元素增强了其连贯性。        

  • 张曲峰 / 设计师

    2024年04月16日 14:19:49

    + 关注
    #办公智造#

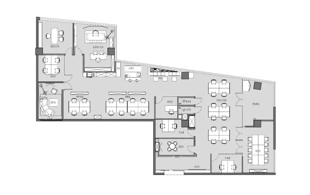
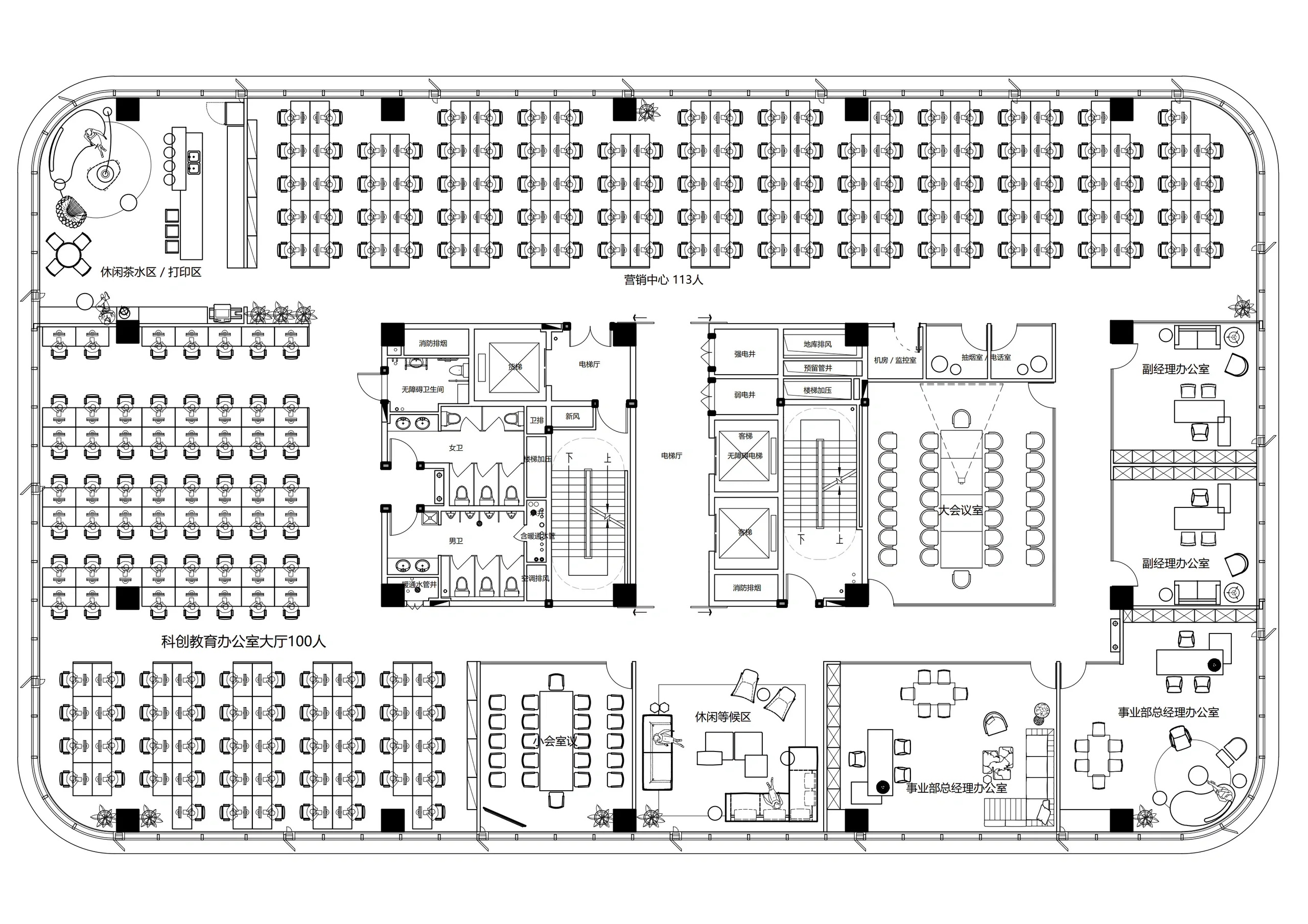
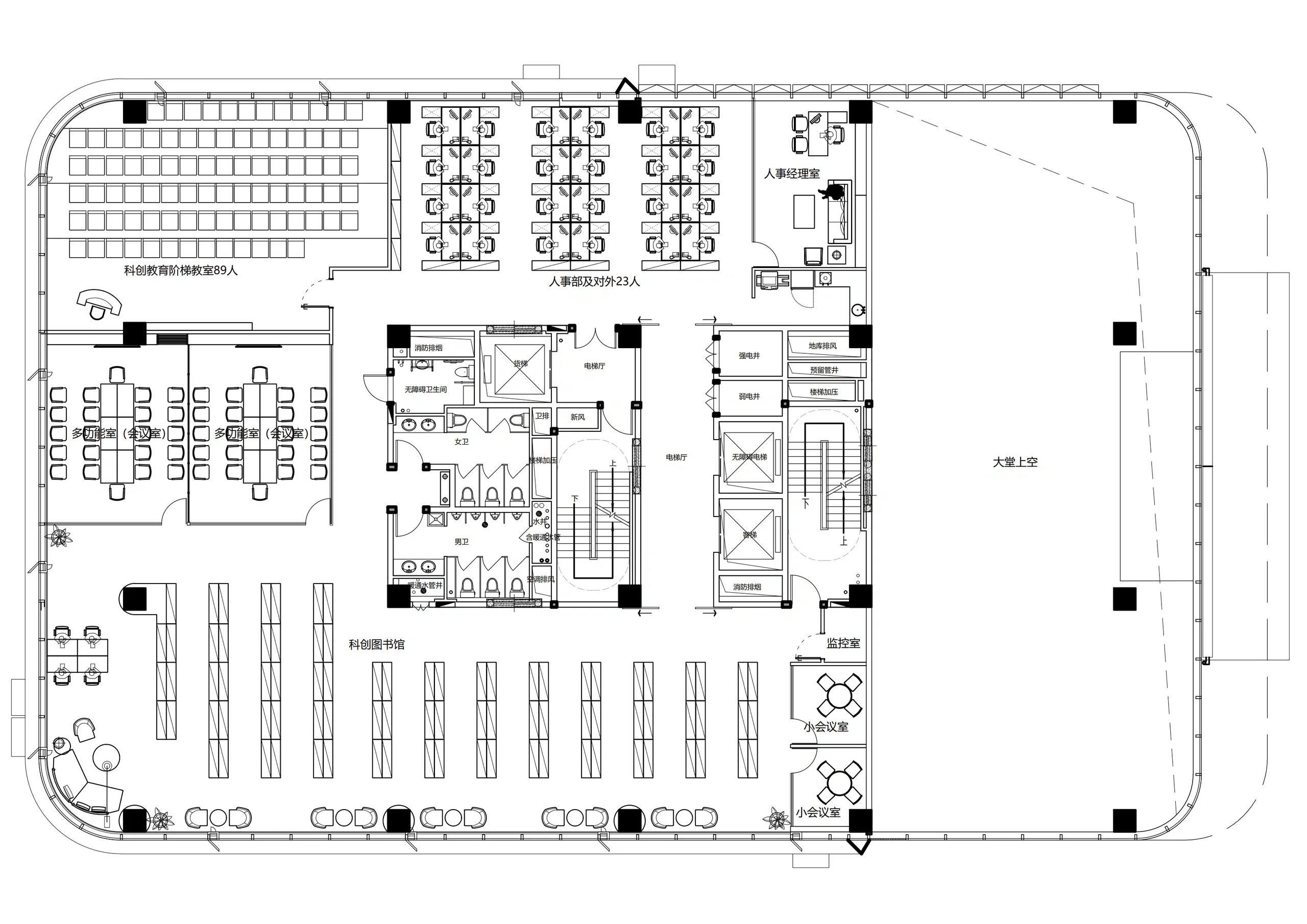
    平面图        

  • 江北梅郎 / 设计师

    2024年04月16日 14:15:44

    + 关注
    #办公智造#

    现场施工图        

  • 江北梅郎 / 设计师

    2024年04月16日 14:13:28

    + 关注
    #办公智造#

    平面图与施工现场图        

  • 丽旻 / 设计师

    2024年04月16日 10:47:31

    + 关注
    #办公智造#

    拙河科技办公空间        

  • 丽旻 / 设计师

    2024年04月16日 10:44:47

    + 关注
    #办公智造#

    武汉康测科技办公室        

发布话题

公开