当前位置:首页 > 户型图分析

#办公智造#

阅读 999320 | 粉丝 999320

  • 邓雄飞@质量官 / 客服

    2024年04月11日 16:47:40

    + 关注
    #办公智造#

    施工过程图        

  • 椿楸 / 设计师

    2024年04月11日 14:13:56

    + 关注
    #办公智造#

    空间格调以稳重的中性灰为基调,墙面大面积的板岩直纹科技饰面板结合青古铜的精致工艺收边,块面体块利索而不失细致;合适的比例划分增添了几分优雅。        

  • 椿楸 / 设计师

    2024年04月11日 14:12:54

    + 关注
    #办公智造#

    深灰色的interface模块地毯使得空间沉稳而富于质感;黑白灰系天然大理石的运用使得办公区展示适度的奢华;陈设上色彩丰富的艺术挂画和艺术品是空间精彩的点缀。        

  • 王倩 / 设计师

    2024年04月11日 07:45:49

    + 关注
    #办公智造#

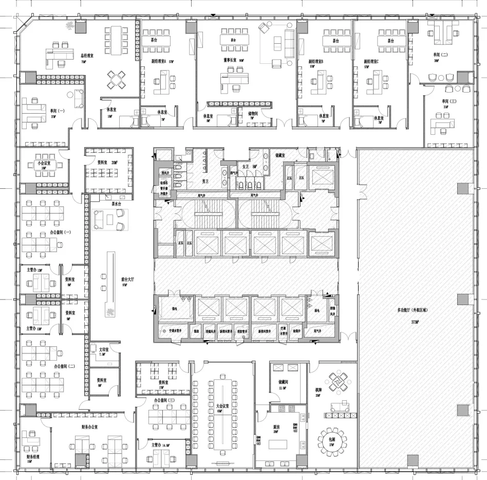
    本次项目为同道实业办公室装修设计。设计师巧妙地将中式设计元素与现代元素相结合,致力于打造一个既传统又现代的新中式开放性办公空间。通过对空间进行重构,我们期望借此机会进一步提升公司的总体形象,展现其厚重而不失细致的企业内涵,为员工和客户创造一个既舒适又富有文化韵味的办公环境。
    前台接待处作为企业的形象窗口,其设计至关重要。设计师巧妙地将木色与大理石元素相融合,营造出一种既现代又温馨的氛围。台面由金黄的铜材料和大理石组合而成,坚固耐磨有质感,线条与体块的设计关系被处理得干净利落,显得既精致又大气。巧妙运用木饰面吊顶与木纹木饰面,不仅为空间增添了独特的质感,更使前台接待处洋溢出一种温馨舒适的氛围,令人倍感亲切与愉悦。        

  • 王倩 / 设计师

    2024年04月11日 07:44:49

    + 关注
    #办公智造#

    办公套间内的装饰收纳柜设计采用了集中化的格式,巧妙地将空间内的各种元素进行简化和梳理。在空间色彩的选择上,设计师以木色和米白色为主旋律,摒弃了复杂的配色方案,更多地追求简洁明快的设计风格。这种设计以提升空间的便捷性,意在营造出一种宁静致远的工作氛围,使人能够在轻松愉悦的环境中高效工作。
    包厢内被精心划分为用餐区和娱乐区两大区域。设计师巧妙地运用立面隔断,将两者分隔开来,却又在视觉上保持了连贯性,实现了隔而不断的巧妙效果。在用餐区,黑、白、灰的色调构成了空间的主旋律,亭台楼阁的水墨壁画与空间软装相得益彰,让人仿佛置身于浓郁的传统气韵之中。天花吊顶设计与特色艺术灯具的巧妙搭配,更是营造出新中式风格独有的舒缓意境,让人流连忘返。而娱乐区则呈现出截然不同的风貌。包厢墙面采用了硬包设计,其中经典复古绿和姜黄做修饰,再点缀以“三缺一”的麻将字样,整个空间充满了时髦复古的气息。设计旨在彰显中国传统建筑的特点和意境,更让人感受到一种独特的个性化魅力。此外,木质地板、软装沙发座椅等空间细节的处理也恰到好处,体现出温润、舒适的轻奢感,让人感到愉悦与放松。
    会议室装饰收纳柜在灯带的映衬下,展现出更加立体且有层次的造型,为整个空间增添了一抹独特的韵味。设计师精心布局,采用方形灯带居中排列,四周筒灯点缀天花吊顶,使得会议空间的光线达到最佳照明效果,同时又不失简约美感。这样的设计既满足了会议室的实用需求,又营造出一种温馨而高雅的氛围。
    大会议室墙面设计别出心裁,结合了烤漆玻璃与硬包两种材质。烤漆玻璃具有直接书写性,为开会时即时总结与决策提供了极大的便利,使会议进程更加高效流畅。天花吊顶的灯膜与造型结构巧妙结合,不仅为空间提供了舒适的光环境,更丰富了空间的层次感与立体效果,使整体设计更显精致与高级。
    董事长办公室的空间格局独具匠心,集办公、商务接待、休憩功能于一体,既实用又高效。设计以原木和暖色为主调,融入中国古典元素的利旧实木办公软装,营造出大气雄浑、气质沉稳的办公环境,充分展现了领导层的非凡品味和个人魅力。天花吊顶采用金色与白色组合,层次分明,不仅丰富了空间的色彩层次,更使得整个设计更加精致,细节之处尽显看点。
    副经理室吊顶设计巧妙融合石膏板与木饰面包边,完美诠释了新中式装修风格的极简美学。边柜、雅致的盆栽绿植、不规则形状的办公桌以及文件装饰柜,每一处细节都彰显出独特品味。枝型吊灯与灯带的点缀,不仅提供了舒适的光环境,更为空间增添了几分温馨与雅致。纵深感的艺术装饰画则为整个空间带来了强烈的视觉冲击力与感官体验,使人仿佛置身于艺术的世界之中。        

  • 王建 / 设计师

    2024年04月11日 07:25:06

    + 关注
    #办公智造#

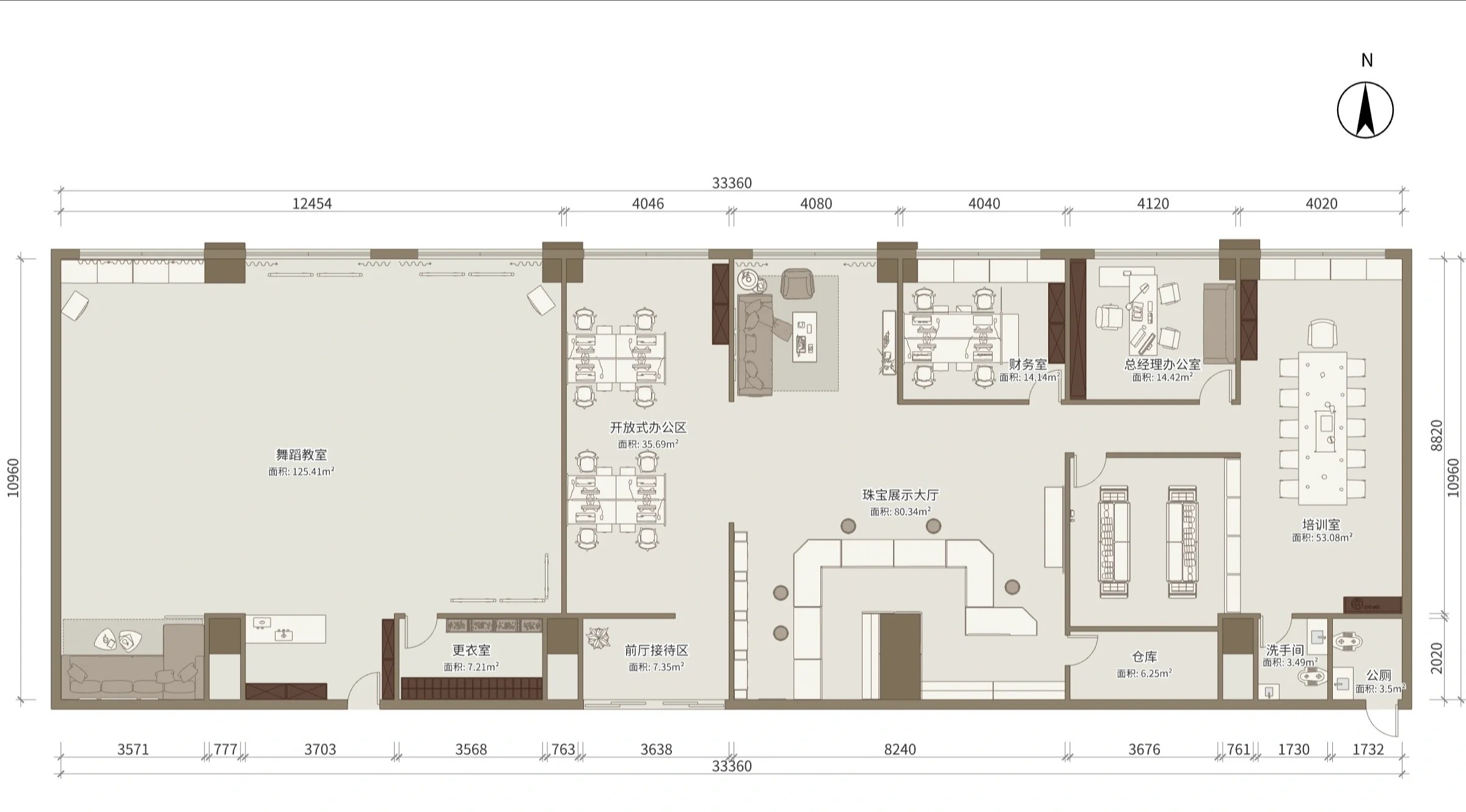
    本案中,设计师突破了办公空间的传统形制,为艺术设计者创造了一个色彩斑斓的场景化空间,让环境与创作在精神层面达成了联通。
    接待区是来访者进入办公室的第一空间,应当是一个严肃而又不失柔和的地方,设计师以材料本身的肌理与灯光氛围的处理达成了这种和谐的矛盾——墙面和吧台采用黑灰色的石材做基础,立面加入暖色调的玻璃砖以及橙色的夹丝玻璃,顶面采用胡桃木皮,以冲淡石材的硬质感,使得整体氛围稳重而不失活泼。
    软装上则使用FLOS的环形吊灯,借由暖色调光让空间色彩丰富、光影柔和,超现实的画面感油然而生。接待区与办公区之间,设计师还特别设置了长长的过道,顶面采用水纹金属,墙身特殊木饰面,明亮且充满序列感的空间过渡让人在心理上有了自然的衔接。
    在满足既有的办公空间需求的同时,设计师又增加了一个独立的图书馆空间,给艺术设计者留有一个可以静下心来查找资料、思考、创作的地方。接待空间被放置在图书馆与办公区的中间,方便访客在等待中进入图书馆,翻阅书籍,感受艺术。
    图书馆并非只是一个摆放书籍的地方,它是一个承载着不同艺术风格、充满想象力的地方,就像顶面的亮面不锈钢,将整个空间的色彩都反射出来,中国红与绿色、蓝色、黑色的碰撞,在不同的视角带来殊异的感受,就像一个童年的万花筒。
    图书馆的墙面使用木饰面和不同色彩的壁纸,让空间充满了神秘感,地面使用黑色坑纹的大理石以及拼花地砖,不仅给空间蒙上一层面纱,而且别具异域风情。        

  • 王建 / 设计师

    2024年04月11日 07:22:46

    + 关注
    #办公智造#

    图书馆的墙面使用木饰面和不同色彩的壁纸,让空间充满了神秘感,地面使用黑色坑纹的大理石以及拼花地砖,不仅给空间蒙上一层面纱,而且别具异域风情。
    从接待区向办公区走去,三个艺术门框迎面而来,客人在心理上感受到一种迎接的仪式感,同时也让工作者在进入办公区时,有一种使命感;穿过门框便进入到办公区域,办公区域主要由会议室、公共办公区及材料室组成。
    会议室内,设计师并没有使用传统的吊灯,而是使用了FLOS的岩板吊灯,整个空间看上去更加高级。椅子的挑选上也没有依照传统,而是使用了不同色彩的皮革座椅,如同设计创作一样,是通过不同的意见、想法的碰撞才会最终形成好的作品。黑镜和不同的木饰面的迭拼,则增加了反射效果及展示感。        

  • 王建 / 设计师

    2024年04月11日 07:20:45

    + 关注
    #办公智造#

    办公区用简单的壁纸、玻璃以及PVC材质,让整体空间通透明亮,减少工作者的疲惫感。在整体布局上,会议室处于整个公共办公区的中央,被一个环形的过道所围绕,流线更加通畅、便利。这样的位置也象征着会议室在工作中存在的意义:会议室就是普通工作者的舞台,而公共办公区就是准备间。设计工作者在后台日以继夜的准备,就是为了在会议室这个舞台上向观众展现一个满意的作品。
    材料室则用最为简单的木胶板和黑色金属,以最大程度地减小设计师在判断材质时受到的影响。
    从图书馆到接待区再到办公区,艺术的浓郁氛围逐渐淡化,这是一种仪式,暗示着我们艺术的创作不能只是天马行空的想象,也是对客户需求的一种现实满足,我们需要让艺术融合在实际情况下来解决客户需求。        

发布话题

公开