当前位置:首页 > 户型图分析

#办公智造#

阅读 999457 | 粉丝 999457

  • 饶阳 / 设计师

    2024年04月09日 16:32:02

    + 关注
    #办公智造#

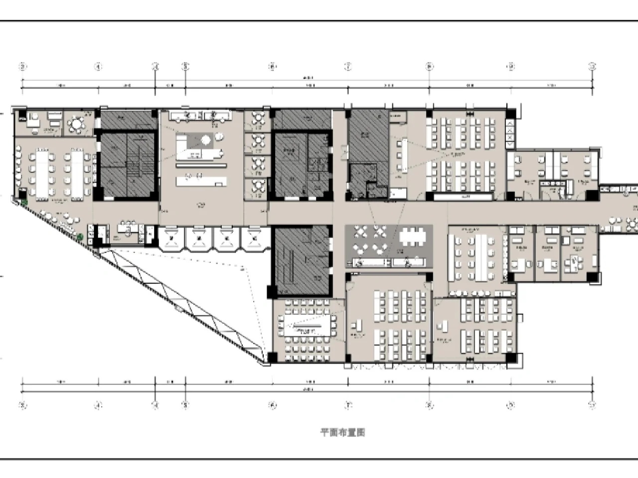
    Purplevine IP项目设计上设计师提取深圳紫藤的核心理念“专业、敬业、乐业、创业。”四大核心理念为基调,以知识产权为支点将传统竹简的设计元素用现代手法融入当下科技未来的大潮流,关心员工’是绿色办公空间的目的,通过提升空间温度湿度和采光的舒适度、降低室内装修带来污染提高空气品质、使用环保材料等方式去创建健康的绿色办公环境.通过绿色环保节能设计,可以降低能源运营成本.过绿色设计为社会环境和生态环境做出一份贡献。
    功能分布原则:进门印入眼帘的开放式兼具前台、办公、接待功能于一体的接待空间,幕墙延边均以常用办公人员为主,核心筒内测视野、通风、采光较差的区域设置办公配套功能,并以核心筒的交通动线为核心辐射各个功能区,满足高效办公的原则。动静分离:办公空间南区西区为接待区使用模式(动区),它融合接待、面试,对外文化展示,咖啡社交休闲等多元化功能,北区、东区为较为私密安静专业性办公区使用模式(静区),动静区通过休闲区链接,员工可携带笔记本在这里沐浴        

  • 饶阳 / 设计师

    2024年04月09日 16:30:51

    + 关注
    #办公智造#

    进入前厅接待台将视野带入整个空间,富有变化的竹简屏风造型让前厅于虚实之间自如转换,加强前厅和后台办公区采光及沟通,通过用隔而不断的方法打造空间,制造空间视觉通透感。
    亲自然设计元素如绿色永生苔藓、自然材质和纹理,都巧妙的融入整个环境中,强调空间与自然的联系。
    主要动线的墙面以天然的擦色胡桃木与深空灰装配式玻璃隔墙。
    公共办公区与接待区之间的缓存区,突破以封闭、约束的传统局限办公模式、高效、开放随时独处、随意合作的空间设计理念,同时也可以作为举办企业活动的绝佳地点。
    特色阶梯座对会议模式模式的重新思考,也促进了创造性的交流互动。        

    筑先生

  • 饶阳 / 设计师

    2024年04月09日 16:28:17

    + 关注
    #办公智造#

    大会议室以装配超透玻璃隔墙形成互动的大型空间,,临窗的座椅让你俯瞰城市繁华、坐拥震撼视野。
    配上全部柔和的上下发光的慢反射灯光系统,这样的工作环境才子、佳人怎么能不好好写案子从而默默地为中国科技产业的专利问题护航保驾。
    黑白调空间加上极简的办公家具展现紫藤人的工作需要就是这么简单纯粹。
    白色调融合简洁的线条呈现了现代办公美学空间的格调,在有形的场所中领悟无形的精神“坚韧、乐趣、宁静。
     CEO办公室则是时尚与文化的结合,禅意中丝丝流出国际时尚的气息。        

  • 张曲峰 / 设计师

    2024年04月09日 16:13:19

    + 关注
    #办公智造#

    空间布局采用开放式设计,以自然光线为主,营造出明亮、宽敞的感觉为确保工作的私密性和高效性 ,为员工提供一个轻松的办公空间        

  • David / 设计师

    2024年04月09日 07:47:50

    + 关注
    #办公智造#

    办公楼设计        

  • David / 设计师

    2024年04月09日 07:46:54

    + 关注
    #办公智造#

    办公楼设计(2)        

  • 阿正 / 设计师

    2024年04月09日 07:35:03

    + 关注
    #办公智造#

    设计公司办公室        

  • 魏馨琪 / 设计师

    2024年04月08日 20:42:05

    + 关注
    #办公智造#

    AI设计效果图        

发布话题

公开