当前位置:首页 > 户型图分析

#办公智造#

阅读 1000125 | 粉丝 1000125

  • 朴素 / 设计师

    2024年04月04日 11:13:46

    + 关注
    #办公智造#

    打造成一个融合未来感、科技感的新型办公空间。设计中以蓝白米色为主色调,以大理石、高透玻璃、亮面金属、部分木制品等材料组合点缀,整体呈现稳重而不失精致的空间品质。
    大堂纯白明镜让人一进门就感受到扑面而来的科技感,天花吊顶设计犹如行云流水般舒张自如,统一协调中又简洁有力。
    公司展厅为设计一大亮点,亦是展示宏微科技的长期研究研发出的独家产品。从智慧共享的概念出发,简洁大气的设计搭配先进的智能化配置,形成空间与人的智能连接。        

  • 朴素 / 设计师

    2024年04月04日 11:11:54

    + 关注
    #办公智造#

    办公休闲区域的设计充分考虑了高科技企业员工在办公室高度交流性的特点,灵活开放的空间满足各种功能需求,促进了公司内部的沟通融合也同时增强了员工的凝聚力和归属感。充分彰显了当代高科技企业的创意,探索了新型高科技企业面向未来发展的空间创意模式。        

  • Jason / 设计师

    2024年04月04日 09:55:02

    + 关注
    #办公智造#

    前厅 通过对品牌文化的了解,“头道汤”养生之道系列产品源于自然,取之于自然用之于自然,以更自由更自然的方式释放空间,从而觅得心灵与精神的松弛。
    开放办公区  增加休闲服务空间,提高空间服务属性的体验升级、提升视觉、触觉、感觉舒适度,更新对「新的 生活工作方式」的理解与认知。更能充分体现“头道汤”品牌文化的人文关怀 以匹配日益壮大的企 业发展。        

  • 江北梅郎 / 设计师

    2024年04月04日 09:32:51

    + 关注
    #办公智造#

    墙面的洞口开启,传统借景手法与解构主义结合,赋予空间更多的表达,同时也增加了走道的趣味体验,
    弥漫着温暖舒适自然光线的办公空间!        

  • 江北梅郎 / 设计师

    2024年04月04日 09:30:11

    + 关注
    #办公智造#

    现代的洗手间的设置不应该局限于藏而理应精致的露,所以我们在打造卫生间区域,更多的加入了定制元素,饰面的选择,极致黑色的台盆区打造,多动线环绕设计使得整个洗手间区域可以成为空间的重要组成部分
    柔和纯净的空间,坚持使用大面积木饰面,并贯穿始终,除此之外,根据不同的位置,采用玻璃等元素进行配搭,丰富视觉层次,同时保证空间的通透性,使得空间更加明亮,通透,柔和。并且采用均匀照射和漫反射光源,避免直线光射。设计团队希望打造一个没有边界,没有聚焦的场所,让空间无限延展下去,室内外慢慢融合起来,给使用者一个舒适的环境!        

  • 江北梅郎 / 设计师

    2024年04月04日 09:28:16

    + 关注
    #办公智造#

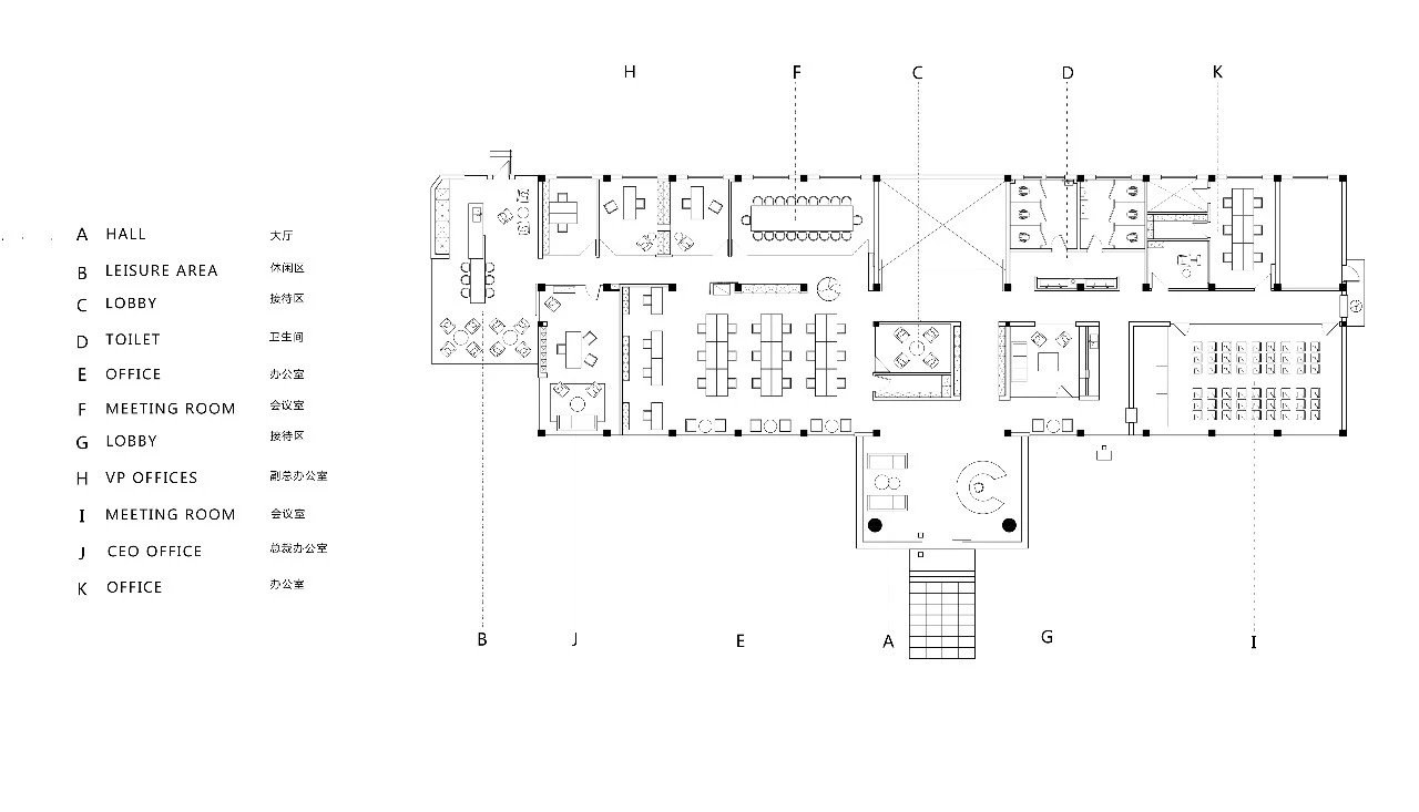
    平面图,The floor plan
    轴测图,Axonometric drawing        

  • 阿正 / 设计师

    2024年04月04日 07:41:00

    + 关注
    #办公智造#

    简洁明亮的会议室和办公室,无数灵感和设计在这里迸发。        

  • Bobo / 设计师

    2024年04月04日 07:31:25

    + 关注
    #办公智造#

    臻晨专注于股权咨询,服务客户涉及室内设计、餐饮、服装等诸多领域。借由公司拓展契机,臻晨希望拥有一个既能体现公允、严谨、理性特征,而又能蕴含自身理念的办公空间,以全新的环境迎接全新的挑战。如何在行业现有办公空间整体“专业而略显严肃”的基础上,通过设计融入一份轻松,为客户带来自然亲近的信任感,是设计的初心。
    日光婆娑,柔和慵懒,光线如金色的丝线悄然进入静谧的空间,温暖每一寸寂静。设计以不同尺度的体块与横平竖直的线条勾勒出空间的框架,在小空间中营造出建筑结构之美。
    纯粹主义表达的极致光影,塑造着空间的明暗。自然光透出颜色的阴影,深浅不一,光线的反射效应又增加了立面上的空间感。
    理性的设计以简爽铺陈,为空间秩序增添酣畅的笔触,这不仅是对德式美学的践行,亦是对臻晨新生的雕琢。
    空间原始结构方正规整,设计重新调整布局,增加夹层扩大空间功能面积,适度加入隔断消除空间的单调,调整上下空间流通的灵动性。
    德式美学作为设计灵感之源起,空间于细节处展现的方、角、圆基础几何形态所带来的粹然理性美,以及线性与秩序美的交织融合共同蕴含于空间之下,关于平衡的智慧。整体细节的有条不紊带来理性的秩序,理性的秩序下透露出纯粹的气息。
    拉姆斯说“少是更好”,少的设计介入往往会出现更好的空间,朴素的空间表达更能凸显其固有体量感和几何感,极致的简约是高级,是一种以少胜多的智慧,用简单诠释不简单。
    设计以现代极简强调空间装饰的开放性,保持统一的色彩基调下空间转折之间的流通性与体积变幻。
    除去基本的体块承载主要功能区域外,设计以清晰的方式传达信息,摈弃冗余复杂的装饰,凸显核心区域功能。陈设家具避免选品厚重,以轻、巧、细的轻盈度填补空间空白,少量的色块变化创造空间通透感,理性严谨的办公气质下,松弛感如影随形。        

发布话题

公开