当前位置:首页 > 户型图分析

#办公智造#

阅读 999790 | 粉丝 999790

  • 杜飞 / 设计师

    2024年04月04日 20:47:30

    + 关注
    #办公智造#

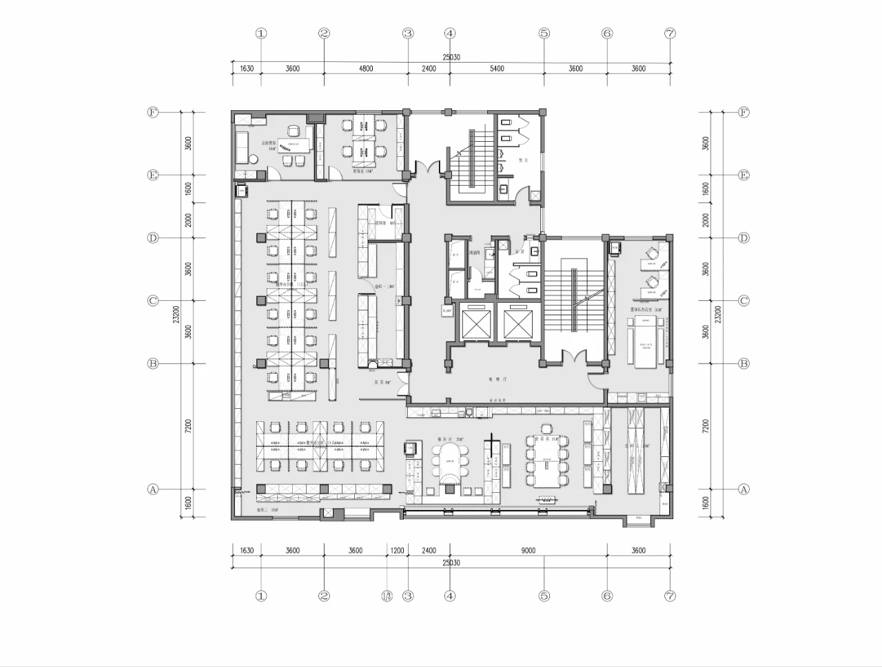
    企业会所        

  • 毛均峰 / 设计师

    2024年04月04日 19:49:43

    + 关注
    #办公智造#

    门厅左边采用定制穿孔铝板做了一幅山水图做隔断(为了定制这个穿孔图形,设计师排版了一周时间),右边整面磁吸墙,方便甲方针对不同时节流行的布料元素随时做更换,空间也能更多元化。右上方水波纹灯的纹路反射下来刚好能衬托布料小样。顶面采用镜面不锈钢吊顶使原本较小的大厅有了一种无限的拉伸感,正面形象墙玄关柜采用凌空吊装,使前厅空间看上去更富有层次感。        

  • 毛均峰 / 设计师

    2024年04月04日 19:46:23

    + 关注
    #办公智造#

    办公区天花以铝格栅和工业风半裸顶方式做吊顶,格栅作为一种常见的设计元素,朦胧优雅而不沉闷,格栅之间穿插长条平板灯,木纹格栅流畅的线条和灯光结合在一起形成不一样的视觉效果。        

  • 毛均峰 / 设计师

    2024年04月04日 19:44:46

    + 关注
    #办公智造#

    会议室天花以长条平板灯作为主灯,格栅周围使用线性灯绕一圈围成长方形,再将长条平板灯穿插于格栅之间,让天花板有了立体效果。会议室右侧墙设置格子间立体柜,赋予空间更多元素,这里主要承担布料展示功能。
    董事长办公室是彰显企业领导风格定位,体现公司形象,表达企业文化价值的一个重要办公场所,因此整体空间设计师还是沿用现代、简约、大气的风格为主。纬康的企业文化中,每个人都有作画的习惯,中间会议桌也是近几年他们一直在绘画中使用的,在甲方的要求下利旧使用,也算是对该公司企业文化的一种传承。为迎合员工经常在此画画的需求,天花板使用灯光软膜作为主体光源意在模仿自然光,墙面采用烤漆玻璃加毛毡板形式,方便董事长在会议中书写及做决策等使用。
    经理办公室天花采用嵌入式磁吸轨道灯照明,办公桌正后方置入绿植和装饰画,叶脉装饰画既抽象又典型,设计师使用毛毡板粘于右侧墙面,组装拼接成一面艺术墙,实木材质办公桌提亮整个空间。
    休闲区从左侧长方形吧台到圆柱体台柱再到第二层的吧台桌延伸至第一层长形椭圆桌,此工艺为一个整体。员工下午茶,平时看球赛等都可在此放松休闲。空间两侧没有过多修饰,而是使用了大的立面柜做空间装饰。        

  • 毛均峰 / 设计师

    2024年04月04日 19:41:37

    + 关注
    #办公智造#

    卫生间与平面图        

  • 扫地僧 / 设计师

    2024年04月04日 19:34:13

    + 关注
    #办公智造#

    办公室实景图        

  • Hello廖芳 / 设计师

    2024年04月04日 19:26:12

    + 关注
    #办公智造#

    室内设计的根本目的在于为使用者创设舒适,合理且优美的室内环境,而美学韵律在实现舒适,合理且优美的室内环境中发挥着重要作用,其不仅影响空间使用者的感知,还影响空间的使用效果。        

  • Hello廖芳 / 设计师

    2024年04月04日 19:24:57

    + 关注
    #办公智造#

    运用抽象艺术搭配的室内空间,拥有者具像艺术所不能比拟的不可言说性,于随意中透漏着和谐,于杂乱中透漏着统一。        

发布话题

公开