装修案例
灵感美图
找设计
找工长
看工地
记住密码
我已阅读并同意注册协议
发布话题
「太空花园」为空间主题|入眼皆是绿意葱葱与剔透敞亮的间隔圆滑的线条带着流畅感轻盈灵动的空间构造流畅开阔的空间视野塑造出空灵无限的空间意境
艺术气息扑面而来
极简风...
办公空间落地
跨界融合型办公空间设计
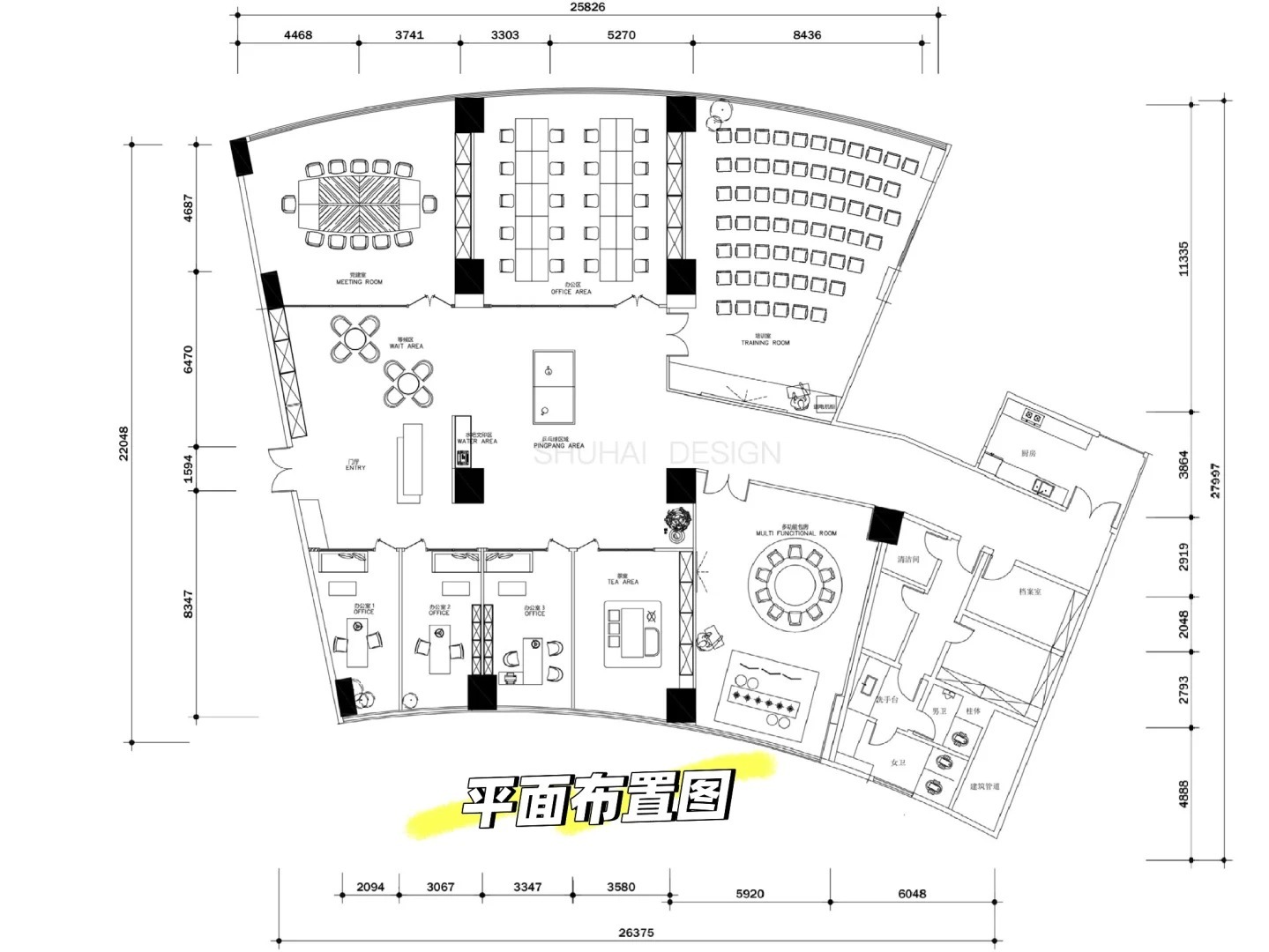
律所办公空间设计(1)
律所办公空间设计(2)
进度图...