当前位置:首页 > 户型图分析

#办公智造#

阅读 995234 | 粉丝 995234

  • 小海 / 设计师

    2024年05月22日 19:56:49

    + 关注
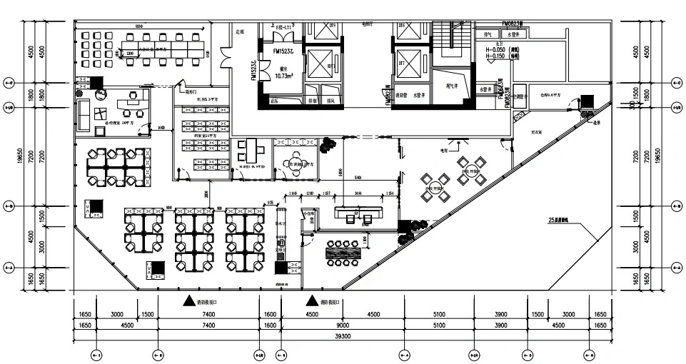
    #办公智造#

    平面布局图,妥了        

  • MING / 设计师

    2024年05月22日 19:55:31

    + 关注
    #办公智造#

    稳重大气黑胡桃办公空间        

  • 王倩 / 设计师

    2024年05月22日 19:49:35

    + 关注
    #办公智造#

    办公空间赏析        

  • 杨梅酱 / 设计师

    2024年05月22日 19:47:29

    + 关注
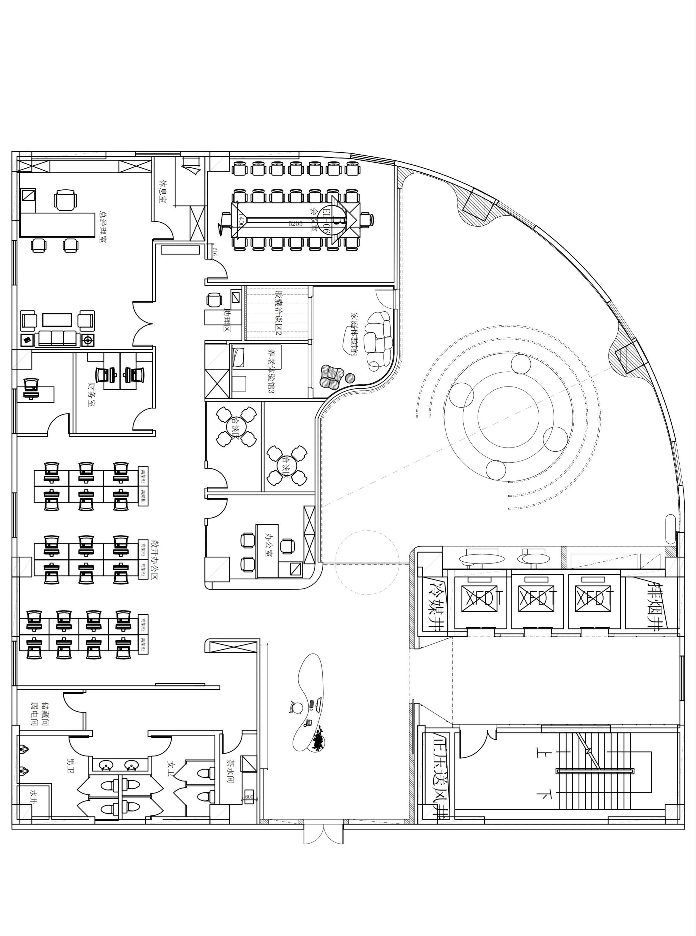
    #办公智造#

    从骑楼建筑结构中提取元素,通过解构与演变,结合当下的生活方式,用当代的设计手法,将空间与功能、空间与建筑相融合,演绎成一段古与今的对话。
    水吧区作为衔接洽谈区与展示区的枢纽区域,具备完善的商务服务功能;环绕弧形吧台或坐或立,伴随咖啡的阵阵浓香,休闲亦或独处兼具。

  • 杨梅酱 / 设计师

    2024年05月22日 19:45:04

    + 关注
    #办公智造#

    墙面与天花黑白造型的强烈对比凸显空间的厚重底蕴,展示功能与路演功能共同构成一个可开可合的多功能空间。在留白的艺术包裹下,塑造空间的深远层次。
    柔和的天光营造安静的氛围,以木色和浅米作为主色调,在纯粹的空间中尽情释放健康与活力。        

  • 夏毅 / 设计师

    2024年05月22日 17:05:02

    + 关注
    #办公智造#

    办公空间设计案例        

  • 毛均峰 / 设计师

    2024年05月22日 16:13:36

    + 关注
    #办公智造#

    竸天公诚律师事务所办公室        

  • 毛均峰 / 设计师

    2024年05月22日 16:12:10

    + 关注
    #办公智造#

    竸天公诚律师事务所办公室        

发布话题

公开