当前位置:首页 > 户型图分析

#办公智造#

阅读 995231 | 粉丝 995231

  • KIWI / 设计师

    2024年05月23日 22:59:04

    + 关注
    #办公智造#

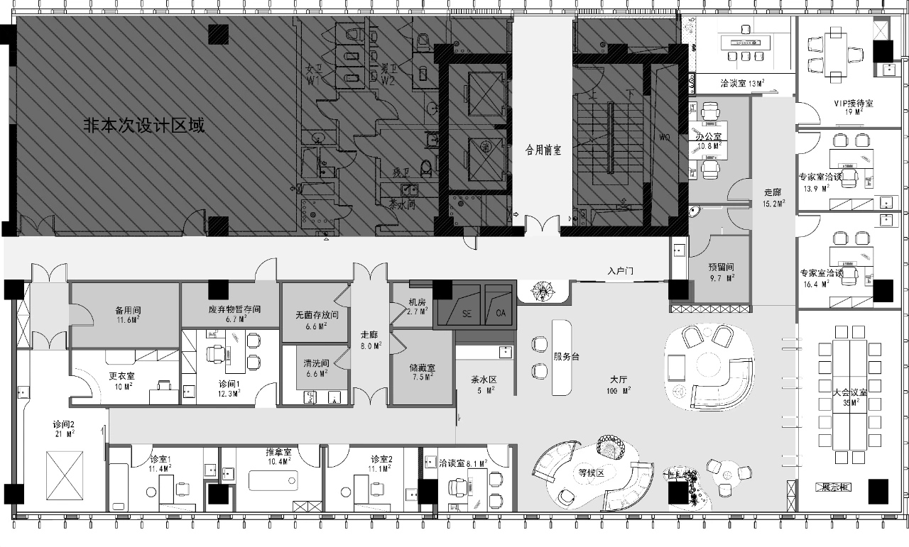
    办公商务接待属性和医疗专业属性的空间分别置于核心会客区两头,满足不同使用者各自所需的私密性。诊室走廊的尽头是黑科技健康设备体验室,配备了专门的更衣梳妆室。        

  • KIWI / 设计师

    2024年05月23日 22:57:28

    + 关注
    #办公智造#

    整个空间的线型由直线与圆构成,材料和配色都尽可能的低调,只雕琢功能所需,去除一切不必要的装饰。
    软装也全部选用最基本的款式,用流畅的线条和温和的材质来完成空间的搭配,由水、光、景为空间带来气韵。由此营造不争、向内的静谧氛围,现代主义的空间语言与源自古老东方的“道法自然”在此殊途同归。

  • 饶阳 / 设计师

    2024年05月23日 22:38:52

    + 关注
    #办公智造#

    XIANGHAO办公空间 

  • 饶阳 / 设计师

    2024年05月23日 22:37:29

    + 关注
    #办公智造#

    XIANGHAO办公空间   

  • 饶阳 / 设计师

    2024年05月23日 22:35:18

    + 关注
    #办公智造#

    XIANGHAO办公空间

  • 超哥 / 设计师

    2024年05月23日 22:10:07

    + 关注
    #办公智造#

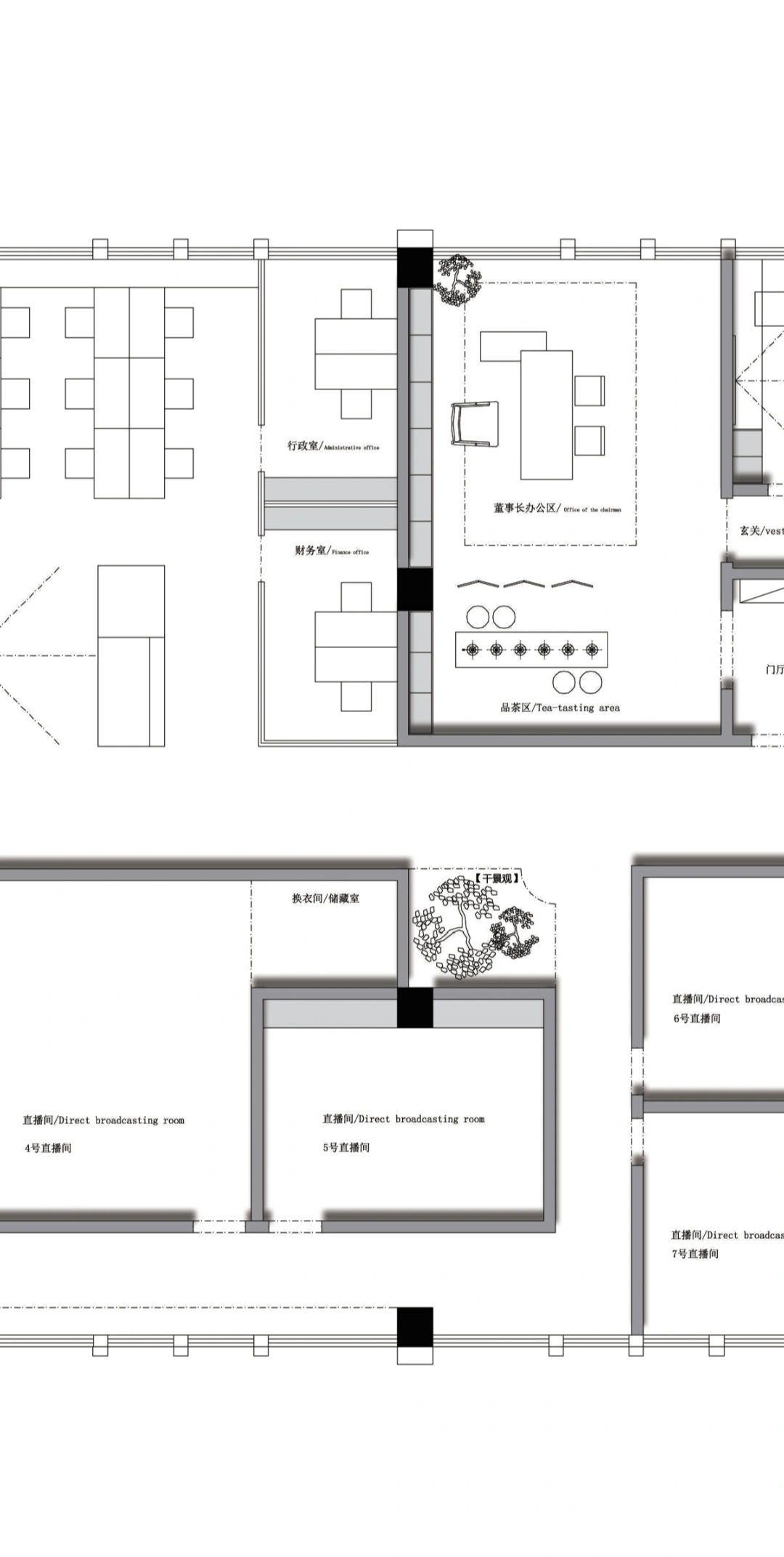
    平面设计图        

  • 毛均峰 / 设计师

    2024年05月23日 21:17:09

    + 关注
    #办公智造#

    会议室与报告厅        

  • 菲菲 / 客服

    2024年05月23日 20:52:44

    + 关注
    #办公智造#

    办公室设计||办公室的设计和装修,不仅仅是对空间的美化,对企业发展的一种信心加持;更是一种对员工的深切关怀;它让员工感到,这里不仅仅是工作的地方,更是一个可以成长、可以放松、可以享受生活的空间。
    在这样的空间工作,每一个角落都散发着舒适与时尚的气息,每一次呼吸都能感受到公司对员工的尊重和关怀;让员工即使在休息日,也能感受到一种对于公司的独特的依恋,这就是归属感。        

发布话题

公开