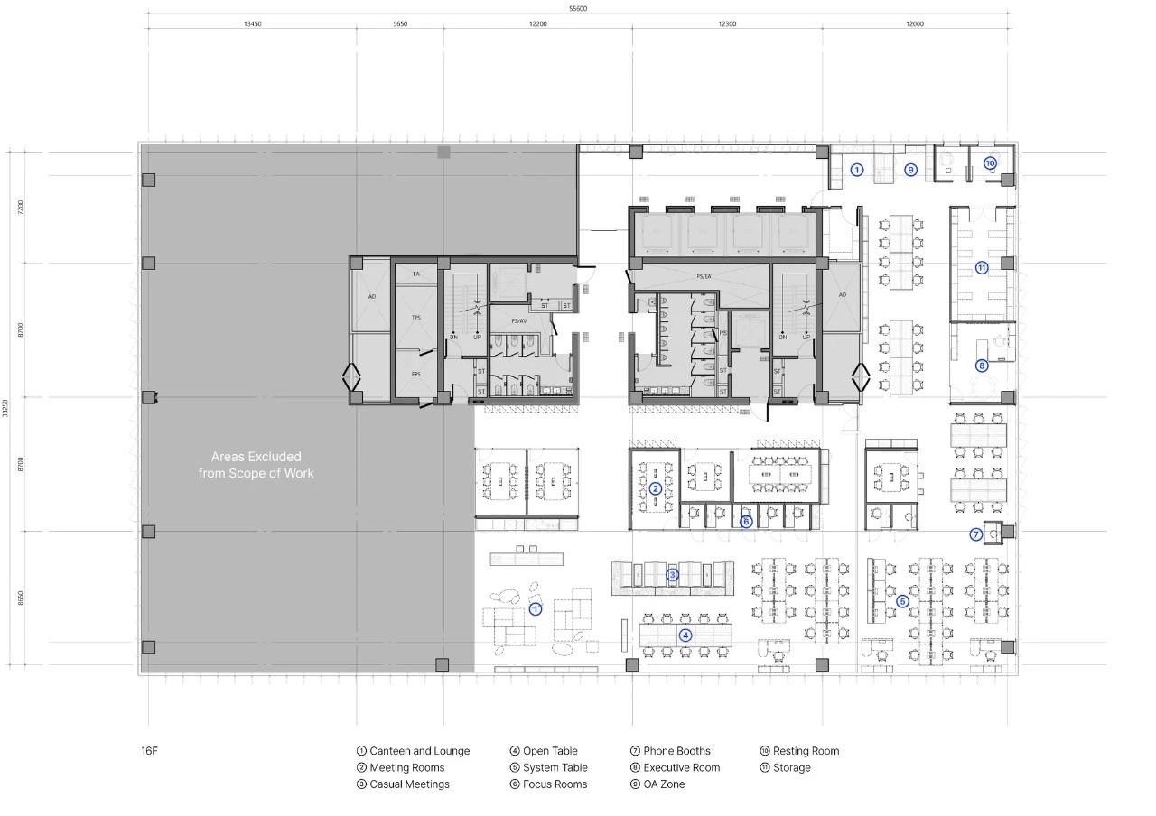
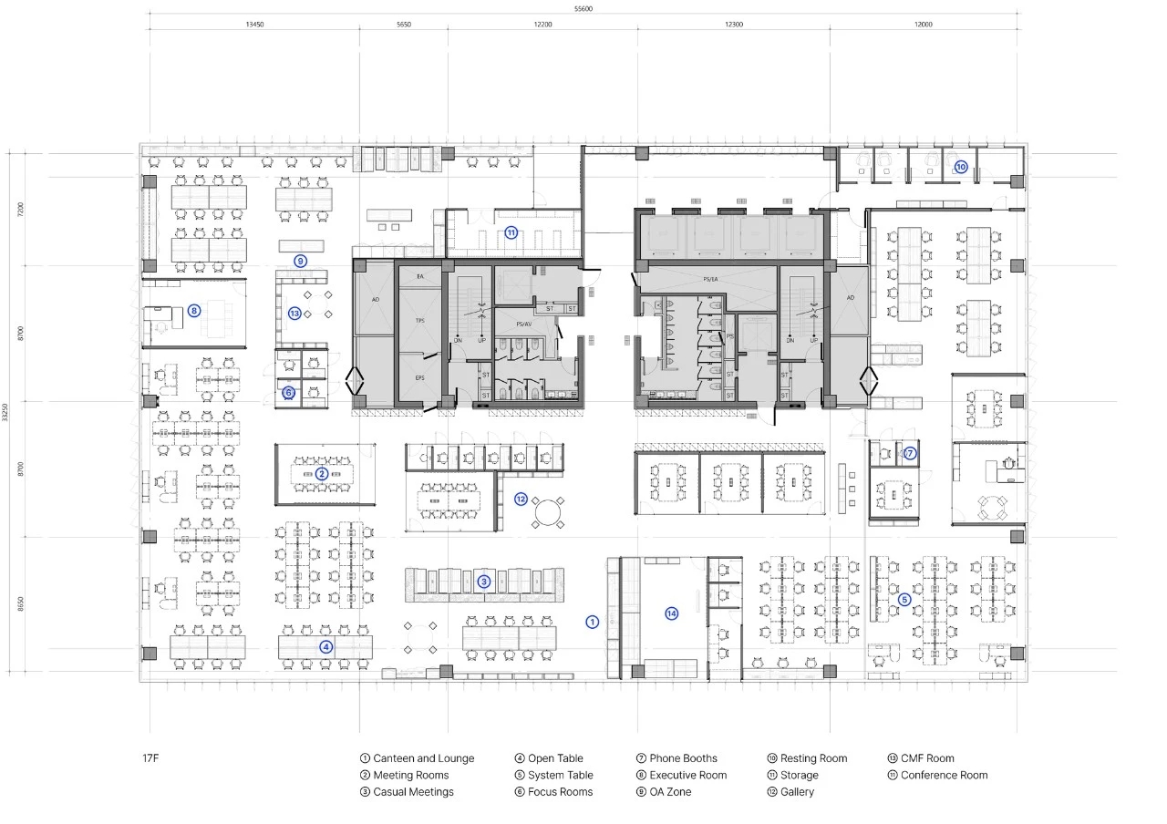
当前位置:首页 > 户型图分析

#办公智造#

阅读 995187 | 粉丝 995187

  • David / 设计师

    2024年05月22日 21:04:15

    + 关注
    #办公智造#

    Golden Goose入驻新的亚洲总部,该空间占地550平方米,尽管其布局传统,却与Golden Goose独特的美学风格完美契合,即自由随性、共同创造、颠覆传统又始于传统。        

  • 曹杨Young / 设计师

    2024年05月22日 20:50:32

    + 关注
    #办公智造#

    新弄里电竞直播项目        

  • Diana / 设计师

    2024年05月22日 20:30:35

    + 关注
    #办公智造#

    铭泰激光总部办公楼(1)        

  • Diana / 设计师

    2024年05月22日 20:29:33

    + 关注
    #办公智造#

    铭泰激光总部办公楼(2)        

  • 木子李 / 设计师

    2024年05月22日 20:15:43

    + 关注
    #办公智造#

    这个空间中,集合了开放式的办公区、厨房、休息区和接待区,营造出了共享的氛围,而会议室和经理办公室则由木质和石质建块形成,悬浮在开放空间之上,划分了公共空间,但并未使其变得封闭。这种设计仿佛是一种空灵的艺术,将浪漫与实用相融合,演绎出了独具特色的建筑风格感的空间。
    为了呈现一个独特坚实的外观,同时保障员工的隐私,独立办公桌采用坚固的水磨石隔板设计了围合。这种设计既具有优美的外观,又具有实用的功能,为使用者营造了一个安静、私密的工作环境,使其更加专注和高效地完成工作。
    项目的整体理念是在开放空间中营造出优雅、高端而又舒适的氛围,就像在空间中漫步的体验。采用天然橡木材质和水磨石砖交替覆盖墙面和地面,打造一个温馨舒适的空间。在封闭的办公室区域内,通过合理地安排吊顶,让工作区域的管道和系统暴露出来,充分发挥了空间的实用性。

  • 木子李 / 设计师

    2024年05月22日 20:13:48

    + 关注
    #办公智造#

    当你进入管理办公室和会议室时,你会被它们独特的色彩所吸引。个人办公室主要采用淡雅的色调(卡其绿、粉绿和天蓝色),墙面、天花板、地毯和橱柜木漆都采用这些色彩;而会议室则更加活力,采用珊瑚粉色。这种色彩感官的设计,一定会给人留下深刻印象,让人愉悦、放松。这些淡雅的色彩设计不仅有助于让人保持放松的状态,提高专注力,同时缓解压力。同时可以通过配饰及色彩,营造独具特色氛围印象。
    在会议室中使用珊瑚粉色可以激发人们的注意力和沟通能力,帮助更好地促进交流和合作。此举可以在营造舒适的环境的同时,提高会议的效率,也让参与其中的人们感到更加轻松愉悦。
    总裁办公室融合了高端时尚设计和实用功能性,所有墙面均铺设了水磨石,并采用深色地毯进行装饰,同时我们还添加了不失年轻元素的不锈钢墙面和门,为整个空间增添了独特的现代氛围。这样的设计让CEO办公室不仅彰显了高品质的建筑美学,更体现了现代企业的理性与包容心态。
    在整体空间复古摩登的基调上,在CEO办公室融入了未来感。我们用CEO最喜欢的漫威角色钢铁侠作为陈列的主题之外,同时用金属元素作为视觉的焦点,灵感来自来当下科幻作品的风格。        

  • 敏颜 / 设计师

    2024年05月22日 20:08:27

    + 关注
    #办公智造#

    COM 致力于创新设计解决方案,创造能够促进协作和提高工作效率的工作空间,这真正体现了他们塑造未来办公环境的决心。通过不断突破界限和重新定义现代工作空间设计标准,COM 继续引领着办公环境工作和互动方式的变革。他们将功能性与美学魅力完美结合的能力,使其在行业中脱颖而出,成为卓越室内设计的新标杆。
    阁楼天花板给人明显而有条理的印象——为了展示阁楼天花板,COM 刻意摒弃了标准办公环境中明亮的荧光灯和纯白色的天花板瓷砖,营造出一种令人耳目一新的宽敞感。通过引入呈网格状排列的吊灯,整个办公室沐浴在柔和、诱人的光芒中,天花板显得轻盈而有序。
    办公室内的特定区域,如会议室和行政办公室,被精心设计成独立的功能空间,分散在宽阔的区域内。在这些不同的区域中,还建造了各种不同大小的空间,以容纳公共区域,如咖啡厅、休息室、工作站、办公室内的座位区,以及将它们无缝连接在一起的隐藏通道。        

  • 敏颜 / 设计师

    2024年05月22日 20:06:28

    + 关注
    #办公智造#

    木制家具上的光线交相辉映,营造出温馨宜人的氛围——一踏入工作场所,映入眼帘的是 5 米高的天花板,上面装饰着 400 个闪闪发光的银色吊坠,给人留下了深刻的第一印象。员工聚集和工作的区域则给人一种不同的感觉,天花板由纵横交错的铁梁构成,展示着裸露的木制家具和由木板围成的舒适小房间,营造出一种既舒适又温馨的氛围。
    白天射入的阳光与木制家具和玻璃架相互作用,投射出不同的光影,使整个区域生机勃勃。夜幕降临时,吊灯发出的柔和光芒在木板和铁质结构上熠熠生辉,让整个办公室笼罩在轻松舒适的氛围中。每个工作区都呈现出不同的氛围,与室外变幻的景色相得益彰,为Genesis 的员工提供了自主的座位,让他们的日常工作充满期待和愉悦。

发布话题

公开