当前位置:首页 > 户型图分析

#办公智造#

阅读 997451 | 粉丝 997451

  • 张小葵 / 设计师

    2024年05月10日 06:39:20

    + 关注
    #办公智造#

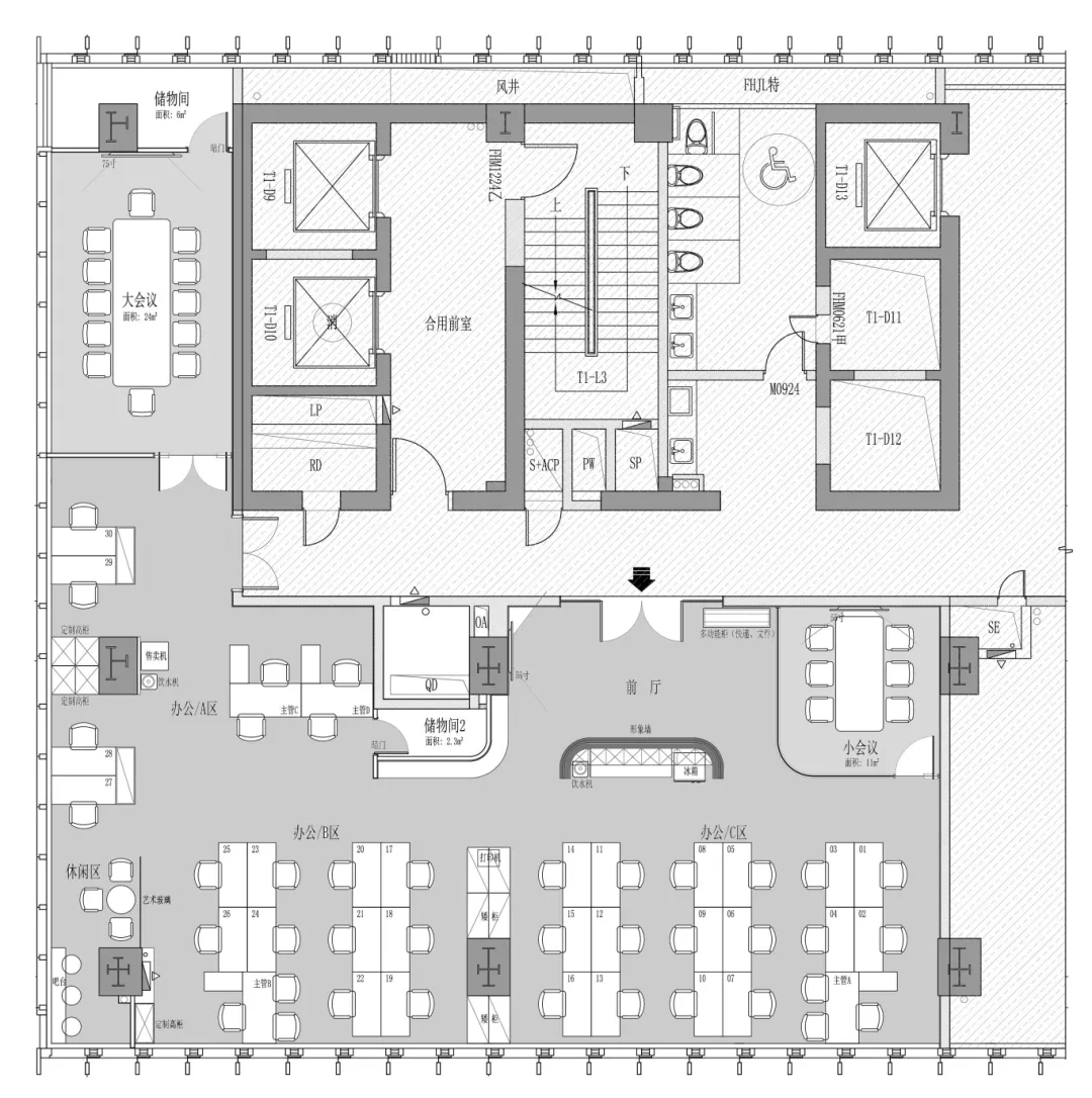
    休闲区若隐若现带有朦胧美感的磨砂玻璃门,不仅为空间增添了生动的色彩,更巧妙的将视觉焦点汇聚于此。这种创意与个性的设计,为空间注入了全新的体验。临窗而坐,窗外车流不息,城市风光尽收眼底。艺术灯具与休闲圆桌相映成趣,营造温馨氛围。绿植点缀,为空间增添一抹治愈感。
    会议室空间设计做出新的改变和突破,携程主色调被应用于会议室背景墙设计中,这样一面带有颜色的背景墙,严谨中带着点明媚与俏皮,完美地与办公主题设定相契合。吊顶则利用灯光带来增加层次感,显得既专业又有气势。        

  • Camille yu / 设计师

    2024年05月10日 06:21:06

    + 关注
    #办公智造#

    挑战传统律师事务所的办公布局,引入了现代、简约和开放的办公环境,充分利用并提升了独特的建筑结构和裸顶天花。
    我们的设计理念是将"热情款待"与"工作"相融合 — 这一理念不仅从酒店行业中获取美学创意,还从酒店行业提供的体验中汲取灵感。在美学方面,我们利用了建筑风格,打造了平静舒缓、简约的外观等元素,而在体验方面,我们的设计侧重于让人一进门就能感受到宏伟的到访体验,并提供多样化的空间选择。
    “酒店式办公”的主题在访客休息室体现得淋漓尽致,暖色调、天然材料和饰面的运用营造出温馨的体验。我们使用了某些特定的纹理和颜色,这些灵感来自于HFW所服务的各行各业,以独特的方式增强客户体验。前区通过一个类似休息区的Work Cafe散发出亲切的氛围,客户和员工可以在这里进行正式和非正式的讨论。与众不同的前台设计延伸至Work Cafe,同时兼顾吧台的功能,提高空间利用率。        

  • Camille yu / 设计师

    2024年05月10日 06:18:16

    + 关注
    #办公智造#

    由于 30% 的面积将“酒店式办公”的体验带入生活,该空间设计巧妙,为员工提供了多样选择,他们可以按照自己的意愿进行工作。War Room和电话亭用于支持头脑风暴会议和专注工作。此外,这些空间还配备了尖端技术,以适应当今技术驱动的现状,并支持多样化的工作环境选择。从正式会议、快速交流、团队协作到无缝虚拟互动,一应俱全。        

  • Hello廖芳 / 设计师

    2024年05月09日 21:05:45

    + 关注
    #办公智造#

    办公室最终以“天体”命名其会议室。会议室的名字有:银河、水星、金星、火星、木星、土星。“天体”以无垠的宇宙为背景,在漫长的时间轴上运行,象征着我们对无限可能性的探索,以及对长期主义的坚守。        

  • 刘静 / 设计师

    2024年05月09日 17:21:53

    + 关注
    #办公智造#

    办公空间设计(1)        

  • 刘静 / 设计师

    2024年05月09日 17:20:12

    + 关注
    #办公智造#

    办公空间设计(2)        

  • 尤曼吖 / 设计师

    2024年05月09日 17:15:11

    + 关注
    #办公智造#

    办公室实景图(1)        

  • 尤曼吖 / 设计师

    2024年05月09日 17:13:34

    + 关注
    #办公智造#

    办公室实景图(2)        

发布话题

公开