当前位置:首页 > 户型图分析

#办公智造#

阅读 997455 | 粉丝 997455

  • 瑾萱 / 设计师

    2024年05月07日 22:20:22

    + 关注
    #办公智造#

    工作室        

  • 阿峰 / 设计师

    2024年05月07日 22:19:35

    + 关注
    #办公智造#

    办公室实景图        

  • 大鹏 / 设计师

    2024年05月07日 17:00:09

    + 关注
    #办公智造#

    透过以人为本的思考,探索现代办公的生活方式,回归真实的需要,提升心理仪式性的转换,让办公不仅是满足基本的需求而是到达体验的感受,让我们所看到的不仅是设计而是对于生活的深刻体会。        

  • 杜飞 / 设计师

    2024年05月07日 16:49:59

    + 关注
    #办公智造#

    当我们跳脱出习以为常的审美习惯回溯过去,找寻文化的源头根脉总有源源不断的新灵感设计师融汇书法美学和空间语言开展一场关于传承与探索的思考
    二层为敞开休息区健康办公工位的植入也点明我们愉悦办公的设计理念天花的镜面板似空间更有延伸性        

  • 喀秋莎 / 设计师

    2024年05月07日 08:33:42

    + 关注
    #办公智造#

    直播公司办公室        

  • 张曲峰 / 设计师

    2024年05月07日 07:33:18

    + 关注
    #办公智造#

    7層辦公區域用大面積金屬網天花來營造空間的開放性與通透感,在前台重點區域用到一些折線的造型來呼應萬科「V」字形象,體現出萬科追求卓悅的企業文化。
    圓形大會議室為萬科雲城總部最大的一個會議室,對隔音、吸音的要求較高。因此設計師大面積採用吸音板局部做休息壁龕,並用萬科紅來呼應企業的文化特質。        

  • 毛均峰 / 设计师

    2024年05月07日 06:38:31

    + 关注
    #办公智造#

    文化基金中心,以文化产业投资为主的金融企业。设计上以鱼(余)为设计理念,前厅弧形形象墙以水作为设计线索,天花局部吊顶以标识阵列的形式排列,由主入口向接待台和形象墙聚集,意喻企业蓬勃发展和财富的聚集。        

  • 毛均峰 / 设计师

    2024年05月07日 06:37:14

    + 关注
    #办公智造#

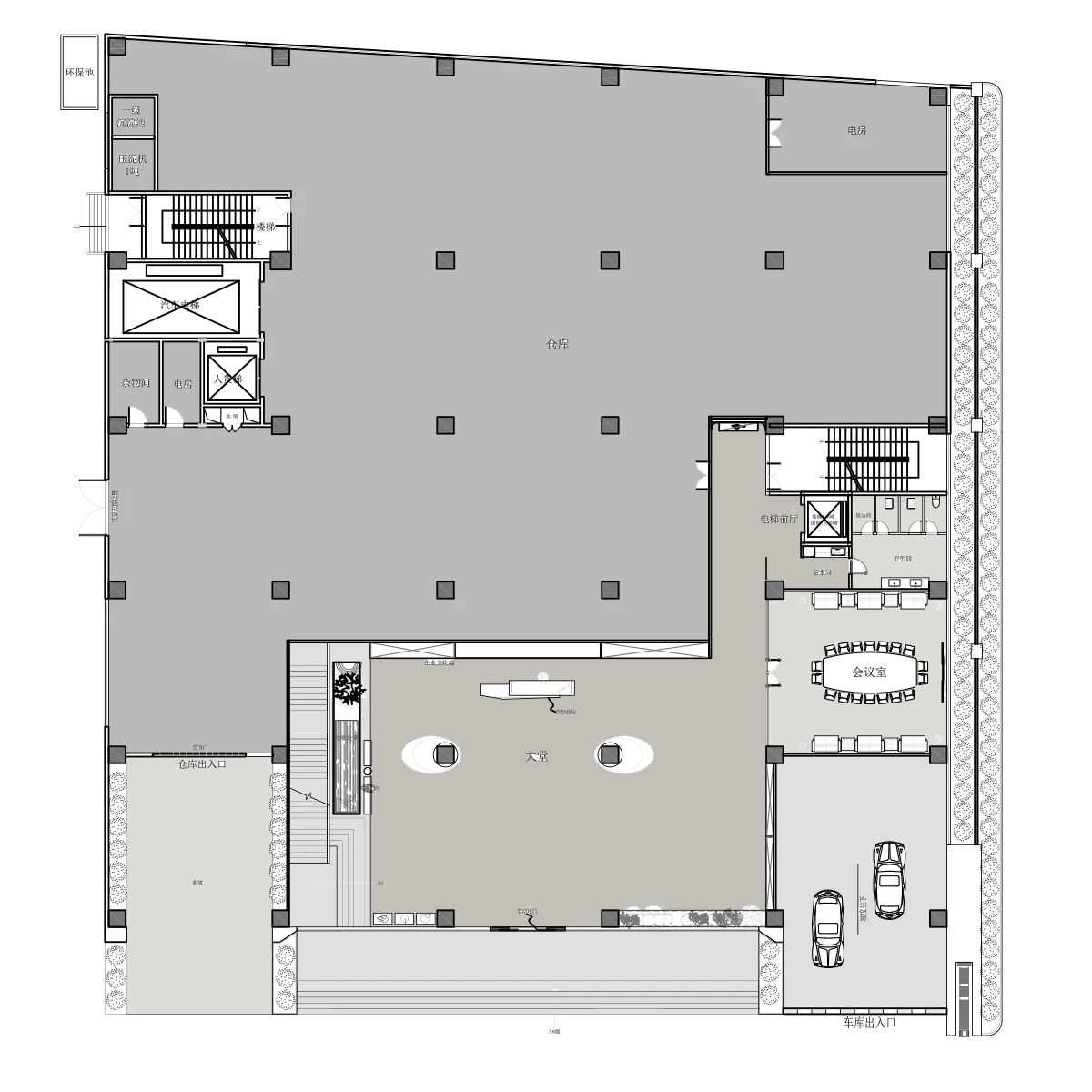
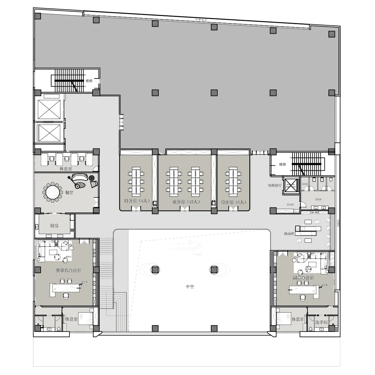
    平面布置图与天花布置图        

发布话题

公开