当前位置:首页 > 户型图分析

#办公智造#

阅读 997306 | 粉丝 997306

  • Tina.baby / 设计师

    2024年05月09日 07:32:52

    + 关注
    #办公智造#

    工作室空间赏析(1)        

  • Tina.baby / 设计师

    2024年05月09日 07:31:43

    + 关注
    #办公智造#

    工作室空间赏析(2)        

  • MING / 设计师

    2024年05月08日 22:52:27

    + 关注
    #办公智造#

    科技公司办公室设计        

  • 甲由 / 设计师

    2024年05月08日 22:50:35

    + 关注
    #办公智造#

    办公室实景图(1)        

  • 甲由 / 设计师

    2024年05月08日 22:48:34

    + 关注
    #办公智造#

    办公室实景图(2)        

  • 超哥 / 设计师

    2024年05月08日 22:19:59

    + 关注
    #办公智造#

    效果图与施工过程图        

  • 江北梅郎 / 设计师

    2024年05月08日 16:55:26

    + 关注
    #办公智造#

    该项目致力于创造一个融合工作与社交的空间。设计师在规划时,不仅考虑了空间的比例和视野,更注重通过独特的解构和重构方式,营造出一个既有家的温馨又不失工作氛围的独特空间。整个空间的光线充足,每个区域都享有自然采光,在视觉上营造出一种宽敞、明亮的感觉。会客空间视野开阔,能够满足不同客户的会客需求。设计师还考虑到了空间的多功能性,使其既可用于正式商务会晤,也可作为休闲交流的理想场所。从细节到整体,每一处设计都旨在为用户提供舒适、自然、充满活力的环境,让工作与生活在此和谐共存。
    在整体规划中,设计师以电影《盗梦空间》的灵感启示,采用独特的空间设计手法和多种材质,将私密与公共空间、不同氛围完美融合,展现出卓越的凝聚力和设计感。
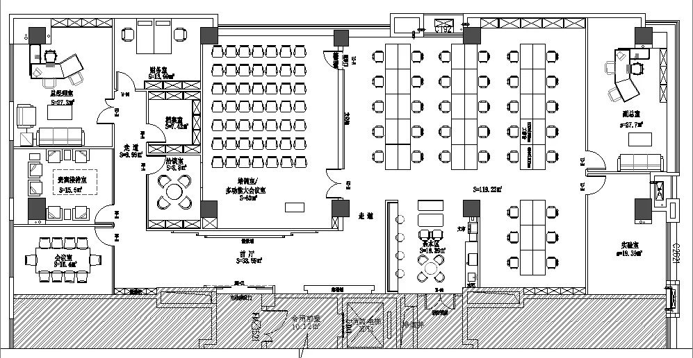
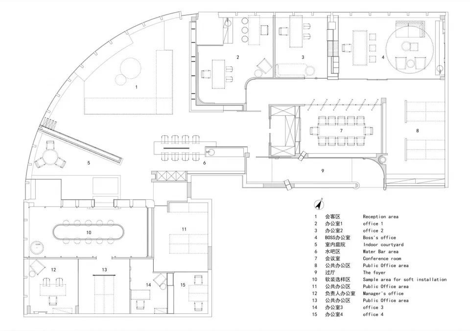
    根据功能需求,我们将空间划分为三大区域:会客区、软装设计办公室和硬装设计办公室。会客区作为核心区域,包括前厅、休闲水吧区、沙发会客区以及室内造景区。为降低办公空间的严肃性,入口处未设置常规接待前台,通过巧妙的空间设计,营造进入不同空间的神秘感,激发探索和好奇心。
    设计师在空间的中心区域打造了一个下沉式会客区,与门口抬高处完美衔接。顶部镜面设计在视觉上实现纵向延伸,为减轻眩晕感,下沉式沙发区域采用圆形顶面造型,营造安全舒适的氛围。
    收纳吊柜作为空间区分的一环,位于下沉式区域旁。室内造景则营造出室内花园的氛围,将自然景色引入室内。长方形灯罩的吊顶设计,结合灯膜照明技术,呈现自然天光的光线效果。靠近窗户处设置的休闲桌椅,成为一处放松区域,让人在品茗观景中享受自然风光。
    软装办公区作为整个空间的重要组成部分,包括软装选样区、办公室等区域。在材质和造型上注重细节处理,通过墙面镜面材质实现空间过渡。软装选样区采用层层圆弧造型,结合线性光源和镜面衬托,强化空间的视觉延伸感。        

  • 江北梅郎 / 设计师

    2024年05月08日 16:52:56

    + 关注
    #办公智造#

    会客区的右侧为硬装设计区。采用暗装电动移门作为两个区域的分割线,确保硬装办公区的独立性。通过合理的区域划分,实现空间使用的独立性,确保沟通洽谈的高效进行。        

发布话题

公开