当前位置:首页 > 户型图分析

#办公智造#

阅读 997452 | 粉丝 997452

  • 木子李 / 设计师

    2024年05月08日 07:40:44

    + 关注
    #办公智造#

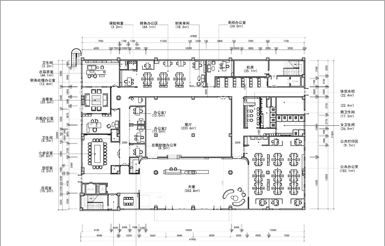
    设计的核心理念是功能盒体即每个功能区都像是一个独立的盒体或由多个功能共同构成的复合盒体它们之间既有明确的界限又通过精心设计的过渡空间相互连接形成了一个和谐统一的整体

  • 木子李 / 设计师

    2024年05月08日 07:39:14

    + 关注
    #办公智造#

    从电梯入口开始设计师巧妙地设置了一个过渡空间这个空间不仅是实际意义上的通道更是情感上的桥梁
    它象征着一种“先抑后扬”的设计理念,让每个人在进入工作状态之前,都有一个缓冲的过程。过渡空间的设计既开阔又充满变化,让人在移动中感受到空间的韵律。
    这些端景如同点缀在空间中的艺术品无论是一幅壁画、一个雕塑还是一处特色植物区每个端景都是为了让人们在日常工作流中随时能获得视觉上的愉悦和心灵上的慰藉处处有景意味着每个角落都有让人驻足欣赏的理由        

  • 木子李 / 设计师

    2024年05月08日 07:36:27

    + 关注
    #办公智造#

    进入办公楼的主体之前,设计师特意设置了一个退让的玄关处这里摆放着干景。不仅增添了空间的美感,亦在无形中缓解了人们的心理压力。
    办公区域:由一系列工作空间组成,包括开放式办公区、独立办公室和团队协作室。设计上追求高效与私密性的平衡。        

  • 夏毅 / 设计师

    2024年05月08日 06:46:49

    + 关注
    #办公智造#

    毕业照(1)        

  • 夏毅 / 设计师

    2024年05月08日 06:45:13

    + 关注
    #办公智造#

    毕业照(2)        

  • 刘君雅 / 设计师

    2024年05月08日 06:35:52

    + 关注
    #办公智造#

    空间仍是南北双面大落地采光的朝向优势较上一次的需求  本次增加了:
    A超大型仓库空间B独立的产品拍摄区C橱窗展示D会议室更是兼顾了产品展示厅功能E员工工位达20人F总经办G围绕中央区域的蓝盒子茶歇室(包含文印台、茶水台的集合功能)
    以蓝盒子为核心固行走动线间 移步寸光 目目见蓝为长期伏案办公的你缓解眼劳
    虽然本次作品没有太多的夸张造型 为设计而设计反而在横平竖直中 做好扎实的基本功
    唯一不甘愿平凡的蓝盒子是留于日常里的 内心保有的光亮也将个性埋藏进无声的关怀里        

  • 刘君雅 / 设计师

    2024年05月08日 06:33:59

    + 关注
    #办公智造#

    蓝盒子是空间里的精神领域它服务于你的重要客户接洽 服务于你的私密悄悄话服务于你工作之余的闲暇空歇
    又或只是空闲着什么也不做提醒日常忙碌中的人们时常独处  偶尔安静  放空蓄能  韬光养晦为下一个目标创造持久效率的动能        

  • Cassie Ren / 设计师

    2024年05月07日 22:39:29

    + 关注
    #办公智造#

    打破原有办公室给人的刻板印象设计师打造的一个“休闲式”工作空间它所承载的内容就有了更多的意义当空间不仅仅是空间本身
    透过吧台的空隙透进水吧区的仿真绿化墙体,与动车车窗外的果园景色起到一个呼应,布置考究的灯光和精心的细节处理来强化空间表达。隐约可见的现代动车与水磨石吧台玻璃砖的碰撞,打造连贯的设计语言。        

发布话题

公开