当前位置:首页 > 户型图分析

#办公智造#

阅读 999630 | 粉丝 999630

  • Joan 王怡琼 / 设计师

    2024年04月05日 23:50:58

    + 关注
    #办公智造#

    弘文设计办公室        

  • 曹杨Young / 设计师

    2024年04月05日 22:42:11

    + 关注
    #办公智造#

    本项目以“现代东方禅意”为设计理念,打破传统的办公空间,运用设计美学贯穿到办公空间,让员工感到宁静和安逸的办公空间。
    前厅空间以暖色调为基调,墙身原木色与禅意装饰画的结合,线条贯穿于整个室内空间,利用线条的交错穿插建立出富有韵律感和动感的活跃空间,具有浓厚的设计感,营造出安静、优雅的空间。
    以创意、舒适作为办公区设计切入点,让员工在工作时更加轻松,更富有激情,甚至能够激发思维,进而更高效的完成工作。
    空间运用现代东方禅意美学的形式,抛弃一切矫饰,将尊贵、私密、自然、精神滋养等理念贯穿所有空间,呈现出纯净高贵的意象之美。        

  • 王丹丹 / 设计师

    2024年04月05日 17:30:38

    + 关注
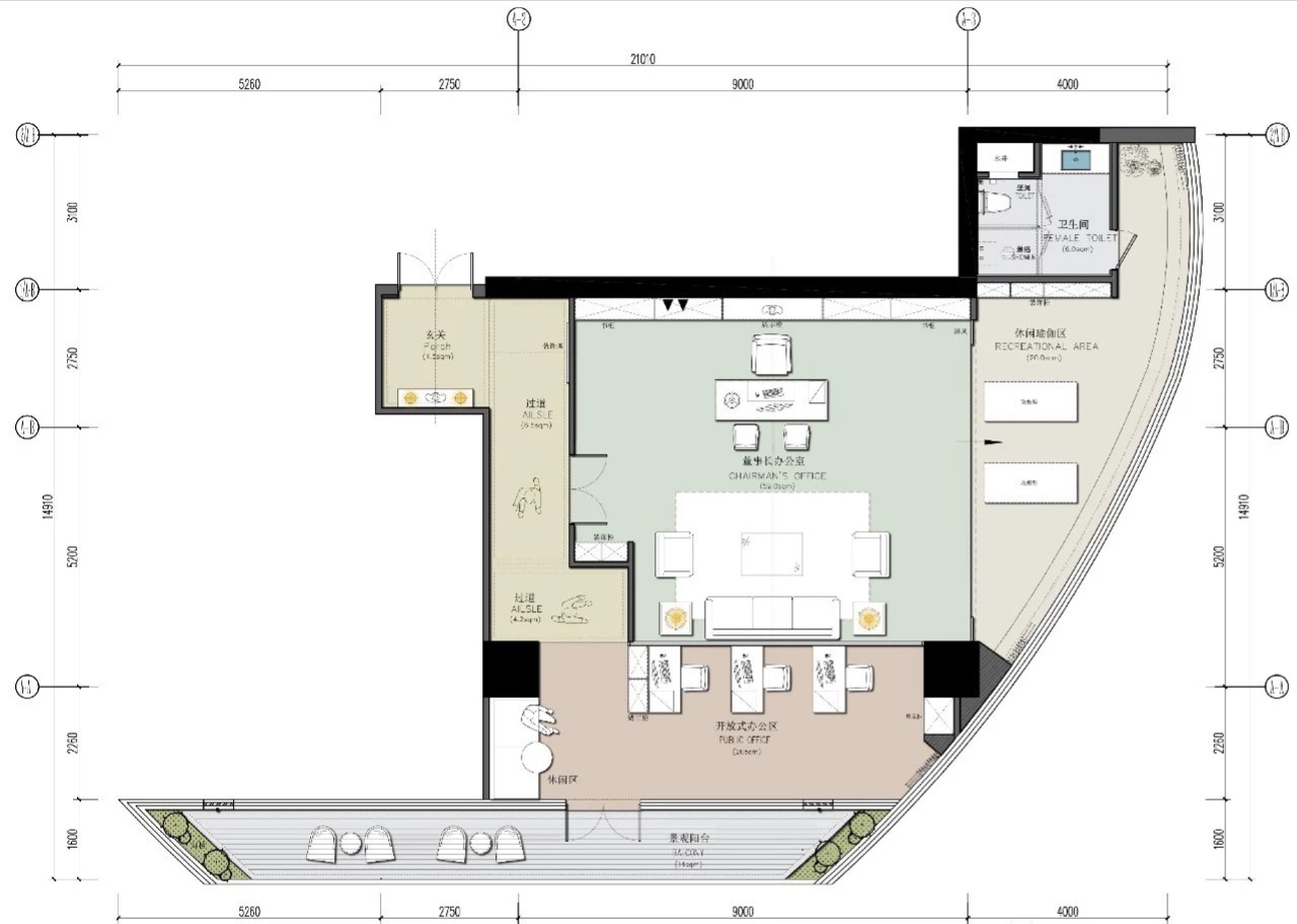
    #办公智造#

    大厅效果图及楼层方案        

  • MING / 设计师

    2024年04月05日 17:13:19

    + 关注
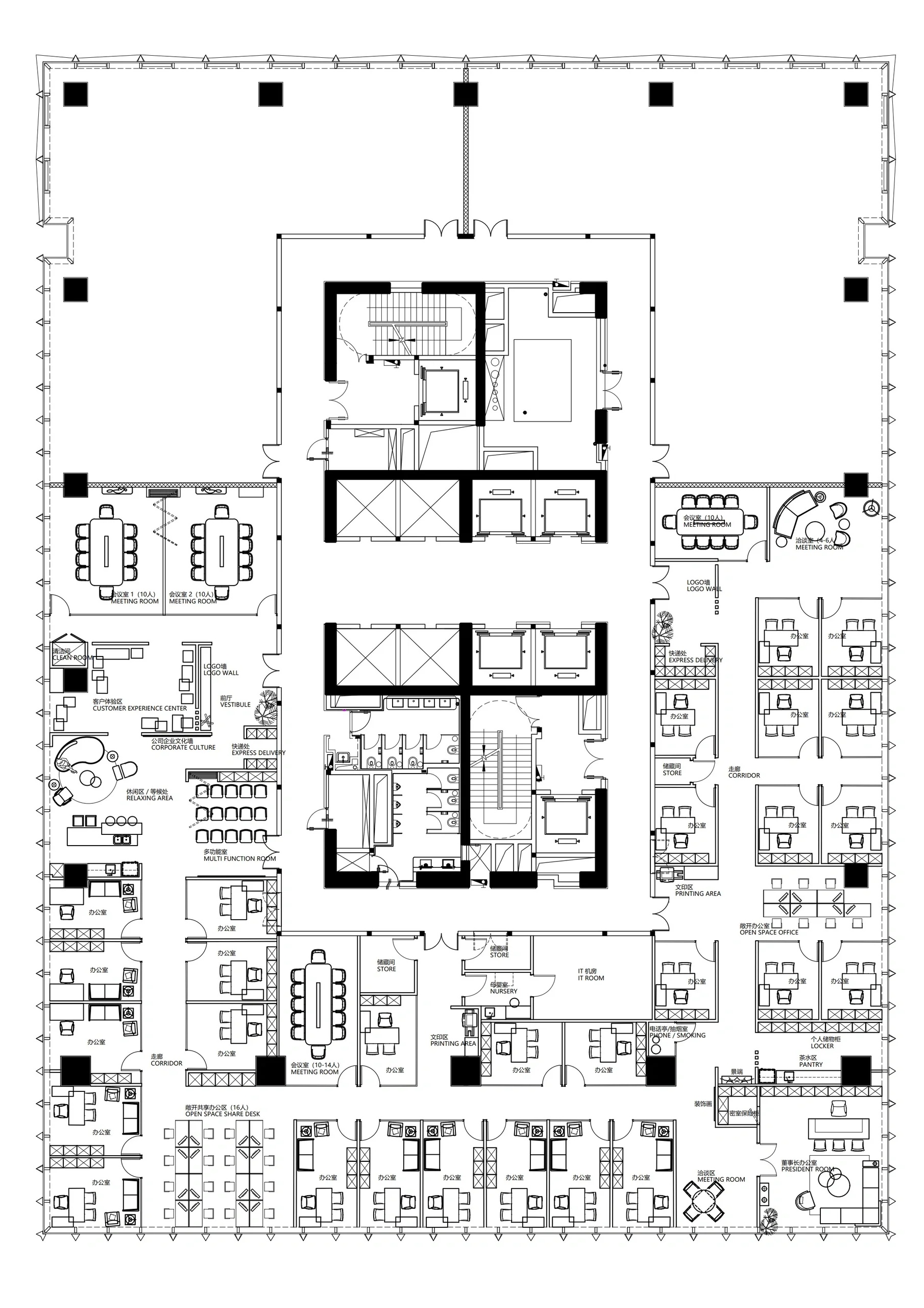
    #办公智造#

    平面布局方案        

  • 瑾萱 / 设计师

    2024年04月05日 16:01:24

    + 关注
    #办公智造#

    全球工业自动化解决方案领导者Belden,与设计团队紧密合作,在全球范围内建立了一系列重要的Customer
    Innovation Centers(CIC,客户创新中心),其中第一家已在德国的斯图加特开业。Belden拥有全面的产品和解决方案组合,并在通过体验式营销传播产品广度方面取得了巨大成功。通过创新打破障碍是Belden的企业精神,在2Heads的帮助下,最近完成的芝加哥CIC采用智能设计、内容和尖端技术来展示这种精神。        

  • 瑾萱 / 设计师

    2024年04月05日 16:00:10

    + 关注
    #办公智造#

    Belden邀请2Heads帮助打造一个体验式空间,去展示他们的创新解决方案;同时鼓励协作与讨论,并在演播室般的环境中举办演示和讲座。作为一个与品牌风格产生共鸣的美丽空间,CIC客户创新中心需要成为国际流媒体活动的背景;与品牌新方向相呼应的展品,并邀请全世界共同见证Belden的先进科技。芝加哥CIC客户创新中心是一个屡获殊荣的符合人体工程学的环境,这里既可以是私密的,也可以是开放的,随时邀请访客进行观摩探索。CIC的每个功能区域都采用不同的方法来说明Belden网络的好处;他们为什么是当今传输应用程序所需的越来越多的数据、音频和视频的专家。2Heads创造了影片和数字序列,让访客在视觉上沉浸在各种可能性的解决方案中。验证实验室展示了专业技术知识,沉浸式Belden立方体展示了Belden解决方案之旅和数字化转型。从技术咨询、项目管理到教育和活动,Belden现在拥有了一个展现其尖端解决方案的沉浸式体验空间。        

  • 张小葵 / 设计师

    2024年04月05日 14:49:33

    + 关注
    #办公智造#

    走进被镀锌板包裹天地的入口,映入眼帘的右手边为开放式办公区,左手侧为模型室,两大区域之间由一条阶梯式的展示区、前台公区及公共走廊相连结。
    CLOU品牌的图形LOGO以各种不同材料、不同大小的形式呈现在三个区域的墙面上,黑色及银色的品牌LOGO昭示着事务所大胆的创意形象。
    简洁流畅的几何线条勾勒划分出工作、交流、研究、展示等不同区域,标志性的银色镀锌墙环绕连结整个空间,延续、贯穿了自CLOU成立以来至今的一大室内经典特征。镀锌是一种比不锈钢经济而有效的防锈方法。不锈钢是加入微量元素后的合金板,防腐耐酸,而镀锌板是普板,在高温下200-300度下锌才会被慢慢烘烤化掉。镀锌板是表面镀有一层锌的焊接钢板,常应用于建筑、家电、车船、容器制造行业。镀锌钢进入大规模生产和应用于工业商业中已有200多年的历史了。        

  • 张小葵 / 设计师

    2024年04月05日 14:45:01

    + 关注
    #办公智造#

    CLOU北京的每间会议空间都独具特点——各类不同的会议室穿插在明亮的开放式办公区之间,便于随时开启线上及线下会议讨论。最大的一间以超白玻璃围绕着明亮的蓝色水磨石地板,搭配温暖的橙红色幕布用于营造更加私密的探讨氛围;另外一间则以斑点绿水磨石铺地配备木制家具;东南角的一间则以全木装饰天地,宛如洞穴一般,适用于更加安静的工作和对话。
    水磨石是一种重复利用石材边角料的好材料,是可持续性建筑材料的好选择,其经济实用,可以手工浇注或预制。过往以水泥作为粘合剂的水磨石色彩单调、粗糙、易开裂、视觉美感欠佳,可选多样性较少。如今,采用环氧树脂代替水泥制作的水磨石很细腻、平滑、光亮,在颜色、形状、星星点点的装饰上有了百花齐发的选择,拥有不规则又粗犷的美感。因此,CLOU在不同的办公室分区内选择了黑、白、蓝、绿等斑点、色泽形态不同的水磨石。
    办公室的西南侧为一间功能齐全的模型室:在模型制作、设计测试和材料研究的区域中,木质包覆的环境将工作台、 3D 打印机、激光切割机等与材料储藏室和档案室融合在一起。拆卸、搬运相对灵活的家具可以将模型区域快速转换成影棚或分享演示的小型礼堂。        

发布话题

公开