当前位置:首页 > 户型图分析

#办公智造#

阅读 999788 | 粉丝 999788

  • 敏颜 / 设计师

    2024年04月04日 22:53:51

    + 关注
    #办公智造#

    我们立项初期,就对于世酒名汇的办公空间有着全面的构想,期待打造一个彰显公司品质、突出文化特点和展示品牌精神的复合型办公文化场所。        

  • 敏颜 / 设计师

    2024年04月04日 22:51:26

    + 关注
    #办公智造#

    功能为先,高效至上,为办公空间定立了设计的基调。在尺度上,克制的秩序,昭示理性的精确。        

  • 魏馨琪 / 设计师

    2024年04月04日 22:47:16

    + 关注
    #办公智造#

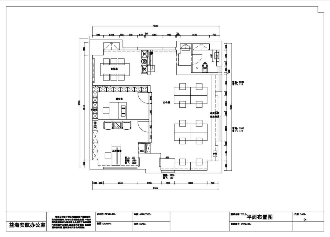
    考虑到会客洽谈的需要,和平时工作期间的些许小憩,茶歇区被设计成了一个多功能休闲空间,既可以是与客户沟通洽谈的空间,也可以是工作闲时的一杯咖啡和浓茶的地方。        

  • 魏馨琪 / 设计师

    2024年04月04日 22:44:54

    + 关注
    #办公智造#

    空间的呼吸感渐渐接近于理想舒适的办公状态,恬然共生。        

  • 杨梅酱 / 设计师

    2024年04月04日 22:41:17

    + 关注
    #办公智造#

    公司入口的接待区以围合式块面结构,使访客可以第一时间感受到公司的氛围与气质。
    在空间的开与合之间,打破内外之间的界限,注入新的呼吸,呈现优雅的空间氛围,以有限的空间,探寻无限的发展力。
    以中性色调为主,保有空间的温和与优雅,予人沉稳的印象。        

  • 杨梅酱 / 设计师

    2024年04月04日 22:38:59

    + 关注
    #办公智造#

    实用、舒展是设计师思考办公空间的出发点。让使用者在浮躁里拥有一种精神上的剥离感,置身于平和的空间去应对复杂的工作。        

  • Tina.baby / 设计师

    2024年04月04日 22:19:56

    + 关注
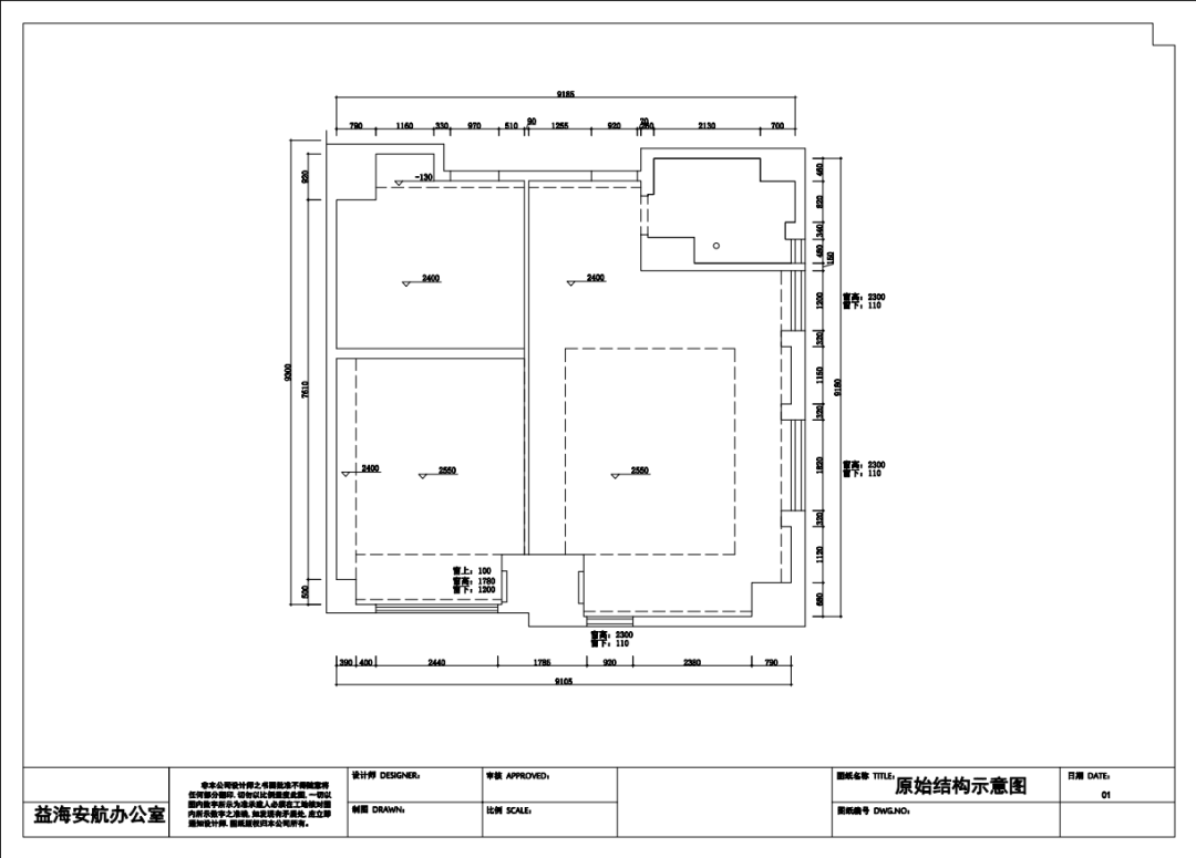
    #办公智造#

    原来的财务室为全暗户型,我们将南面墙体改为全透明玻璃隔断,西面和北面墙体设计半墙资料柜,即满足了财务凭证的收纳,也保证了会议室的采光。

  • Tina.baby / 设计师

    2024年04月04日 22:18:32

    + 关注
    #办公智造#

    利用调整经理室和财务室后的空间,我们设计了一个小型会议室。会议室南面采用半墙玻璃隔断加镂空墙体设计,将南侧的自然光引进室内。我们将背景墙用弧面造型一直延伸到顶面。让空间有纵向的延伸感。原来堆放在玄关的饮水机,微波炉和电冰箱被收纳入会议室侧柜,除了开会之外,这里平时也可以作为员工的活动室。
       原来的卫生间里宽大的洗手台和马桶在一起,利用率非常低。现在将卫生间改为干湿分离,即方便了员工的使用,也满足了疫情期间消杀防疫的需求。     公司倡导健身文化,大部分员工都会在办公室放置健身用品,原来都堆放在开放式工位区域,显得非常杂乱。现在利用独立卫生间的内部空间定制了储藏柜,专门用来存放员工的健身用品。空间利用率大大提高,整体空间也更加整洁。        

发布话题

公开