当前位置:首页 > 户型图分析

#办公智造#

阅读 994716 | 粉丝 994716

  • 小麦庆 / 设计师

    2024年05月28日 21:51:48

    + 关注
    #办公智造#

    我们希望模糊空间的界线,单一形式是否可以变得多元,传统的形象墙是否可以兼顾展示+打卡,通过造型与材质的搭配让入口形象既有档次感又具有拍照打卡的互动感。弧形是了聚财的象征,红色台阶与半弧造成呈梯级状,寄予公司积极美好,步步高升的寓意,明亮的灯光、入口干净、明亮,访客感受到亲切、时尚、明亮的公司氛围,红色的大理石长凳成为展示与拍照打卡的道具。
    细腻的微水泥,温润的大理石,自然质感的洞石,不同材质的组合,巧妙的光影,形成视觉张力与质感碰撞。
    办公区域的灯光可以多维控制,满足白天与夜晚工作的不同需求,吧台上面的马扎灯可在需要时点亮,营造活动氛围。
    公区地毯满铺,特别选用区别于传统商务型格子地毯,采用满铺地毯,暖色调,空间呈现时尚与整体感。
    会议室选用亚克力椅子与大理石颜色保持相近气质。
    简洁、明快、活泼的会议室,鼓励大家可以积极、 勇敢参与头脑风暴。        

  • 小麦庆 / 设计师

    2024年05月28日 21:49:13

    + 关注
    #办公智造#

    红色大理石像一条纽带连接着整个空间,从入口形象墙到水吧台,从水吧延伸至走廊....到直播间、到展厅内....
    直播间的灯光考虑到多种场景的使用,搭配了多种灯具类型,满足不同场景间的切换。
    去繁从简,摒弃复杂且无意义的装饰,设计用最简洁的设计语言来诠释经典、永恒之美。        

  • 超哥 / 设计师

    2024年05月28日 21:40:59

    + 关注
    #办公智造#

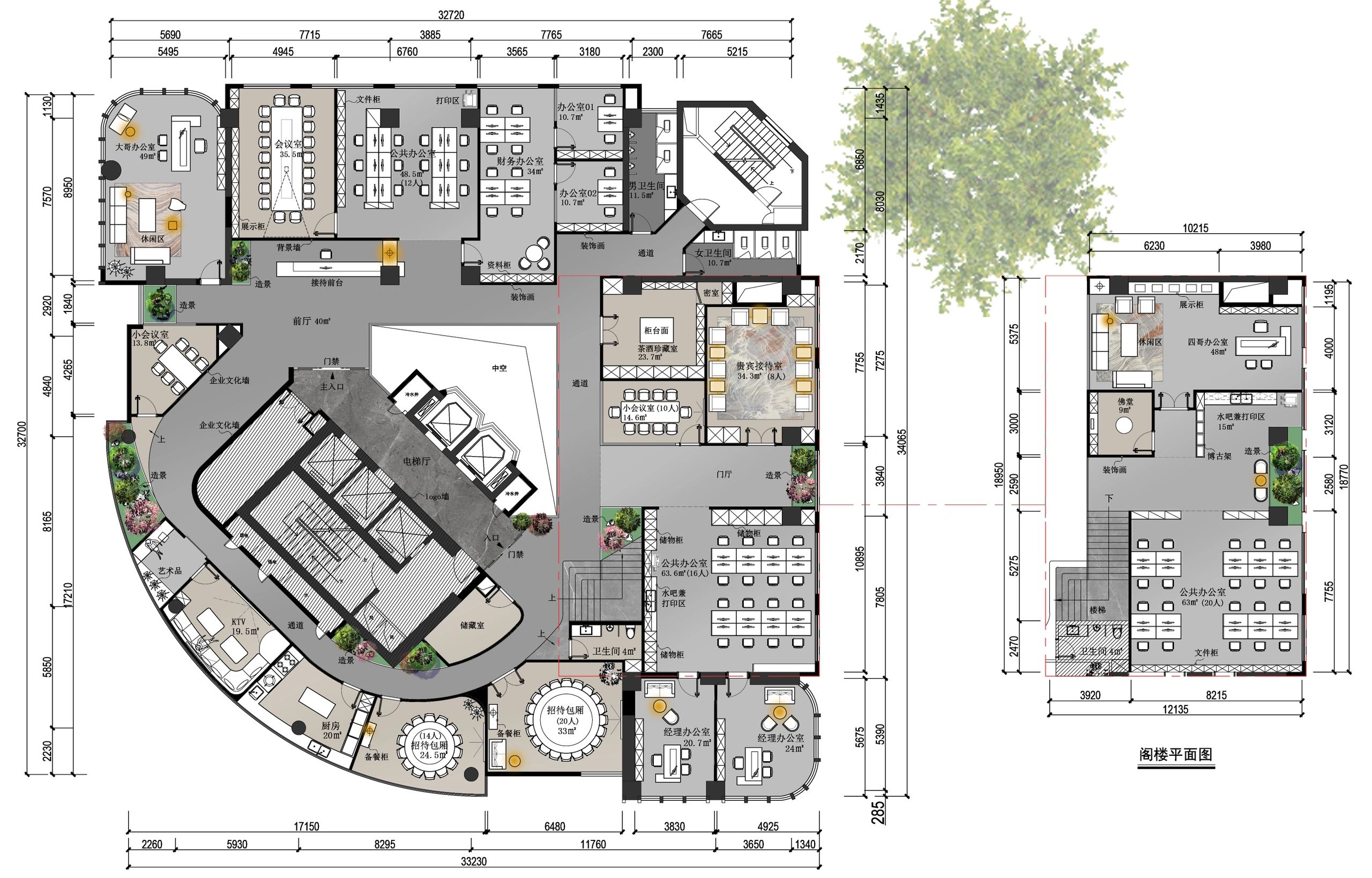
    平面方案及效果表现        

  • 刘君雅 / 设计师

    2024年05月28日 08:21:00

    + 关注
    #办公智造#

    遵从干净简单、功能性的准则,屋顶与墙面几何线条关系的简化,去除繁杂,营造“减”与“简”的特质。在这次的办公空间设计中设计师利用大色块制造简单的高级,让人感受到在室内之间自由生长,协调共处。看似简洁的空间,实则在每扇柜门中都隐藏着非常充足的储物空间,考虑人体功能学,设计师将每扇柜门以及抽屉的打开方式都做到最人性化。
    合适的比例控制,既勾勒了空间的美感,又呈现了视觉之后的下一个感知。工作忙余之时来到此处,会议区就变成了餐饮的地方。
    眼观没有复杂的结构背后满是细节的设计,体现了设计者全案思维的高度。量身定制的艺术油画加以绿植点缀,使空间灵动有层次,色彩的撞击打破了原有的安静,合理的空间逻辑,充分展现设计者对空间关系特有的认知。        

  • 刘君雅 / 设计师

    2024年05月28日 08:19:17

    + 关注
    #办公智造#

    会客区是一个相对私密的空间,整体采用暖灰色调,电视与会客桌的位置关系十分舒适,没有主灯的设计,而是通过屋顶射灯来达到合适的效果。单椅依然保持干净的准则。窗口处的空间也体现了功能所在,建立一个小的吧台区域,台面下可以储藏物品,坐在此处望向窗外也可进行一番思考。        

  • 张曲峰 / 设计师

    2024年05月28日 07:21:47

    + 关注
    #办公智造#

    高宸实业办公空间        

  • Design 陈 / 设计师

    2024年05月28日 07:20:28

    + 关注
    #办公智造#

    太平洋保险办公空间        

  • 木子李 / 设计师

    2024年05月28日 06:38:22

    + 关注
    #办公智造#

    本次⼤厅设计根据现代新中式茶楼社会需求,并结合现代年轻化元素与 中式稳重的考虑使⽤了简单明了不失韵味的线条元素。如卡座⻔、隔断、 屏⻛以及吧台背景墙既体现了新中式的感觉,特点加⼊了樟⽊纸隔断的 透镜元素。柱⼦和吧台的部分背景墙采⽤PU⽯⽪为重元素使空间变得沉 稳。包裹⼊⻔处与⼊⻔处正对得景观打造实现在⽅正空间⾥的⼀步⼀景。

发布话题

公开