当前位置:首页 > 户型图分析

#办公智造#

阅读 994712 | 粉丝 994712

  • 木子李 / 设计师

    2024年05月28日 06:36:30

    + 关注
    #办公智造#

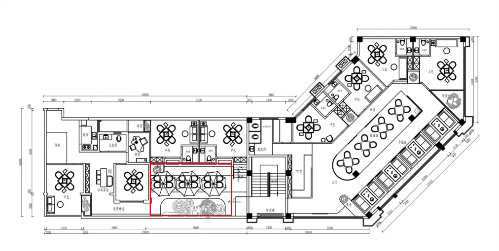
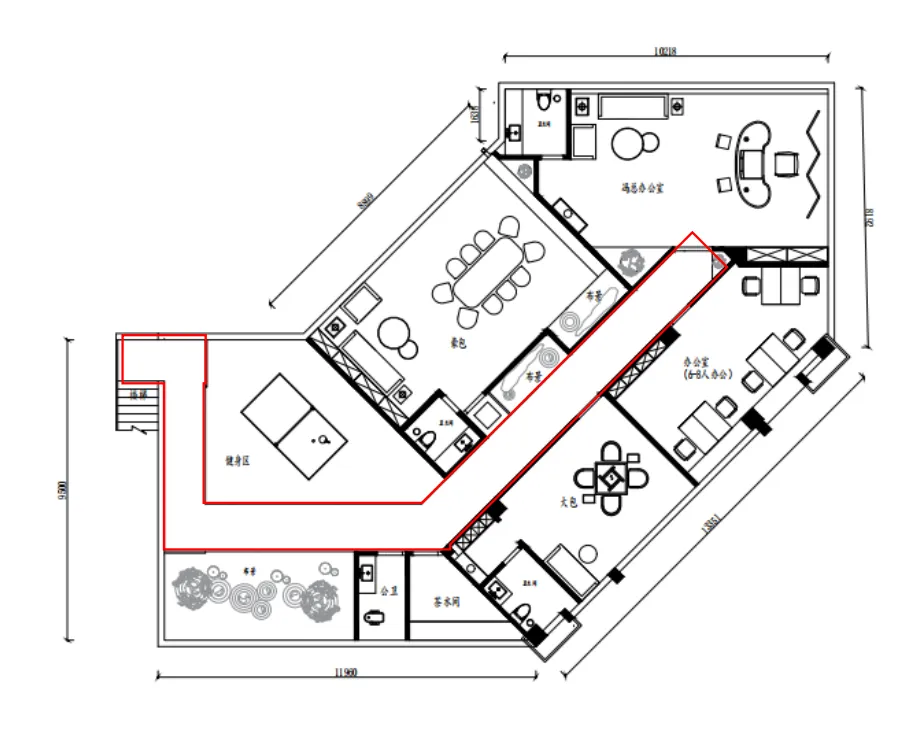
    花园露台区域:
    花园露台也是给⼈轻容有中式⽓质的搭配。 中间的⽊地板材质的变换让地边不再僵硬,以红枫等植物结合灯光打造舒适环境。
    走廊区域:
    ⾛廊地⾯采⽤汀步和两处的景观 为给⼈⼀种在室内⾮室内的感觉 实现在狭⻓空间的⼀步⼀景。        

  • 木子李 / 设计师

    2024年05月28日 06:32:50

    + 关注
    #办公智造#

    办公室区域:
    办公室特点稳重,在⼈⽂环境的影响办公需求。 沉稳及线条元素的对称平衡来制作舒适办公环境。
    茶室区域:
    茶室结合现代茶室感观设计。需具备较⾼的观赏性和趣味性。 所有采⽤了多种设计⼿法,如透境新中式的强调⾊软装搭配的多变和植物的运⽤。        

  • 丽旻 / 设计师

    2024年05月27日 18:19:11

    + 关注
    #办公智造#

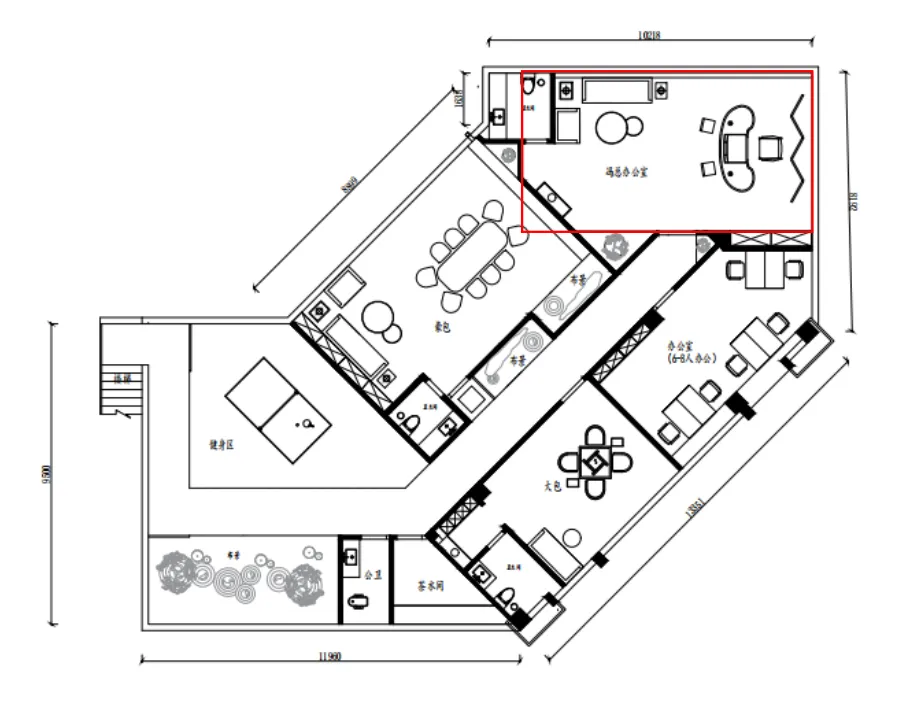
    易筑办公 × Premium Speculative Suites | 简约与精致的集合        

  • 丽旻 / 设计师

    2024年05月27日 18:17:11

    + 关注
    #办公智造#

    优质的装饰和家具、精雕细琢的设计与大楼广受赞誉的质量及便利性相得益彰。        

  • RIDICULOUSNESS / 设计师

    2024年05月27日 07:37:21

    + 关注
    #办公智造#

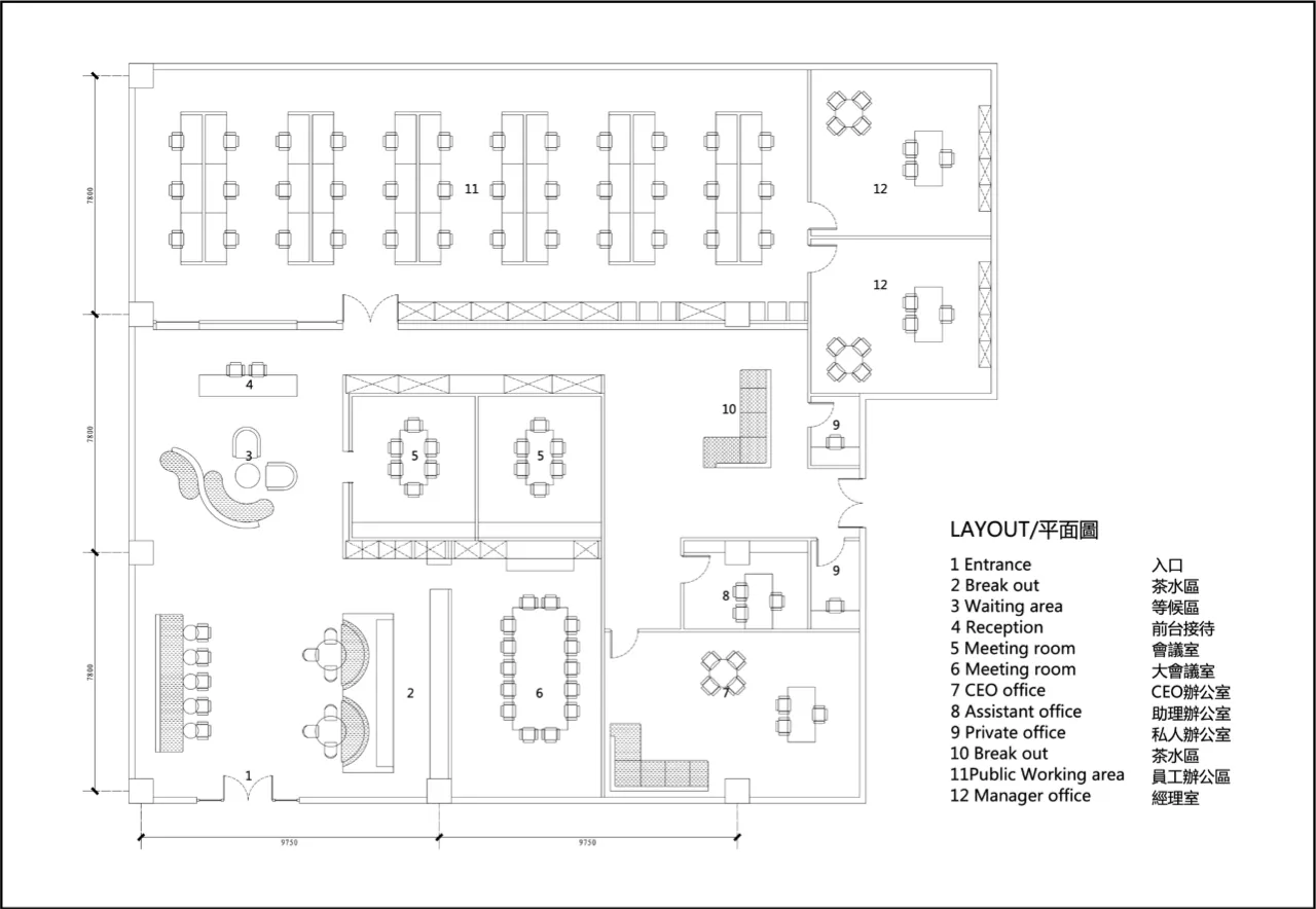
    前台接待與茶水休閒區結合在一起,為員工和訪客創造了一個輕鬆但充滿品質感的空間。接待區相鄰的主通道將辦公空間氛圍東西2部分:東翼為CEO辦公室/會議室,西翼為員工公共辦公區域和經理辦公室。‍在員工公共辦公區設置若干組小組會議區域,便於工作溝通,並調節了辦公區的的氛圍。
    大理石制前台和木製牆面極大提升了空間的品質感,富有創意的掛畫飾品以及出色的軟體家具配色,讓嚴肅的辦公空間富有獨特氣質和藝術感染力。
    濃郁的英倫風格的廚房和茶水區。‍‍‍‍
    ......        

  • RIDICULOUSNESS / 设计师

    2024年05月27日 07:35:16

    + 关注
    #办公智造#

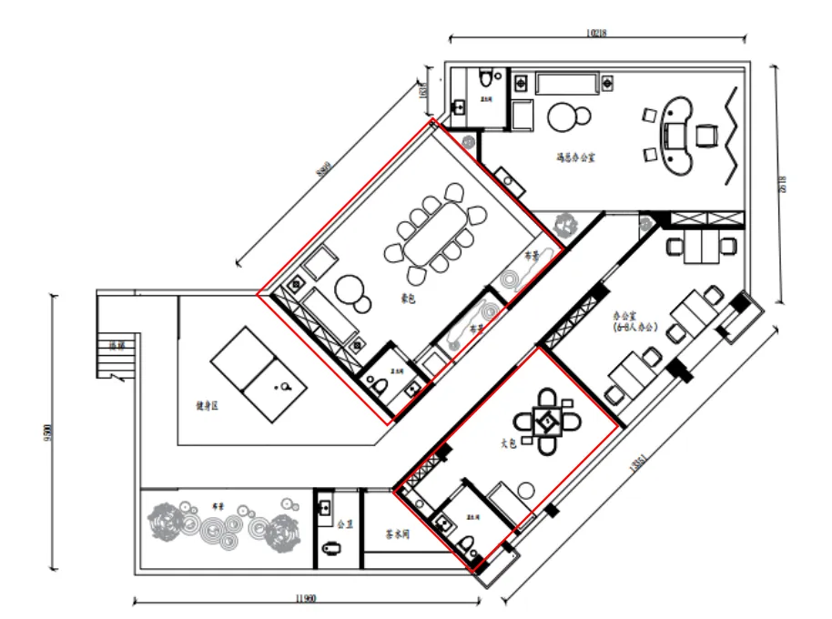
    本設計案在佈局和基調上具有包容性,注重高品質工藝、旨在打造符合客戶預期的帶有奢華氣質的公司總部,從而體現其價值觀。本設計案同時也體現了ANH設計師對於生活、工作理念的理解以及改造環境的能力。        

  • 宁檬 / 设计师

    2024年05月27日 06:54:29

    + 关注
    #办公智造#

    效果图(1)        

  • 宁檬 / 设计师

    2024年05月27日 06:52:53

    + 关注
    #办公智造#

    效果图(2)        

发布话题

公开