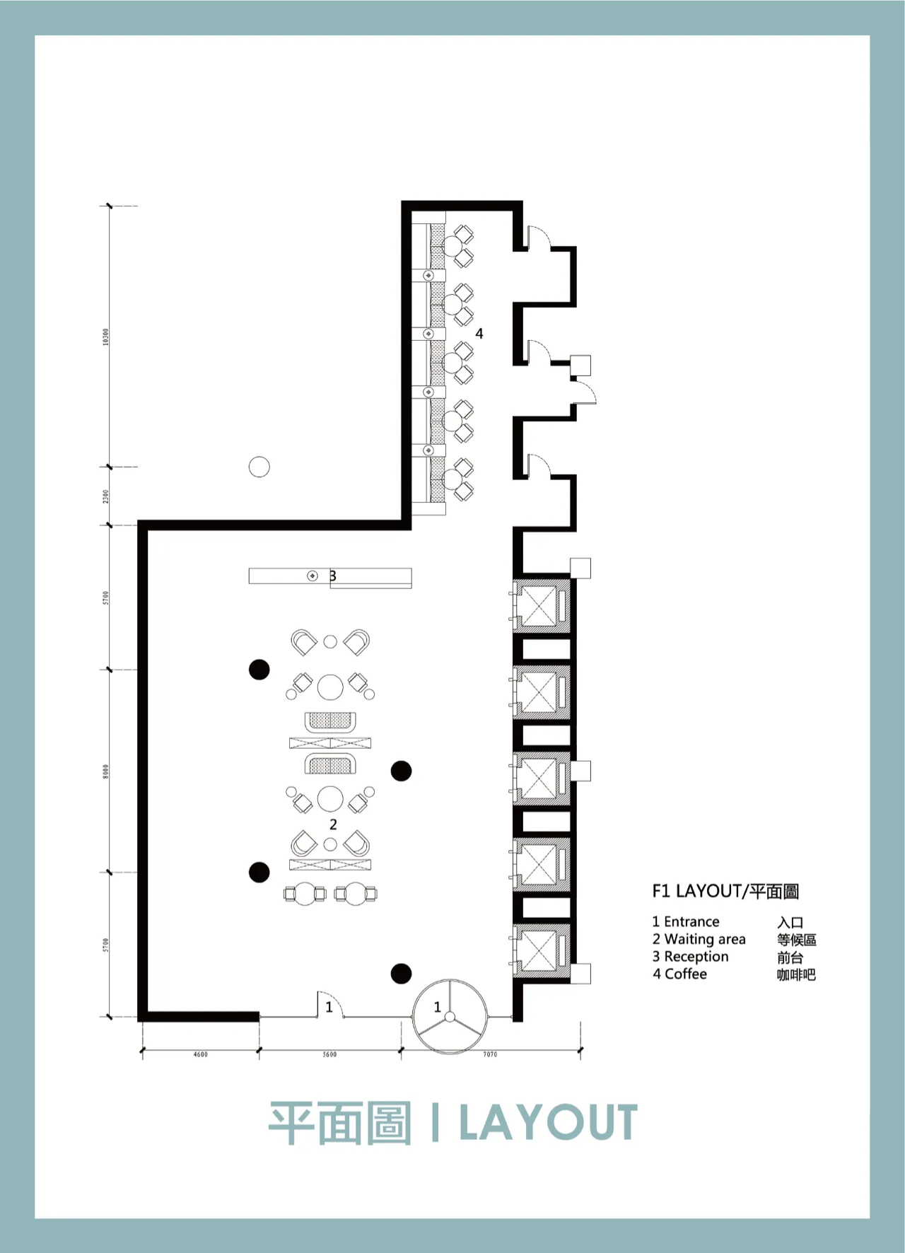
当前位置:首页 > 户型图分析

#办公智造#

阅读 994799 | 粉丝 994799

  • David / 设计师

    2024年05月26日 12:06:44

    + 关注
    #办公智造#

    在材质的选择中设计师在入口大堂的装饰隔断部分大量运用了镂空金属造型,营造空间的通透感象征着生长意境的金色造型优雅的拉开了光之序幕        

  • David / 设计师

    2024年05月26日 12:04:31

    + 关注
    #办公智造#

    理想的办公空间是唤醒灵感的地方舒适、怡心有工作的艺术亦有生活品质设计师不再打造传统的办公室而是一个工作、交流、休憩的艺术与精神场所打破原始空间秩序多元材质,光影交错间朦胧又神秘伴着想象与感悟开启视觉上的空间“魔方”        

  • 小海 / 设计师

    2024年05月26日 11:30:42

    + 关注
    #办公智造#

    现代风格是目前比较流行的一种风格,追求时尚与潮流,非常注重居室空间的布局与使用功能的完美结合。
    简约的大理石和木纹搭配样式值得借鉴,设计手法干净利落,营造出的空间感很强。        

  • 小海 / 设计师

    2024年05月26日 11:29:27

    + 关注
    #办公智造#

    墙面用几块原木搭建了一个壁厨景致,墙上一个层架,一些饰品让整面墙更为生动。颜色对比鲜明的座椅废弃多余的附加装饰,点到为止。简约,不仅仅是一种生活方式,更是一种生活哲学。
    办公区域的几盆绿植,缓解工作之余的视觉疲劳,净化室内空气。
    疏落的深色不锈钢通组成的隔断与天花格栅相呼应,使整体空间高度上升了,加上整体明亮的空间,仿佛看到了那种追求自然,与自然并存的国际范,间接的提升了空间的档次。        

  • 张小葵 / 设计师

    2024年05月26日 11:25:30

    + 关注
    #办公智造#

    CHOOFEEL全丰办公室        

  • RIDICULOUSNESS / 设计师

    2024年05月26日 07:47:15

    + 关注
    #办公智造#

    設計主題
    设计方案将材质、光线和艺术作为主题元素,大堂的墙面由6种材料装饰:深咖色木饰面、彩色壁画岩板、白色大理石、黑色石英岩,表面粗犷的米色石英岩以及仿旧铜板,每一种材料的运用又拥有各自独特的装饰细节:……深咖色木饰面和黑色石英岩沉稳大气,符合5A级写字楼的功能和属性。电梯墙面由米色石英岩和金属板装饰,营建出奢华感和品质感。订制的彩色岩板壁画和大堂深处的彩色玻璃墙面,赋予空间独特的艺术气质。白色大理石切割的线条模仿下垂的窗帘,使得整体空间较暗的色彩得以调节。特色天花板吊灯锚定了一个以大厅内为中心的休息室空间,定制细木工家具为使用者创造了极佳体验。在灯光方面,有意采取了低照度照明,为大堂空间营建了舒适和私密感。

  • RIDICULOUSNESS / 设计师

    2024年05月26日 07:45:40

    + 关注
    #办公智造#

    裝飾細節        

  • Hino / 设计师

    2024年05月26日 07:41:17

    + 关注
    #办公智造#

    我们希望能建造出一栋不需依赖墙或者柱子,而仅仅是依靠体块之间堆叠而形成的房子。书籍作为空间情感和气氛的重要元素,应该形成这个空间的承重结构,同时它也需要成为日常工作可以使用的工具。因此,我们必须建造架子,许多的架子。这些架子需要填满墙壁上所有空白的空间,同时也要去替换墙壁。
    这个设计不仅提供了更多的墙面空间,从而有足够的架子以容纳藏书,同时也优化了房间面积,并创造了可供员工开会的小休息室,通信室,智库和电话亭。
    另外,建筑的锥形平面是室内设计变得更具挑战性。在项目早期,设计团队就对编辑室进行了明确的规划,编辑室必须是尽可能小和高效的空间。编辑室在最终的设计中成为有平均9平方米的空间,它们的特点是窗户几乎和地面进深一样高,这样可以使室内拥有充足的阳光而不显得狭窄,也传达一种安全感和专注感。每个编辑室的门被设计成与架子的搁板齐平,这样当门打开时,门就像消失在架子上。入口和门的设计也使房间可以打开到与大办公室相邻开放的办公室相连的空间,就像天然的海湾一样,编辑室成为大空间的延伸。办公室的大型公共区域调剂了小空间的狭窄,同时在门打开时,允许同事之间可以在一个空间交流工作。        

发布话题

公开