当前位置:首页 > 户型图分析

#办公智造#

阅读 994715 | 粉丝 994715

  • 毛均峰 / 设计师

    2024年05月26日 19:56:23

    + 关注
    #办公智造#

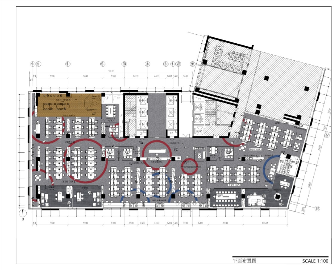
    开放办公区 OPEN OFFICE AREA 
    每个会议室都以全球不同的地标命名,这巧妙地凸显了道旅科技作为旅游服务公司的核心定位。无论是纽约、巴黎还是东京,每个会议室都承载着不同的文化和风情,为员工和客户创造了一个独特的交流空间。每个会议室都经过精心设计,以反映其对应地标城市的特色和魅力,为会议提供了一个启发性和多元化的环境。
    同时,表针元素的运用巧妙地呼应了世界各地的时间差异。办公楼内的时钟通过表针元素的装饰,提醒着员工和访客时刻关注世界各地不同的时间。这不仅体现了道旅科技作为全球互联网平台的视野和影响力,还强调了公司对于时间和全球范围内的业务的重视。
    小型静音仓 MINI BOX 
    为了满足道旅科技公司人员较多、经常需要进行头脑风暴和临时会议的需求,我们在办公室设计中利用了原有外结构封闭视线的设计缺陷融入静音仓的设计方案。这一设计不仅美化了空间场景,还进一步完善了办公室的使用功能。
    可以用于临时会议、头脑风暴和私密讨论,为团队成员提供了一个专注和高效的工作环境。同时,这种设计还避免了办公室其他区域的干扰,使得会议和讨论更加专注和有效。考虑到西面阳光的直射对办公环境的影响,我们特别注意了如何解决靠近窗户的员工在高温下无法正常办公的问题。我们通过室内研究阳光的照射范围,避开了直射区域,并将办公区域向内移动,使员工可以远离阳光直射区,保留了舒适的视野同时也能在休闲区域中放松身心,缓解工作压力。         

  • 毛均峰 / 设计师

    2024年05月26日 19:53:12

    + 关注
    #办公智造#

    休闲区域 REST AREA 
    在道旅科技办公室的茶水间区域,我们通过运用原木色来打造一个自然放松的空间感觉。原木色给人一种温暖和舒适的感觉,与自然环境相呼应,为员工提供一个放松和休息的角落。
    墙面的圆形装饰不仅美化了茶水间的空间,还呼应了时间和时钟的寓意。每个圆形装饰可以代表一个时钟的表盘,通过阳光在不同时段的变化,墙面上的阴影和光线也会随之变化,创造出每一刻都有不同观感的效果。这种设计给茶水间带来了一种独特而有趣的视觉体验,让员工在休息时感受到时间的流逝和变化。        

  • 毛均峰 / 设计师

    2024年05月26日 19:46:48

    + 关注
    #办公智造#

    总经理室 CEO OFFICE 
    原本入门口的方形柱体经过改造,现在呈现为圆形的层板柜。这个设计考虑到方形柱体可能给人带来压力感,而圆形的层板柜则给办公室带来了更加和谐和舒适的视觉效果。同时,在层板柜的周边,我们打造了展示空间,可以展示公司的荣誉和信任,为办公室增添了独特的魅力。
    同时,这个层板柜还隐藏了多功能设备,为办公室提供便利和实用性。它内部配备了多功能设备,如红酒柜、冰箱、投影幕、智能化系统、等多功能产品。可以随时使用它们进行接待、会客、开会和日常办公等活动。无论是接待客户、与合作伙伴开展商务会议,还是在休闲时间观看电影、放松身心,这个CEO办公室提供了一个舒适、功能齐全的空间。木质元素和圆形层板柜的设计为办公室增添了独特的韵味。        

  • MING / 设计师

    2024年05月26日 19:31:32

    + 关注
    #办公智造#

    尼特办公室        

  • MING / 设计师

    2024年05月26日 19:30:54

    + 关注
    #办公智造#

    尼特办公室        

  • Script. / 设计师

    2024年05月26日 14:41:14

    + 关注
    #办公智造#

    开放共享的办公模式替代传统封闭的办公空间
    办公空间采用开放式的办公模式,以纯粹而例外的设计呈现。它演变成了一个共享之地,一个创新的未来办公体验式场所。这是一个共融共通的自由之地,空间开放,可以扩展,替代以往的封闭办公环境。不同的空间相互组合,不再服从于某种特定的空间结构。员工在这里能够与空间互动,建设属于自己的办公空间,使其生长,成形。        

  • Script. / 设计师

    2024年05月26日 14:39:24

    + 关注
    #办公智造#

    工作区不再受办工桌限制,以没有边界的形式鼓励交流。功能交融让办公不再枯燥,各种各样的空间或正式或随意,创意想法可以自由产生,为工作创造不同的格调,增加工作效率和创造性,构成积极的互动对话。
    空间的质量,在于它支持各种各样的交流互动。传统方格网状排列的办公空间,固化限定行为,线条僵硬地把人的活动吸纳到一个封闭的实体里。但在这个生动多样的办公空间内,具备了灵活性、延展性和适应力。不仅可以解决工作空间的共享,而且重塑在此情景中的人际关系与社交网络。        

  • Script. / 设计师

    2024年05月26日 14:37:40

    + 关注
    #办公智造#

    这里给予办公者最大程度的自主性,释放办公体验,激发不同的办公文化与诉求,共同创造出一个层次丰富的整体。
    从内部到外部,从协同到独立,空间可以自由扩展,给人以多重体验。        

发布话题

公开