当前位置:首页 > 户型图分析

#办公智造#

阅读 994902 | 粉丝 994902

  • 毛均峰 / 设计师

    2024年05月24日 07:24:22

    + 关注
    #办公智造#

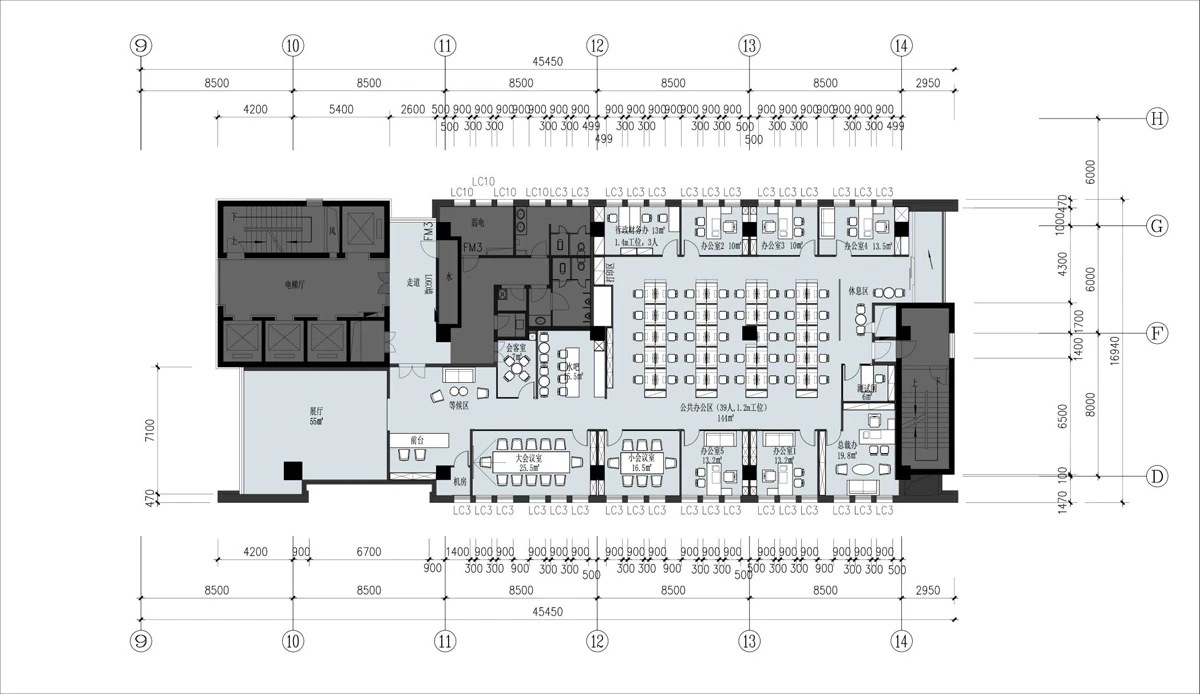
    精确且务实的空间,功能小会客室、小会议室、商务会议室、办公室、实验室采用了双层隔音玻璃和独立门禁,确保信息安全。配套完备的半开放茶水区和工区尽头的休闲办公区能够支持相对开放的讨论和有自由度的工作方式。

  • Xiao Er Mei / 设计师

    2024年05月24日 06:48:19

    + 关注
    #办公智造#

     爱与不爱...        

  • 甲由 / 设计师

    2024年05月24日 06:44:32

    + 关注
    #办公智造#

    办公空间设计        

  • 饶阳 / 设计师

    2024年05月24日 00:41:36

    + 关注
    #办公智造#

    现代科技感•艺术气息办公空间概念设计方案        

  • 饶阳 / 设计师

    2024年05月24日 00:39:46

    + 关注
    #办公智造#

    现代科技感•艺术气息办公空间概念设计方案        

  • 瑾萱 / 设计师

    2024年05月23日 23:58:59

    + 关注
    #办公智造#

    直播办公室(1)        

  • 瑾萱 / 设计师

    2024年05月23日 23:57:51

    + 关注
    #办公智造#

    直播办公室(2)        

  • KIWI / 设计师

    2024年05月23日 23:00:28

    + 关注
    #办公智造#

    多功能核心区域由接待前台、会客大厅和商务会议室组成,用玻璃隔断,最大限度地引入日光,使空间开阔敞亮。这里可完成日常接待,举行5-25人的沙龙、培训、会务,可也满足相对开放式的洽谈需要。

发布话题

公开