当前位置:首页 > 户型图分析

#办公智造#

阅读 994800 | 粉丝 994800

  • Hino / 设计师

    2024年05月26日 07:38:43

    + 关注
    #办公智造#

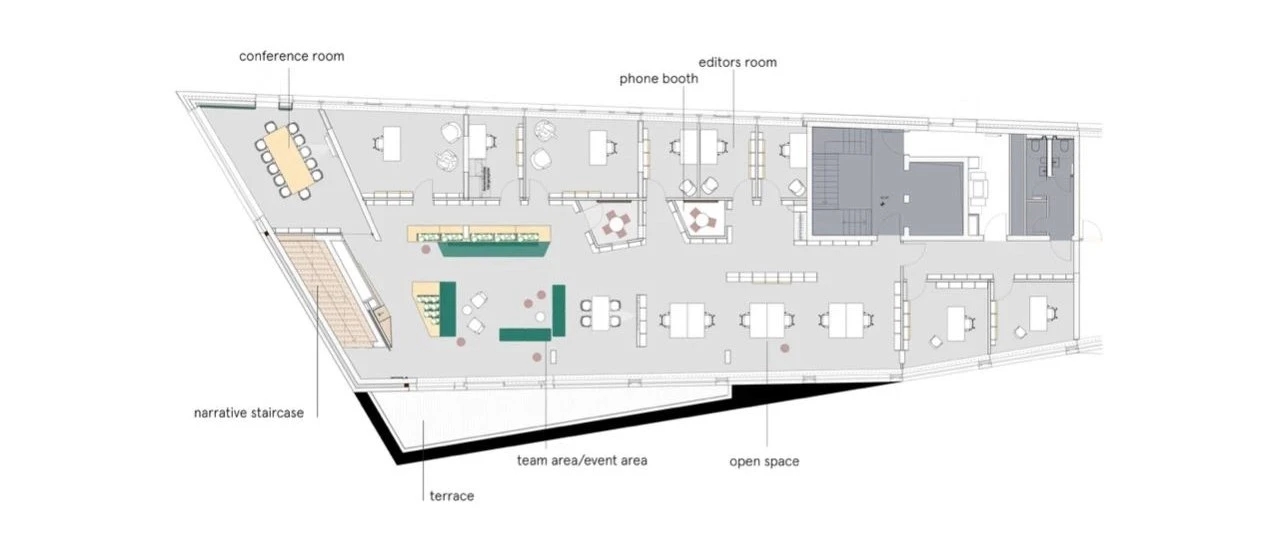
    所有其他工作区域都位于开放空间,在建筑的角侧设有小厨房和会议室。这些空间以宜人的氛围为特色,透过大型全景窗户可欣赏到繁华的Linien-straße和Linien- straße。其中一间会议室配有带轮子的家具,使用者可根据需要重新移动和利用空间,还有可根据需要打开或关闭的定制白板和隐藏的投影屏幕。会议室和小厨房还有楼层之间通过所谓的"叙事楼梯"从内部相互连接,这个楼梯从一楼的斜角通向六楼。
    楼梯之所以得名,是因为它令人印象深刻的书架。书架设在陡峭的楼梯旁边,就像一条戏剧性的叙事线。橡木搁板对应了楼梯台阶的材料相互呼应。        

  • Camille yu / 设计师

    2024年05月26日 07:26:37

    + 关注
    #办公智造#

    以深色的流线作为贯穿空间的主旋律,与简洁的白、灰形成对比,体现了纯粹而极致的科技感、灵动感。
    精致的皮革饰面、木质温暖的吸音格栅、动感的天花造型、极致的线条,是流动的艺术,代表了一种互融与突破的创造理念。
    色彩在空间中的进退、明暗,感染着环境氛围,也折射着人们的心理需求:办公会议区采用低饱和度的色彩,舒缓员工情绪,凝神聚气,提高工作效率;高饱和度的色彩运用在茶歇区作为点缀,放松身心的同时,提升空间趣味。        

  • Camille yu / 设计师

    2024年05月26日 07:23:44

    + 关注
    #办公智造#

    “Blue Sky Coming”,蔚来已来,是对美好未来和清朗天空的愿景。办公空间是理性的,对于那些视灵感为生命的创意人士而言,这里需要理性的工作,亦要有愉悦的生活,伴随着绿色的介入,一个静谧而舒适的人性化工作与社交场景徐徐展开。绿色生态以无声的诗意不断重塑着整个世界,“赏一朵花,认一棵树”,潜移默化中拉近与自然的距离。        

  • Camille yu / 设计师

    2024年05月26日 07:21:47

    + 关注
    #办公智造#

    墙面大大小小的洞口将绿色引入,既是画中景,亦是景中人。而在长虹玻璃的衬托下,绿植显得朦胧而柔美,引领员工在生机盎然的氛围中迸发创意灵感,传递着“Blue Sky Coming”的品牌理念。        

  • Muen沐恩 / 设计师

    2024年05月26日 07:15:29

    + 关注
    #办公智造#

    设计以灰色和白色为基调,巧妙加入企业标准色-橙色。厚重的暖灰色铜板简笔勾勒,干净利落,搭配简单的木质墙板,使整个空间硬朗低调又不失朝气和活力。        

  • Muen沐恩 / 设计师

    2024年05月26日 07:13:37

    + 关注
    #办公智造#

    办公空间内部有两条人流主动线。一条是整个空间的核心,要求高效、舒适。另一条主动线上,则加入了更多的人文关怀元素,明快舒适的弧形沙发,高高的吧台和吧椅,构成了一个类似居家环境的减压空间。对于来访者和企业员工来说,是两种不同的体验。
    块毯的色彩和编织形式源于自然,通过人为的排列将地面的深灰与草绿结合,带来自然轻松的感受,经过时仿佛踏入草坪。
    洽谈区将充满创意的简洁图形进行组合,以橙色小色块作为点缀,展示抽象化处理后的亚新集团文化墙,令访客感受到空间时尚律动的气息。
    走廊处的八个白色小雕塑,憨态可掬,取自陶瓷艺术家谢艾格的作品“太极S”系列。太极一词在中国古代文言文中的含义是“太空的中心”。
    走廊部分的创意墙来源于公司员工的剪影。图案透过圆形小孔散发出的光芒汇集在一起,折射出集团合作共赢的企业文化。        

  • Script. / 设计师

    2024年05月25日 17:48:58

    + 关注
    #办公智造#

    设计构思/Design Concept 
    “扬帆渡南水,蛟龙耀横琴”,当大成律师事务所来到大湾区的珠海——中国最具有幸福感城市,瞬间接收到属于南国的热情与活力,于朗月碧海上谱写未来崭新的乐章。
    在珠海的地理和人文环境的熏染下,带给艾斯团队来自滨海之城的触动和灵感。同时作为一家以顾客需求和客户关怀为中心的设计与施工一体化服务的公司,艾斯团队将现代与自然相互融合,将空间的功能实用性、使用舒适度和现代设计感都在宽敞开放的办公区中立体地呈现,并营造出流动性的视觉效果和未来联想。
    接待前厅 / Reception 概览 
    (1)坚毅“成”行,未来可期
    设计师将建筑的结构和美感,大胆地浓缩在室内空间,并且结合城市地理环境特色、自然仿生形态和自然光照,加入“面向未来,拥抱未知”的空间意境,创造开放而连结的关系,彰显大成律师事务所国际化的精神面貌。
    前厅似「扬帆的岛」,寓意着希望、生机与无限可能。前台造型如起伏的岛屿,承载着开放和创新的土壤,紫色的背景板又带有一丝未来感。整体以海浪无限延伸的线条呼应,天花的灯光也如晴空下尽情飞翔的海鸟,让人犹如吹拂着潇洒的海风以及和煦的阳光。
    (2)消弭界限,连接互动
    打破空间的传统定义,扩展空间交互的局限性。连接前厅,继续延展其更多元的空间功能。在主题紫色的点缀下,搭配木、水纹、波浪的海岛符号下,使这里成为自然与办公空间的过渡,给予办公使用者和客户更多体验、触动和交流互动。
    通过流动的线条,贯穿了整个空间脉络。以紫白相间花纹的地毯搭配岩石色系的沙发组,在这里形成了富有动感的“小岛屿”,与木交错,与水相映。
    会议空间 / Meeting Area 概览 
    (1)化繁为简,诠释专注
    会议空间在设计的考量中,功能更实用和结合空间的延展性为首位解决问题。
    无论是中式会议室、还是常规的会议室,搭配白、灰、木等奠定简洁的基调,形成空间贯通感。在此基础上,设计师摒弃繁复的设计元素,以造型简易的灯具和商务家具组合为主,反而衬托沉稳、端庄的诗书气韵。
    (2)灵活空间,周到专业
    在主要的会议空间功能上,设计团队还延展了更灵活实用的会议空间。具有私密性的商务型洽谈室,十分适合人数不多且快速响应的会议和洽谈安排。同时也设计了高配置的党建室,方便日常党建活动和会议功能。        

  • Script. / 设计师

    2024年05月25日 17:46:45

    + 关注
    #办公智造#

    其他功能空间 / Functional Area 概览 
    (1)功能实用,服务细致
    在律师事务所,交流很重要,而如何交流更重要!在开放的员工办公区,充足的照明和合理的布局安排,不但可以提高员工的工作效率,而且照顾员工健康需求。合理利用小型的空间余位,除了供员工休闲的茶水间和具备储存功能的文印区,还可以增加有私密空间的电话房,方便日渐增加的远程工作沟通。        

发布话题

公开