当前位置:首页 > 户型图分析

#办公智造#

阅读 994801 | 粉丝 994801

  • 小麦庆 / 设计师

    2024年05月25日 17:25:41

    + 关注
    #办公智造#

    设计构思/Design Concept 
    旅游是一场奇遇,从历久弥新的经典酒店品牌,到别具风尚的特色酒店品牌,都会为客户提供细致服务,并以当地特色呈现奢华感受,为他们带来灵感和创意满满的精彩旅程记忆。
    艾斯设计遵循“Less is more“的设计手法,以现代艺术的表达方式,结合旅游忆记和自然风光,采用自然元素中的海浪纹理和山川起伏,将整个平面布局置身于大自然的空间,让简洁贯穿整个空间的同时,极具灵动的优雅。
    接待前厅 / Reception 概览 
    面对致力提升旅游文化和发展的客户,设计师团队在思考以怎样的方式为他们在设计中赋能和提升,他们遵从“Less is more”的设计原理,摒弃实物的装饰,沿用海浪的质感和山川的层次感,通过流线型的设计和光影试图将大自然的画卷以抽象的方式展开给观光者。将包容多元的品牌内涵在视觉上形成连接,致力为每一位宾客创造历久弥新的回忆。
    会议空间 / Meeting Area 概览 
    (1)大会议室
    在这个开放的会议空间,设计师大胆利用自然采光,最大程度地亲近窗外的自然景色。整个设计呈现出一种“阳刚之美”,大气沉稳的会议家具组合,大地色系的地毯铺、集合了智能化的会议功能和绿色节能的照明,让整个会议空间更简洁、更有力量。
    (2)培训室
    培训室的设计依然延续了整个空间风格的大气简洁,沿用了山的层次感,让整个培训空间更简洁优雅。
    此处可配合培训目的和方式而产生多种组合形式,令培训室的功能不再单一。
    (3)内部员工多功能间
    作为两层之间的过渡区域,在这里设计师将“旅行中的自然音乐厅”的设计概念融入其中,营造半私密半开放的院落形态。
    在这里,沙发组仿佛一组乐器的形态坐落在一片稻田般的层级上,旁边的楼梯仿佛是梯田,墙身的设计仿佛是远处的瀑布流水。联通两层的工作空间,员工于此,仿佛置身于炊烟袅袅的村庄,倾听着山间的风,拂过禾稻的发梢,更加激发灵感。        

  • 小麦庆 / 设计师

    2024年05月25日 17:20:53

    + 关注
    #办公智造#

    办公区 / Open Area 概览 
    打开旅游的忆记,有着恢弘的山川、波光凛凛的海浪、绚烂多彩的极光,设计师将动态的旅游vlog刻画在员工区,整个办公空间都充满着“奇遇”的惊喜,让员工也能感受到客户的需要。
    员工区不做过多装饰,伴随着高低起伏且流动的线条,运用节能照明和有降噪的办公家具,形成醒目的对比,整个员工区都充满着清新、舒爽的氛围。
    休闲空间 / Realxing-area  概览
    (1)茶水间
    此空间通过多种绿色节能设计,包括开放空间布局、节能灯具、高效性能绿色环保温度调节、环保再生材料家具和节能水龙头等设备,达到整体空间节能减排的目的。
    同时通过艺术组合和材料拼接的手段:波普艺术、几何手法、玻璃、金属、木头和布艺的搭配,并以鲜活的动感橙作为点缀,为现场营造极具现代艺术风格的动态空间。这里参考了酒店酒吧的休闲氛围,采用了条状的空间设计和家具摆设,在天花上采用了具有几何感的线条设计。在墙身采用了波浪纹理的质感设计,并选用了镜面的搭配,在细节上进一步增加了轻奢的灵动,为走道空间增添了一份新的活力。
    (2)走道上的休闲站
    灵活运用走道的空间,不作多余的装饰硬装之余,通过加入半私密性的组合家具和开放性的桌椅,立刻解放“办公空余角落”,既可以随时变动“工作模式”,也可以调整工作状态和氛围。        

  • 椿楸 / 设计师

    2024年05月25日 16:49:19

    + 关注
    #办公智造#

    高新区文化中心软装设计与实施项目(1)        

  • 椿楸 / 设计师

    2024年05月25日 16:48:03

    + 关注
    #办公智造#

    高新区文化中心软装设计与实施项目(2)        

  • 九可JOKER / 设计师

    2024年05月25日 16:40:07

    + 关注
    #办公智造#

    此案例融入了机械风格,与现代科技感完美契合,没有浓郁的重金属质感,却不失高调的室内环境,充分的发挥了舒适气息,像电流跳动在电路里,空间感也鲜活了起来,不像机械那样氛围冰冷沉闷。        

  • 张曲峰 / 设计师

    2024年05月25日 16:36:24

    + 关注
    #办公智造#

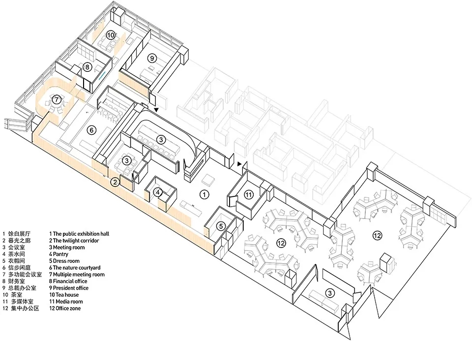
    馀白展厅是进入场地的首个空间,也是和其西侧日常的办公区颇具反差的非日常公共展厅空间。这里集合大小两间会议室,茶水间,衣帽间和多媒体室五个功能体块。这一展厅理念源自业主公司主营业务的启发:贸易是一种易物的过程,其中伴随并最终形成文化的传播和呈现。故此,空间以美术馆中五个独立的混凝土展厅体块为原型,被隐藏入口的体块形成馀白空间,点以长凳和艺术品展台,混凝土表皮的可塑性让展厅空间更具场景化,仿佛置身真实的美术馆,人是空间的主角。极简的结构肌理和灰色调的线条勾勒以宁静的氛围和内敛的处理让人获得一种精神的重置,馀白空间纯粹无焦点,以足够的尺度触发偶然的邂逅絮语和静思冥想的归属感。
    作为非日常的另一表达维度,精神的自由度容纳于展厅空间,行为的自由度和多元的交流事件则发生在以自然庭院为理念的信步闲庭区。空间以山水石池为象征底色,阡陌纵横;休闲吧台,多功能会议室,财务室,茶室和总裁办公室秩序性地布陈石池中,分散的石子构建界限也模糊界限,呼应整体性也表达自由性,材料天然细碎的属性让游弋成为空间主旋律。会议室如岛屿般独立于石池,出入一块墨色汀步,格栅闭合可开私密性会议,打开则是开放的多功能舞台,这一共享空间强调了信步闲庭的社交属性;半开放的茶室两侧格栅林立,惬意舒适,虚实之间的通透和私密恰如其分。庭院区贯穿南北的中轴打开视野,区域西侧的VIP入口以走廊形式接入主步道闲庭信步的漫游路径。
    空间北侧是俯瞰城市风景,狭长且具有透视感的格栅廊道,从馀白展厅到信步闲庭的室内唯一通道。我们以极致夸张的手法延长这一走廊,沿着玻璃幕墙的整面格栅将城市景观虚化,缓和冰冷的玻璃钢结构大楼立面,将自然光线剪入室内。薄暮时分,阳光倾洒,在地面刻出一道道阴翳,源自自然的时光变幻给穿越悠长廊道以仪式性的行为体验。暮光之廊赋予空间一种精神意象和哲思意味,徜徉其中,带来一种细腻深刻的空间感知,撷珍光影,行驻之间,获得精神的恢复。漫长的走廊也激发出访客对廊道尽头的好奇心,偶发的趣味性给了空间更多想象的可能。        

  • Jason / 设计师

    2024年05月25日 12:40:00

    + 关注
    #办公智造#

    相较于传统企业对办公室装修的统一化与程式化,当代企业在选择设计风格上更加注重时尚感与设计感。办公室设计对于公司来说不单是员工的办公空间,更是企业文化及形象的体现。本案是侨信集团在深圳的办公处所,设计面积为1126平方米,其中有接待前台、接待室、会议室、办公室、开放办公区等空间。设计风格为极简风格,以“简”与“净”为整体风格,没有过度的雕琢与装饰,也没有华丽的色彩,用纯粹的设计带来感官的震撼。极简风格更适合具有高度审美、对细节把控更加严格的企业。纯粹和简洁可令人身心放松、精力集中;时尚与严谨并存,更能体现企业品牌风格。
    一个好的办公空间,不仅仅是把使用功能提供给客户,而更多是把便捷性与舒适性作为重要的目标。我们为客户提供了一系列实用功能,并且将其贯穿于建筑空间的每个点,我们希望把实用性作为功能的第一目标,当每一位使用者都能享受到这些功能的时候,才会发现设计的用心和价值。在极简主义办公设计中,是沿用空间自身散发的规矩和朴实形态,同时进行克制性的铺陈。在设计中注重功能性,强调形式和空间结构的完整性,将提高空间、材料、技术的高度融合作为设计目标。
    硬装主要材质:木饰面、纤维板、艺术玻璃
    软装主要材质:实木、皮革、布艺、棉麻织物

    设计展示Design  Display
    前厅以经典的白色为主体色调,没有繁琐的设计和过多的装饰,通过自然纯净的白色与低调奢华的金色相结合,将品牌形象简洁地呈现表达,抽象的海蓝色琉璃艺术品,为前厅空间增添了灵动和生机。
    接待室的墙面用灰咖色纤维板作为装饰,弱化了墙体的同时,也让整个空间安静下来。设计元素极其精简,保留最本真的状态,运用最直接简练的线条表达出最具内涵的空间美。
    董事长办公室将简约风发挥到极致,全景落地窗的设计,让空间为之豁然开朗,窗外景物如画卷般展开,人与自然也就有了更多的交流。背景墙是大面积的书柜,以简洁有序的整洁之美,展现企业人文价值和注重效率的特性。
    为了同时保证隐私和透明,会议室采用了玻璃+百叶窗的设计,这样的交流区域保持彼此的通透与联结,提升了场所的张力。使用灰色调的背景板,配以金属条镶嵌,极简风其实更加考验细节的精致度。
    自由无拘的沟通对于团队的创新至关重要。开放办公区是有效获取信息和激发灵感的地方。百叶窗折射的光影,充足的自然光营造高效的工作环境。        

  • Jason / 设计师

    2024年05月25日 12:34:36

    + 关注
    #办公智造#

    实景呈现Real  Photos        

发布话题

公开