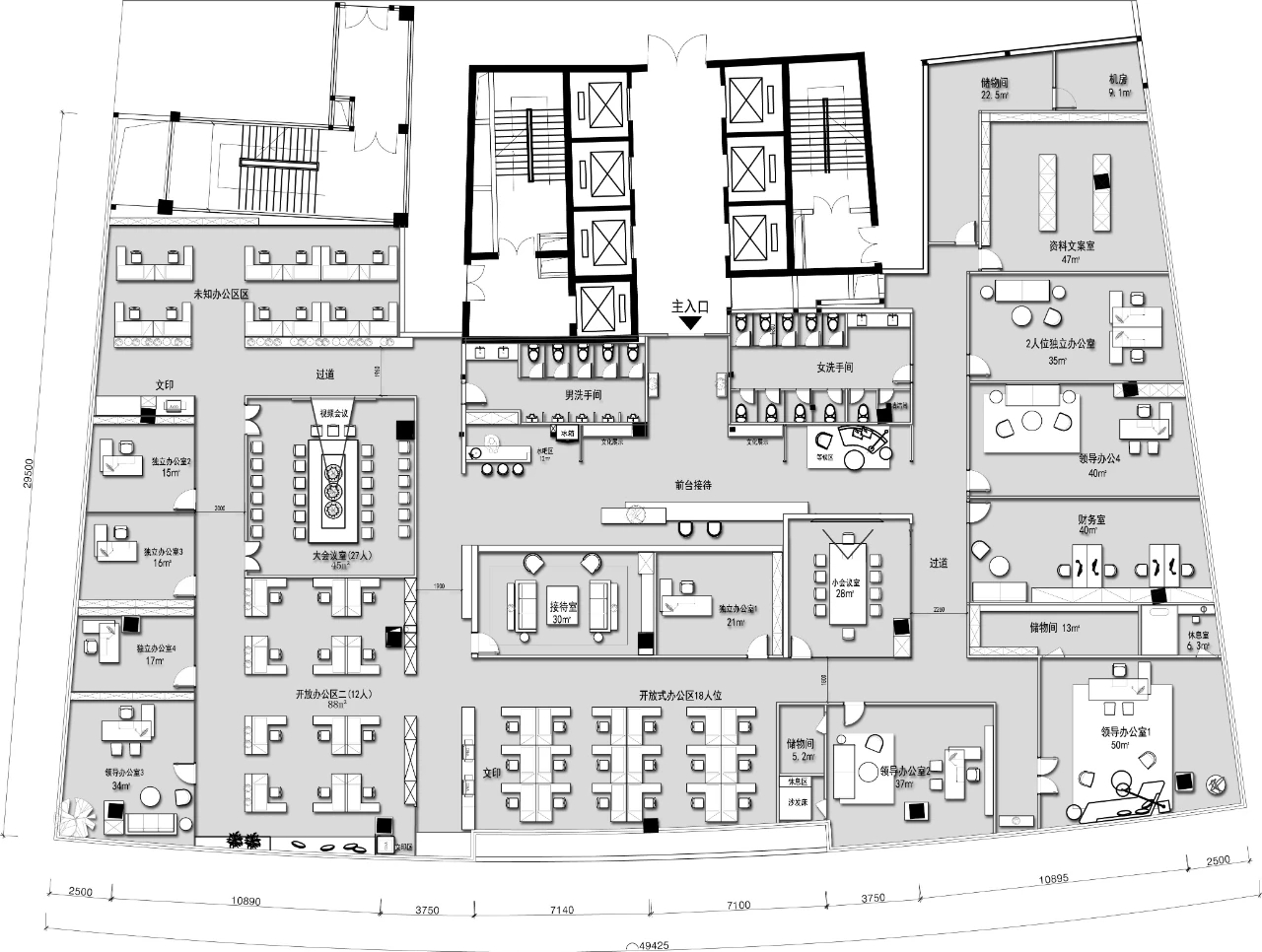
当前位置:首页 > 户型图分析

#办公智造#

阅读 994802 | 粉丝 994802

  • Jason / 设计师

    2024年05月25日 12:33:06

    + 关注
    #办公智造#

    实景呈现Real  Photos        

  • Hello廖芳 / 设计师

    2024年05月25日 08:06:35

    + 关注
    #办公智造#

    效果图        

  • 敏颜 / 设计师

    2024年05月25日 07:38:01

    + 关注
    #办公智造#

    一层塔楼大厅以浅灰色为主体色调,主背景墙的六边形图案来源于企业的头部产品:创新材料石墨烯分子的元素提炼,通过排列组合巧妙地融为一体,体量不同的几何符号共同作用组成了表面饰层,带来神秘的视觉互动,白色灯光透过铝板的孔洞穿透出来,将品牌logo以强烈的象征主义转刻出现,从细微处现显示出城市的进步与品牌的进化。
    电梯厅作为塔楼主大厅的副厅,以科研办公人员日常使用为主,整体空间以浅灰色石材为背景主材,通过不同层次和肌理的组合变化,营造出科研中心严谨、高效、精致、内敛的底蕴。
    报告厅作为一个可以容纳400人的多功能场所,具备有中大型会议及演出厅的功能。具有两条日常通道,一条贵宾通道及一条应急疏散通道,上下部分区疏散设置,高效而流畅。整体空间采用红色等暖色调,结合木色吸音隔音板,体现热烈大气的空间氛围。
    走廊作为日常的交通空间,同时兼顾贵宾接待。此空间主要打造一个现代简洁,同时兼顾文化氛围的空间。地面提取了大运河的形态与企业Vi的蓝色,作为地毯的主要纹理形态和色调,兼顾韵律美感,也蕴意着企业发展就像大河一样,川流不息,兼容并蓄。
    视频会议室作为公司内部员工与外部人员沟通协同合作的桥梁场所,主要以现代简洁的设计手法为主。墙面主要以灰色的壁纸,结合浅灰色的装饰面,从而缓解工作中的紧张感。
    此空间作为辅助报告厅,同时也是日常主要的办公交流空间,以暖色格栅、木饰面结合,简约大气,有温度感。为了让其内的办公人员不觉得空间过于压迫,对天花采用了横向拉伸的造型,并对墙面采用了大量留白。结合本身层高的优势,使其在不管是横向的或者是纵向的空间感都得到了较大的视觉提升。        

  • 敏颜 / 设计师

    2024年05月25日 07:30:56

    + 关注
    #办公智造#

    鲁泰控股科技研发中心作为高新科技载体,从前期策划到过程设计、落地施工,不单只是关注它的功能需求,更加关注整个项目的附加属性。整体风格围绕企业”稳筑底,勤创新“的理念,打造现代简约、大气端庄的风格。材质色彩运用米白色、浅灰色、金属灰等中性灰色调,凸显质感和品质。设计元素来源于企业的logo、创新材料石墨烯等契合企业文化和气质的符号。
    硬装主要材质:石材、木饰面、拉丝不锈钢、艺术玻璃
    软装主要材质:实木、皮革、布艺、棉麻织物        

  • 敏颜 / 设计师

    2024年05月25日 07:28:11

    + 关注
    #办公智造#

    实景呈现            

  • 毛均峰 / 设计师

    2024年05月25日 07:22:15

    + 关注
    #办公智造#

    云沐资本作为一个投资公司,在平面布局上更注重商务属性,空间里分布了大大小小四个不同的会议室和洽谈空间,为商务洽谈提供了充足的私密空间。
    元素的提炼和重组,色彩的碰撞和变换;光影重叠,明暗交织;纵横有序,倾斜跳跃。设计师将多种手法用于空间中,试图表达一个现代商务型公司特有的品味和格局。
    小型办公室设计,更加考验设计师的功底。既要考虑功能分区布局合理,又要在有限的空间里表达风格定位和企业文化。简洁简约的装修风格,可以营造一个整洁清新、舒适明亮的环境氛围,在视觉上扩展空间;在家具和陈设的选择上同样要简洁明快,舒适度高;色彩上尽量选用一些明亮的暖色调进行装饰,给人带来轻松舒适的感受,同时对提高工作效率也有帮助。        

  • 毛均峰 / 设计师

    2024年05月25日 07:19:13

    + 关注
    #办公智造#

    开敞办公区简洁明快、整洁有序的办公场所‖ 功能是空间设计的核心,没有解决最本质的功能和使用问题,所有的造型和美化便失去了灵魂。因而,本案的设计主要从两个方面入手,一个是对空间功能的重新规划,另一个是从企业特性出发,实现人与空间的对话,实现从空间到人物情感的建立。开敞办公区的采光非常充足,窗外就是高楼林立的中央商务区,对比强烈的黑白两色让空间增加了严谨有序的工作氛围。
    会议室和洽谈室‖ 形态各异的会议室和洽谈室,满足商务洽谈的各种不同需求,本案利用高饱和度的色彩,简洁干练的线条摒弃繁琐的设计元素,开启一种全新的办公模式让功能和美感并存,创造一个充满活力的理想办公空间。
    根据业主需求,规划了很多功能空间,如办公、会议、洽谈、休息等,每个区域都有着独特的魅力。设计师在理解功能性的基础之上,合理的规划使用动线、比例尺度、材料色彩等,将品牌特质和企业需求融为一体,让工作于其中的员工和来访的客户都感受到它于简单处见奢华的不凡品质。
    除了能容纳26人同时使用的大会议室之外,空间内还设置了两个小会议室和一个洽谈室,以满足同时接待不同客户群组的需求。开敞办公区和会议室之间,用智能雾化玻璃进行分隔,既可以满足私密空间的需要,又可以保持空间的通透性,同时玻璃材质的反光特性,对空间起到了很好的延展作用。
    独立的小会议室,这里是休息区、等待区,也是洽谈区,一些简单的商务往来、或新人面试,都可以在这片区域完成。        

  • 夏毅 / 设计师

    2024年05月25日 06:45:01

    + 关注
    #办公智造#

    毕业照(1)        

发布话题

公开