正门往右为进堂,向左为接待台,设有回路,动线流畅,场域宽广。冥思其间,见山容起伏,隔栅重门层层递进,气象万千。直至眼前空寂,惟闻潺潺沁水声。隔栅之外风景如画,另一处山色隐藏在视野之外;隔栅之内,光柔掩映,时动时静,相掩成趣,与人浑为一景。


• 过厅丨Hall

• 沙盘区丨Sand table area


通从左右通畅的回廊,仿如到达林泉谷口,步入桃花园记中无争无扰的自由清和世界。透光玻璃隔断了外世沉浮,又将后庭院全景映照入内室,古树草木,蝉鸣飞鸟。书桌上安放着修心的陈设,笔墨纸砚,琳琅书籍。虚实之间,半生湖海,半生清雅。



• 洽谈区丨Negotiate area



静静的站在这,对望窗外无限延伸的景色。身不动,心相接,留下深刻的印象。清云疏疏密密,气韵畅通;黛蓝色朴素深沉,提升了空间饱和的光感。光影掩映,四时变化,幽韵隽永。



• 其他丨Other



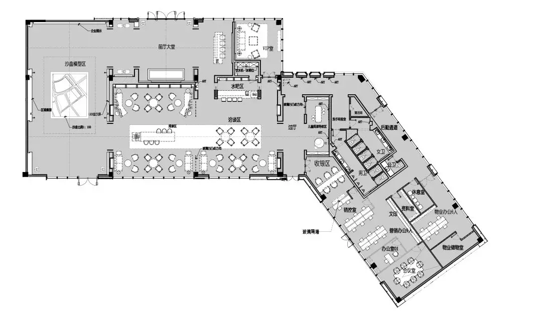
• 平面图

• 施工集锦








全部评论